|
|
|
| Larry Stein Oklahoma County Assessor (405) 713-1200 - Public Access System |
|
|
|
|
|
|
| Real Property Display - Screen Produced 4/25/2026 1:38:28 PM | ||||
|---|---|---|---|---|
| Account: R125821320 | Type: Residential | Location: |
7129 NW 102ND ST |
|
| Building Name/Occupant: |
|
OKLAHOMA CITY |
||
| Owner Name 1: | LIVELY HUGH REV TRUST |
Parcel PIN#: |
3913-12-582-1320 |
|
| Owner Name 2: | 1/4 section #: |
3913 |
||
| Owner Name 3: | Parent Acct: |
|
||
| Billing Address: | 4923 PLEASANT VIEW ST | Tax District: |
|
|
| City, State, Zip | WOODWARD, OK 73801 | School System: |
Putnam City #1 |
|
|
Country: (If noted) |
Land Size: |
0.2271 Acres |
||
|
Land Value: 42,531 |
|
|||
|
Sect 29-T13N-R4W Qtr NE |
BEACON HILL REPLAT
Block
002
Lot
008
|
|||
| Full Legal Description: BEACON HILL REPLAT 002 008 |
| Value History (*The County Treasurer 405-713-1300 posts & collects actual tax amounts. Contact information HERE) | |||||||||||||
|---|---|---|---|---|---|---|---|---|---|---|---|---|---|
| Year | Market Value | Taxable Mkt Value | Gross Assessed | Exemption | Net Assessed | Millage | Est. Tax | Tax Savings | |||||
|
2026 |
319,500 |
319,500 |
35,145 |
0 |
35,145 |
123.17 |
$4,329 |
$0 |
|||||
|
2025 |
322,000 |
290,664 |
31,972 |
1,000 |
30,972 |
123.17 |
$3,815 |
$548 |
|||||
|
2024 |
336,000 |
282,199 |
31,041 |
1,000 |
30,041 |
122.30 |
$3,674 |
$846 |
|||||
| Property Account Status/Adjustments/Exemptions | ||||||
|---|---|---|---|---|---|---|
| Account # | Exemption Description | Amount | ||||
| No adjustment/exemption records returned. | ||||||
| Property Deed Transaction History (Recorded in the County Clerk's Office) | ||||||||||
|---|---|---|---|---|---|---|---|---|---|---|
| Date | Type | Book | Page | Price | Grantor | Grantee | ||||
|
12/2/2025 |
|
Hmstd Off & |
$0 |
PETERSON SHANNON S TRS |
PETERSON SHANNON S |
|||||
|
12/2/2025 |
|
Deeds |
$360,500 |
PETERSON SHANNON S |
LIVELY HUGH REV TRUST |
|||||
|
1/5/2021 |
|
Deeds |
$0 |
PETERSON SHANNON |
PETERSON SHANNON S TRS |
|||||
| Last Mailed Notice of Value (N.O.V.) Information/History | ||||||||
|---|---|---|---|---|---|---|---|---|
| Year | Date | Market Value | Taxable Market Value | Gross Assessed | Exemption | Net Assessed | ||
|
2026 |
02/23/2026 |
319,500 |
319,500 |
35,145 |
0 |
35,145 |
||
|
2025 |
02/14/2025 |
322,000 |
290,664 |
31,972 |
1,000 |
30,972 |
||
|
2024 |
02/13/2024 |
336,000 |
282,199 |
31,041 |
1,000 |
30,041 |
||
| Property Building Permit History | |||||||||||
|---|---|---|---|---|---|---|---|---|---|---|---|
| Issued | Permit # | Provided by | Bldg # | Description | Est Construction Cost | Status | |||||
| No Building Permit records returned. | |||||||||||
| Click button below to access detailed information and additional property photos: | ||||||
|---|---|---|---|---|---|---|
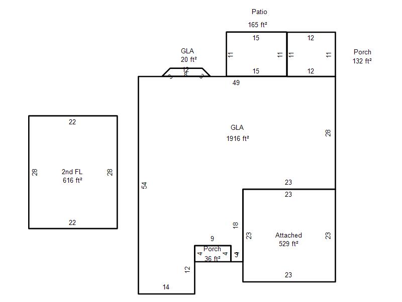
| Bldg # | Vacant/Improved Land | Bldg Description | Year Built | SqFt | # Stories | |
|
1 |
Improved |
1½ Story Fin |
1990 |
2,552 |
1.5 Stories |
|