Larry Stein Oklahoma County Assessor (405) 713-1200 - Public Access System
Home Contact Us Guest Book Map Search New Search
Real Property Display - Screen Produced   4/25/2026 1:38:27 PM 
Account: R125821560  Type: Residential

  

Location:

7316 LOUISBURG DR

Building Name/Occupant:

 

OKLAHOMA CITY

Owner Name 1:  FLYNN MATTHEW J

Parcel PIN#:

3913-12-582-1560

Owner Name 2:  FISHER SADIE J 1/4 section #:

3913

Owner Name 3:    Parent Acct:

 

Billing Address:  7316 LOUISBURG DR Tax District:

City, State, Zip  OKLAHOMA CITY, OK  73162-4507 School System:

Putnam City #1

Country: (If noted)

  

Land Size:

0.2187  Acres

Personal Property

Land Value: 40,958 

Treasurer:

Sect 29-T13N-R4W Qtr NE

 BEACON HILL REPLAT   Block 002  Lot 032   Subdivision Sales
 Full Legal Description:  BEACON HILL REPLAT 002 032

NOTE:  The following sales may or may not be used to determine Fair Market Value

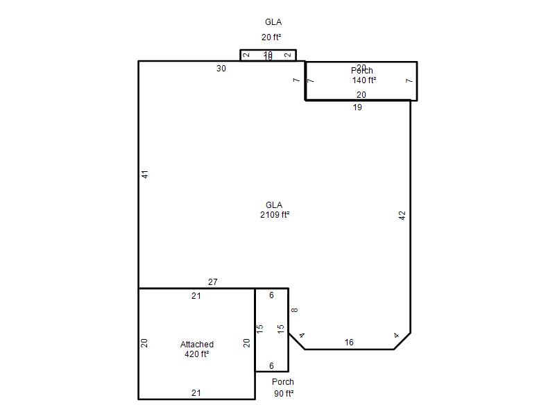
Photo & Sketch (if available) Sales  Sales Report

 7216 NW 101ST ST OKLAHOMA CITY, OK

12/23/2025

 $240,000 

 10309 BACARDY PL OKLAHOMA CITY, OK

05/15/2025

 $245,500 

 7224 NW 102ND ST OKLAHOMA CITY, OK

07/08/2025

 $260,000 

 7220 NW 101ST ST OKLAHOMA CITY, OK

06/14/2024

 $215,000 

 10300 BACARDY PL OKLAHOMA CITY, OK

12/01/2023

 $227,000 

 10201 PINCKNEY CT OKLAHOMA CITY, OK

08/08/2025

 $250,000 

Value History  (*The County Treasurer 405-713-1300 posts & collects actual tax amounts.  Contact information  HERE)
Year Market Value Taxable Mkt Value Gross Assessed Exemption Net Assessed Millage Est. Tax Tax Savings

2026

265,500 

223,286 

24,561 

1,000 

23,561 

123.17 

$2,902 

$695 

2025

262,000 

216,783 

23,845 

1,000 

22,845 

123.17 

$2,814 

$736 

2024

259,000 

210,469 

23,151 

1,000 

22,151 

122.30 

$2,709 

$775 

[1/10]
Property Account Status/Adjustments/Exemptions
Account # Exemption Description Amount

R125821560

3% Cap Homestead

R125821560

Homestead

1,000 

Property Deed Transaction History   (Recorded in the County Clerk's Office)
Date Type Book Page Price Grantor Grantee

6/9/2017

Deeds

13462

636

 $193,500 

WOODY ANTHONY D & CYNTHIA L

FLYNN MATTHEW J

8/23/2001

Deeds

8190

684

 $129,000 

HERTZ MARK D & ELAINE R

WOODY ANTHONY D & CYNTHIA L

4/30/1990

Historical

6039

801

 $94,500 

W RAY NEWMAN HOMES INC

HERTZ MARK D & ELAINE R

[1/2]
Last Mailed Notice of Value (N.O.V.) Information/History
Year Date Market Value Taxable Market Value Gross Assessed Exemption Net Assessed

2026

02/23/2026

265,500 

223,286 

24,561 

1,000 

23,561 

2025

02/14/2025

262,000 

216,783 

23,845 

1,000 

22,845 

2024

02/13/2024

259,000 

210,469 

23,151 

1,000 

22,151 

[1/4]
Property Building Permit History
Issued Permit # Provided by Bldg # Description Est Construction Cost Status
No Building Permit records returned.
Click button below to access detailed information and additional property photos:
  Bldg # Vacant/Improved Land Bldg Description Year Built SqFt # Stories

Click

1

Improved

Ranch 1 Story

1989

2,129 

1 Stories