|
|
|
| Larry Stein Oklahoma County Assessor (405) 713-1200 - Public Access System |
|
|
|
|
|
|
| Real Property Display - Screen Produced 3/21/2026 5:35:51 AM | ||||
|---|---|---|---|---|
| Account: R150102125 | Type: Residential | Location: |
114 W MYRTLE DR |
|
| Building Name/Occupant: |
|
MIDWEST CITY |
||
| Owner Name 1: | FOSHEE GREGORY S & LISA A |
Parcel PIN#: |
1440-15-010-2125 |
|
| Owner Name 2: | 1/4 section #: |
1440 |
||
| Owner Name 3: | Parent Acct: |
|
||
| Billing Address: | 114 W MYRTLE DR | Tax District: |
|
|
| City, State, Zip | OKLAHOMA CITY, OK 73110-5115 | School System: |
Mid-Del #52 |
|
|
Country: (If noted) |
Land Size: |
0.1528 Acres |
||
|
Land Value: 18,967 |
|
|||
|
Sect 10-T11N-R2W Qtr NW |
SPECKMAN HEIGHTS ADD
Block
004
Lot
007
|
|||
| Full Legal Description: SPECKMAN HEIGHTS ADD 004 007 |
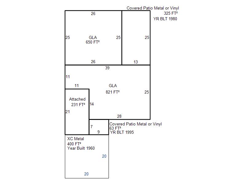
| Photo & Sketch (if available) | Comp Sales (ordered by relevancy) |
|
||||||||||||||||||
|
||||||||||||||||||||
| Value History (*The County Treasurer 405-713-1300 posts & collects actual tax amounts. Contact information HERE) | |||||||||||||
|---|---|---|---|---|---|---|---|---|---|---|---|---|---|
| Year | Market Value | Taxable Mkt Value | Gross Assessed | Exemption | Net Assessed | Millage | Est. Tax | Tax Savings | |||||
|
2025 |
154,000 |
111,289 |
12,241 |
1,000 |
11,241 |
119.58 |
$1,344 |
$681 |
|||||
|
2024 |
147,000 |
108,048 |
11,885 |
1,000 |
10,885 |
122.51 |
$1,334 |
$647 |
|||||
|
2023 |
135,000 |
104,901 |
11,539 |
1,000 |
10,539 |
117.71 |
$1,241 |
$507 |
|||||
|
2022 |
123,500 |
101,846 |
11,202 |
1,000 |
10,202 |
116.64 |
$1,190 |
$394 |
|||||
|
2021 |
107,500 |
98,880 |
10,876 |
1,000 |
9,876 |
119.45 |
$1,180 |
$233 |
|||||
| Property Account Status/Adjustments/Exemptions | ||
|---|---|---|
| Account # | Exemption Description | Amount |
|
R150102125 |
3% Cap Homestead |
0 |
|
R150102125 |
Homestead |
1,000 |
| Property Deed Transaction History (Recorded in the County Clerk's Office) | ||||||||||
|---|---|---|---|---|---|---|---|---|---|---|
| Date | Type | Book | Page | Price | Grantor | Grantee | ||||
|
10/9/2014 |
|
Deeds |
$60,000 |
FEDERAL NATIONAL MORTGAGE ASSOCIATION |
FOSHEE GREGORY S & LISA A |
|||||
|
7/22/2014 |
|
Deeds |
$58,500 |
BISHOP ARTHALENA GAY |
FEDERAL NATIONAL MORTGAGE ASSOCIATION |
|||||
|
10/12/2011 |
|
Deeds |
$0 |
BISHOP JIMMY F JR BISHOP ARTHALENA G |
BISHOP ARTHALENA GAY |
|||||
|
11/7/2007 |
|
Deeds |
$91,500 |
CARBAJAL CHAQUITA |
BISHOP JIMMY F JR BISHOP ARTHALENA G |
|||||
|
8/4/2005 |
|
Deeds |
$86,500 |
THETREAU CHRISTOPHER S |
CARBAJAL CHAQUITA |
|||||
| Last Mailed Notice of Value (N.O.V.) Information/History | ||||||||
|---|---|---|---|---|---|---|---|---|
| Year | Date | Market Value | Taxable Market Value | Gross Assessed | Exemption | Net Assessed | ||
|
2026 |
02/06/2026 |
153,500 |
114,627 |
12,608 |
1,000 |
11,608 |
||
|
2025 |
01/31/2025 |
154,000 |
111,289 |
12,241 |
1,000 |
11,241 |
||
|
2024 |
01/22/2024 |
147,000 |
108,048 |
11,885 |
1,000 |
10,885 |
||
|
2023 |
01/23/2023 |
135,000 |
104,901 |
11,539 |
1,000 |
10,539 |
||
|
2022 |
02/22/2022 |
123,500 |
101,846 |
11,202 |
1,000 |
10,202 |
||
| Property Building Permit History | ||||||
|---|---|---|---|---|---|---|
| Issued | Permit # | Provided by | Bldg # | Description | Est Construction Cost | Status |
|
12/18/1995 |
10244964 |
MIDWEST CITY |
1 |
Fire Remodel |
30,000 |
Inactive |
| Click button on building number to access detailed information: | ||||||
|---|---|---|---|---|---|---|
| Bldg # | Vacant/Improved Land | Bldg Description | Year Built | SqFt | # Stories | |
|
1 |
Improved |
Ranch 1 Story |
1947 |
1,471 |
1 Stories |
|