|
|
|
| Larry Stein Oklahoma County Assessor (405) 713-1200 - Public Access System |
|
|
|
|
|
|
| Real Property Display - Screen Produced 4/1/2026 2:25:56 AM | ||||
|---|---|---|---|---|
| Account: R171372060 | Type: Residential | Location: |
7402 NW 105TH ST |
|
| Building Name/Occupant: |
|
OKLAHOMA CITY |
||
| Owner Name 1: | BENSINGER FRED |
Parcel PIN#: |
3913-17-137-2060 |
|
| Owner Name 2: | BENSINGER JUSTIN | 1/4 section #: |
3913 |
|
| Owner Name 3: | Parent Acct: |
|
||
| Billing Address: | 7402 NW 105TH ST | Tax District: |
|
|
| City, State, Zip | OKLAHOMA CITY, OK 73162 | School System: |
Putnam City #1 |
|
|
Country: (If noted) |
Land Size: |
0.2066 Acres |
||
|
Land Value: 43,200 |
|
|||
|
Sect 29-T13N-R4W Qtr NE |
EAGLE LAKE ESTATES
Block
006
Lot
006
|
|||
| Full Legal Description: EAGLE LAKE ESTATES 006 006 |
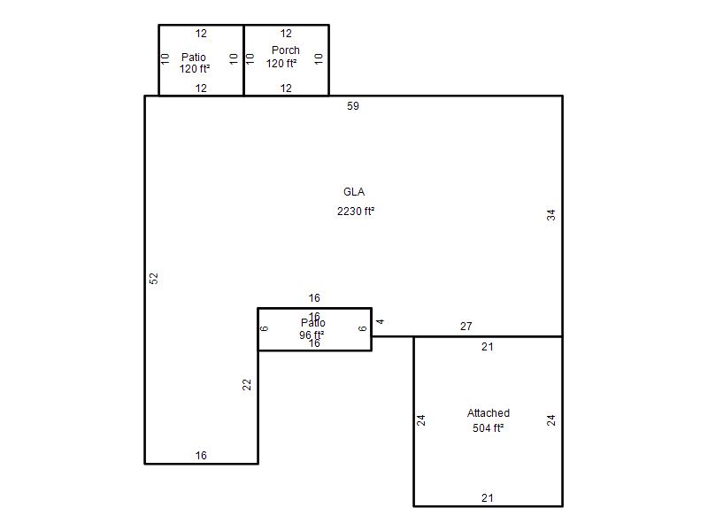
| Photo & Sketch (if available) | Comp Sales (ordered by relevancy) |
|
||||||||||||||||||
|
||||||||||||||||||||
| Value History (*The County Treasurer 405-713-1300 posts & collects actual tax amounts. Contact information HERE) | |||||||||||||
|---|---|---|---|---|---|---|---|---|---|---|---|---|---|
| Year | Market Value | Taxable Mkt Value | Gross Assessed | Exemption | Net Assessed | Millage | Est. Tax | Tax Savings | |||||
|
2026 |
255,500 |
157,123 |
17,283 |
1,000 |
16,283 |
123.17 |
$2,006 |
$1,456 |
|||||
|
2025 |
251,000 |
157,123 |
17,283 |
1,000 |
16,283 |
123.17 |
$2,006 |
$1,395 |
|||||
|
2024 |
244,000 |
157,123 |
17,283 |
1,000 |
16,283 |
122.30 |
$1,991 |
$1,291 |
|||||
|
2023 |
230,500 |
157,123 |
17,283 |
1,000 |
16,283 |
121.91 |
$1,985 |
$1,106 |
|||||
|
2022 |
200,000 |
157,123 |
17,283 |
1,000 |
16,283 |
123.41 |
$2,010 |
$705 |
|||||
| Property Account Status/Adjustments/Exemptions | ||
|---|---|---|
| Account # | Exemption Description | Amount |
|
R171372060 |
Freeze Senior Valuation |
0 |
|
R171372060 |
Homestead |
1,000 |
|
R171372060 |
3% Cap Homestead |
0 |
| Property Deed Transaction History (Recorded in the County Clerk's Office) | ||||||||||
|---|---|---|---|---|---|---|---|---|---|---|
| Date | Type | Book | Page | Price | Grantor | Grantee | ||||
|
10/3/2022 |
|
Deeds |
$0 |
BENSINGER FRED |
BENSINGER FRED |
|||||
|
3/28/2007 |
|
Deeds |
$0 |
BENSINGER FREDERICK L & BRENDA K |
BENSINGER FRED |
|||||
|
7/2/1999 |
|
Deeds |
$0 |
HALL RICHARD D & VESTA |
HALL RICHARD |
|||||
|
6/30/1999 |
|
Deeds |
$100,000 |
HALL RICHARD DEAN |
BENSINGER FREDERICK L & BRENDA K |
|||||
|
4/17/1995 |
|
Historical |
$0 |
HALL RICHARD DEAN |
HALL RICHARD DEAN |
|||||
| Last Mailed Notice of Value (N.O.V.) Information/History | ||||||||
|---|---|---|---|---|---|---|---|---|
| Year | Date | Market Value | Taxable Market Value | Gross Assessed | Exemption | Net Assessed | ||
|
2026 |
02/23/2026 |
255,500 |
157,123 |
17,283 |
1,000 |
16,283 |
||
|
2025 |
02/14/2025 |
251,000 |
157,123 |
17,283 |
1,000 |
16,283 |
||
|
2024 |
02/13/2024 |
244,000 |
157,123 |
17,283 |
1,000 |
16,283 |
||
|
2023 |
02/14/2023 |
230,500 |
157,123 |
17,283 |
1,000 |
16,283 |
||
|
2022 |
03/15/2022 |
200,000 |
157,123 |
17,283 |
1,000 |
16,283 |
||
| Property Building Permit History | |||||||||||
|---|---|---|---|---|---|---|---|---|---|---|---|
| Issued | Permit # | Provided by | Bldg # | Description | Est Construction Cost | Status | |||||
| No Building Permit records returned. | |||||||||||
| Click button on building number to access detailed information: | ||||||
|---|---|---|---|---|---|---|
| Bldg # | Vacant/Improved Land | Bldg Description | Year Built | SqFt | # Stories | |
|
1 |
Improved |
Ranch 1 Story |
1981 |
2,230 |
1 Stories |
|