|
|
|
| Larry Stein Oklahoma County Assessor (405) 713-1200 - Public Access System |
|
|
|
|
|
|
| Real Property Display - Screen Produced 4/1/2026 3:14:16 PM | ||||
|---|---|---|---|---|
| Account: R171372120 | Type: Residential | Location: |
7300 NW 105TH ST |
|
| Building Name/Occupant: |
|
OKLAHOMA CITY |
||
| Owner Name 1: | SWEISS FRANK R & NAZEK |
Parcel PIN#: |
3913-17-137-2120 |
|
| Owner Name 2: | SWEISS MARK & NADIA | 1/4 section #: |
3913 |
|
| Owner Name 3: | Parent Acct: |
|
||
| Billing Address: | 12617 COBBLESTONE PKWY | Tax District: |
|
|
| City, State, Zip | OKLAHOMA CITY, OK 73142 | School System: |
Putnam City #1 |
|
|
Country: (If noted) |
Land Size: |
0.2167 Acres |
||
|
Land Value: 45,302 |
|
|||
|
Sect 29-T13N-R4W Qtr NE |
EAGLE LAKE ESTATES
Block
007
Lot
001
|
|||
| Full Legal Description: EAGLE LAKE ESTATES 007 001 |
| Photo & Sketch (if available) | Comp Sales (ordered by relevancy) |
|
||||||||||||||||||
|
||||||||||||||||||||
| Value History (*The County Treasurer 405-713-1300 posts & collects actual tax amounts. Contact information HERE) | |||||||||||||
|---|---|---|---|---|---|---|---|---|---|---|---|---|---|
| Year | Market Value | Taxable Mkt Value | Gross Assessed | Exemption | Net Assessed | Millage | Est. Tax | Tax Savings | |||||
|
2026 |
241,500 |
204,205 |
22,461 |
0 |
22,461 |
123.17 |
$2,767 |
$505 |
|||||
|
2025 |
236,500 |
194,481 |
21,392 |
0 |
21,392 |
123.17 |
$2,635 |
$569 |
|||||
|
2024 |
230,500 |
185,220 |
20,374 |
0 |
20,374 |
122.30 |
$2,492 |
$609 |
|||||
|
2023 |
216,000 |
176,400 |
19,404 |
0 |
19,404 |
121.91 |
$2,366 |
$531 |
|||||
|
2022 |
186,500 |
168,000 |
18,480 |
0 |
18,480 |
123.41 |
$2,281 |
$251 |
|||||
| Property Account Status/Adjustments/Exemptions | ||
|---|---|---|
| Account # | Exemption Description | Amount |
|
R171372120 |
5% Capped Account |
0 |
| Property Deed Transaction History (Recorded in the County Clerk's Office) | |||||||
|---|---|---|---|---|---|---|---|
| Date | Type | Book | Page | Price | Grantor | Grantee | |
|
8/20/2004 |
|
Deeds |
$0 |
SWEISS FRANK & NAZEK |
SWEISS FRANK R & NAZEK |
||
|
2/20/1990 |
|
Historical |
$0 |
SWEISS FRANK RAFIO |
SWEISS FRANK & NAZEK |
||
|
3/2/1988 |
|
Historical |
$75,000 |
DICKINSON JAMES L & BARBARA A |
SWEISS FRANK RAFIO |
||
|
3/1/1980 |
|
Historical |
$0 |
|
DICKINSON JAMES L & BARBARA A |
||
| Last Mailed Notice of Value (N.O.V.) Information/History | ||||||||
|---|---|---|---|---|---|---|---|---|
| Year | Date | Market Value | Taxable Market Value | Gross Assessed | Exemption | Net Assessed | ||
|
2026 |
02/23/2026 |
241,500 |
204,205 |
22,461 |
0 |
22,461 |
||
|
2025 |
02/14/2025 |
236,500 |
194,481 |
21,392 |
0 |
21,392 |
||
|
2024 |
02/13/2024 |
230,500 |
185,220 |
20,374 |
0 |
20,374 |
||
|
2023 |
02/14/2023 |
216,000 |
176,400 |
19,404 |
0 |
19,404 |
||
|
2022 |
03/15/2022 |
186,500 |
168,000 |
18,480 |
0 |
18,480 |
||
| Property Building Permit History | |||||||||||
|---|---|---|---|---|---|---|---|---|---|---|---|
| Issued | Permit # | Provided by | Bldg # | Description | Est Construction Cost | Status | |||||
| No Building Permit records returned. | |||||||||||
| Click button on building number to access detailed information: | ||||||
|---|---|---|---|---|---|---|
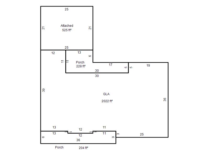
| Bldg # | Vacant/Improved Land | Bldg Description | Year Built | SqFt | # Stories | |
|
1 |
Improved |
Ranch 1 Story |
1979 |
2,022 |
1 Stories |
|