|
|
|
| Larry Stein Oklahoma County Assessor (405) 713-1200 - Public Access System |
|
|
|
|
|
|
| Real Property Display - Screen Produced 3/16/2026 7:51:42 AM | ||||
|---|---|---|---|---|
| Account: R142161200 | Type: Residential | Location: |
7713 NORTHGATE AVE |
|
| Building Name/Occupant: |
|
OKLAHOMA CITY |
||
| Owner Name 1: | MCWILLIAMS LARRY & MARGARET |
Parcel PIN#: |
3915-14-216-1200 |
|
| Owner Name 2: | 1/4 section #: |
3915 |
||
| Owner Name 3: | Parent Acct: |
|
||
| Billing Address: | 7713 NORTHGATE AVE | Tax District: |
|
|
| City, State, Zip | OKLAHOMA CITY, OK 73162-5579 | School System: |
Putnam City #1 |
|
|
Country: (If noted) |
Land Size: |
0.3954 Acres |
||
|
Land Value: 60,277 |
|
|||
|
Sect 29-T13N-R4W Qtr SW |
BROOKHAVEN WEST
Block
002
Lot
004
|
|||
| Full Legal Description: BROOKHAVEN WEST 002 004 |
| Photo & Sketch (if available) | Comp Sales (ordered by relevancy) |
|
||||||||||||||||||
|
||||||||||||||||||||
| Value History (*The County Treasurer 405-713-1300 posts & collects actual tax amounts. Contact information HERE) | |||||||||||||
|---|---|---|---|---|---|---|---|---|---|---|---|---|---|
| Year | Market Value | Taxable Mkt Value | Gross Assessed | Exemption | Net Assessed | Millage | Est. Tax | Tax Savings | |||||
|
2025 |
251,500 |
217,604 |
23,935 |
0 |
23,935 |
123.17 |
$2,948 |
$459 |
|||||
|
2024 |
250,000 |
207,242 |
22,796 |
0 |
22,796 |
122.30 |
$2,788 |
$575 |
|||||
|
2023 |
239,500 |
197,374 |
21,710 |
0 |
21,710 |
121.91 |
$2,647 |
$565 |
|||||
|
2022 |
220,500 |
187,976 |
20,676 |
0 |
20,676 |
123.41 |
$2,552 |
$442 |
|||||
|
2021 |
183,000 |
179,025 |
19,692 |
0 |
19,692 |
122.23 |
$2,407 |
$53 |
|||||
| Property Account Status/Adjustments/Exemptions | ||
|---|---|---|
| Account # | Exemption Description | Amount |
|
R142161200 |
5% Capped Account |
0 |
| Property Deed Transaction History (Recorded in the County Clerk's Office) | |||||||
|---|---|---|---|---|---|---|---|
| Date | Type | Book | Page | Price | Grantor | Grantee | |
|
7/28/1989 |
|
Historical |
$80,000 |
GARRETT ROBERT L & BONITA E |
MCWILLIAMS LARRY & MARGARET |
||
|
3/8/1988 |
|
Historical |
$69,500 |
BOOTH GRACE L & JOHN |
GARRETT ROBERT L & BONITA E |
||
|
4/3/1987 |
|
Historical |
$70,000 |
FEDERAL NATIONAL |
BOOTH GRACE L & JOHN |
||
|
9/1/1986 |
|
Historical |
$0 |
WEST BRADY & PAMELA ANN MARLIN |
FEDERAL NATIONAL |
||
|
8/1/1982 |
|
Historical |
$0 |
|
WEST BRADY & PAMELA ANN MARLIN |
||
| Last Mailed Notice of Value (N.O.V.) Information/History | ||||||||
|---|---|---|---|---|---|---|---|---|
| Year | Date | Market Value | Taxable Market Value | Gross Assessed | Exemption | Net Assessed | ||
|
2026 |
02/23/2026 |
253,500 |
228,484 |
25,132 |
0 |
25,132 |
||
|
2025 |
02/14/2025 |
251,500 |
217,604 |
23,935 |
0 |
23,935 |
||
|
2024 |
02/13/2024 |
250,000 |
207,242 |
22,796 |
0 |
22,796 |
||
|
2023 |
02/14/2023 |
239,500 |
197,374 |
21,710 |
0 |
21,710 |
||
|
2022 |
03/15/2022 |
220,500 |
187,976 |
20,676 |
0 |
20,676 |
||
| Property Building Permit History | |||||||||||
|---|---|---|---|---|---|---|---|---|---|---|---|
| Issued | Permit # | Provided by | Bldg # | Description | Est Construction Cost | Status | |||||
| No Building Permit records returned. | |||||||||||
| Click button on building number to access detailed information: | ||||||
|---|---|---|---|---|---|---|
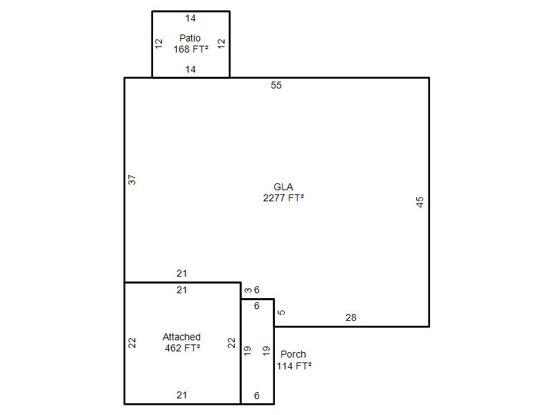
| Bldg # | Vacant/Improved Land | Bldg Description | Year Built | SqFt | # Stories | |
|
1 |
Improved |
Ranch 1 Story |
1976 |
2,277 |
1 Stories |
|