|
|
|
| Larry Stein Oklahoma County Assessor (405) 713-1200 - Public Access System |
|
|
|
|
|
|
| Real Property Display - Screen Produced 3/16/2026 7:51:42 AM | ||||
|---|---|---|---|---|
| Account: R142162540 | Type: Residential | Location: |
7601 EASTGATE DR |
|
| Building Name/Occupant: |
|
OKLAHOMA CITY |
||
| Owner Name 1: | MALTBY RACHAEL |
Parcel PIN#: |
3915-14-216-2540 |
|
| Owner Name 2: | 1/4 section #: |
3915 |
||
| Owner Name 3: | Parent Acct: |
|
||
| Billing Address: | 7601 EASTGATE DR | Tax District: |
|
|
| City, State, Zip | OKLAHOMA CITY, OK 73162-6259 | School System: |
Putnam City #1 |
|
|
Country: (If noted) |
Land Size: |
0.2066 Acres |
||
|
Land Value: 31,500 |
|
|||
|
Sect 29-T13N-R4W Qtr SW |
BROOKHAVEN WEST
Block
008
Lot
013
|
|||
| Full Legal Description: BROOKHAVEN WEST 008 013 |
| Photo & Sketch (if available) | Comp Sales (ordered by relevancy) |
|
||||||||||||||||||
|
||||||||||||||||||||
| Value History (*The County Treasurer 405-713-1300 posts & collects actual tax amounts. Contact information HERE) | |||||||||||||
|---|---|---|---|---|---|---|---|---|---|---|---|---|---|
| Year | Market Value | Taxable Mkt Value | Gross Assessed | Exemption | Net Assessed | Millage | Est. Tax | Tax Savings | |||||
|
2025 |
197,500 |
165,915 |
18,250 |
0 |
18,250 |
123.17 |
$2,248 |
$428 |
|||||
|
2024 |
194,000 |
158,015 |
17,381 |
0 |
17,381 |
122.30 |
$2,126 |
$484 |
|||||
|
2023 |
186,000 |
150,491 |
16,553 |
0 |
16,553 |
121.91 |
$2,018 |
$476 |
|||||
|
2022 |
169,500 |
143,325 |
15,765 |
0 |
15,765 |
123.41 |
$1,946 |
$355 |
|||||
|
2021 |
141,000 |
136,500 |
15,015 |
0 |
15,015 |
122.23 |
$1,835 |
$61 |
|||||
| Property Account Status/Adjustments/Exemptions | ||
|---|---|---|
| Account # | Exemption Description | Amount |
|
R142162540 |
5% Capped Account |
0 |
| Property Deed Transaction History (Recorded in the County Clerk's Office) | ||||||||||
|---|---|---|---|---|---|---|---|---|---|---|
| Date | Type | Book | Page | Price | Grantor | Grantee | ||||
|
8/14/2017 |
|
Deeds |
$134,500 |
COCHRAN BRADLEY S & BRITTANEY N |
MALTBY RACHAEL |
|||||
|
3/25/2013 |
|
Deeds |
$0 |
COCHRAN BRADLEY S |
COCHRAN BRADLEY S & BRITTANEY N |
|||||
|
2/26/2010 |
|
Deeds |
$110,000 |
PALEY STEPHEN A & MARSHA |
COCHRAN BRADLEY S |
|||||
|
11/9/2009 |
|
Deeds |
$0 |
PALEY MARSHA |
PALEY STEPHEN A & MARSHA |
|||||
|
1/31/2006 |
|
Deeds |
$0 |
PALEY STEPHEN & MARSHA |
PALEY MARSHA |
|||||
| Last Mailed Notice of Value (N.O.V.) Information/History | ||||||||
|---|---|---|---|---|---|---|---|---|
| Year | Date | Market Value | Taxable Market Value | Gross Assessed | Exemption | Net Assessed | ||
|
2026 |
02/23/2026 |
204,000 |
174,210 |
19,162 |
0 |
19,162 |
||
|
2025 |
02/14/2025 |
197,500 |
165,915 |
18,250 |
0 |
18,250 |
||
|
2024 |
02/13/2024 |
194,000 |
158,015 |
17,381 |
0 |
17,381 |
||
|
2023 |
02/14/2023 |
186,000 |
150,491 |
16,553 |
0 |
16,553 |
||
|
2022 |
03/15/2022 |
169,500 |
143,325 |
15,765 |
0 |
15,765 |
||
| Property Building Permit History | |||||||||||
|---|---|---|---|---|---|---|---|---|---|---|---|
| Issued | Permit # | Provided by | Bldg # | Description | Est Construction Cost | Status | |||||
| No Building Permit records returned. | |||||||||||
| Click button on building number to access detailed information: | ||||||
|---|---|---|---|---|---|---|
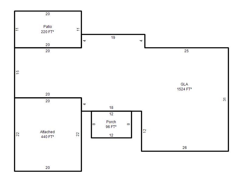
| Bldg # | Vacant/Improved Land | Bldg Description | Year Built | SqFt | # Stories | |
|
1 |
Improved |
Ranch 1 Story |
1974 |
1,524 |
1 Stories |
|