|
|
|
| Larry Stein Oklahoma County Assessor (405) 713-1200 - Public Access System |
|
|
|
|
|
|
| Real Property Display - Screen Produced 4/1/2026 10:50:15 PM | ||||
|---|---|---|---|---|
| Account: R123941010 | Type: Residential | Location: |
10425 HARVEST HILLS RD |
|
| Building Name/Occupant: |
|
OKLAHOMA CITY |
||
| Owner Name 1: | KOSS MICHAEL |
Parcel PIN#: |
3917-12-394-1010 |
|
| Owner Name 2: | 1/4 section #: |
3917 |
||
| Owner Name 3: | Parent Acct: |
|
||
| Billing Address: | 14509 CHAPEL DR | Tax District: |
|
|
| City, State, Zip | PIEDMONT, OK 73078-8926 | School System: |
Putnam City #1 |
|
|
Country: (If noted) |
Land Size: |
0.2005 Acres |
||
|
Land Value: 44,975 |
|
|||
|
Sect 30-T13N-R4W Qtr NE |
HARVEST HILLS SEC 5
Block
021
Lot
002
|
|||
| Full Legal Description: HARVEST HILLS SEC 5 021 002 |
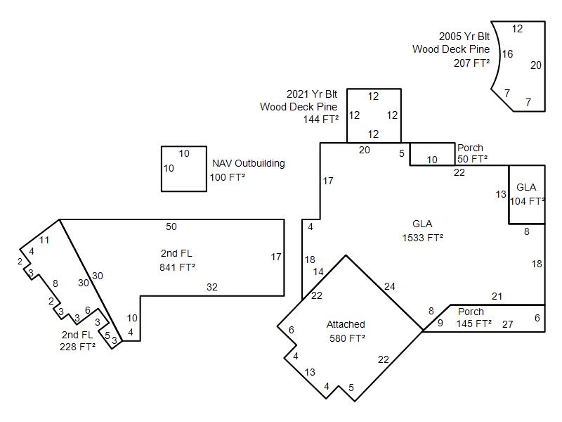
| Photo & Sketch (if available) | Comp Sales (ordered by relevancy) |
|
||||||||||||||||||
|
||||||||||||||||||||
| Value History (*The County Treasurer 405-713-1300 posts & collects actual tax amounts. Contact information HERE) | |||||||||||||
|---|---|---|---|---|---|---|---|---|---|---|---|---|---|
| Year | Market Value | Taxable Mkt Value | Gross Assessed | Exemption | Net Assessed | Millage | Est. Tax | Tax Savings | |||||
|
2026 |
315,500 |
267,890 |
29,467 |
0 |
29,467 |
123.17 |
$3,630 |
$645 |
|||||
|
2025 |
306,500 |
255,134 |
28,064 |
0 |
28,064 |
123.17 |
$3,457 |
$696 |
|||||
|
2024 |
305,000 |
242,985 |
26,727 |
0 |
26,727 |
122.30 |
$3,269 |
$834 |
|||||
|
2023 |
287,500 |
231,415 |
25,455 |
0 |
25,455 |
121.91 |
$3,103 |
$752 |
|||||
|
2022 |
244,500 |
218,491 |
24,032 |
0 |
24,032 |
123.41 |
$2,966 |
$353 |
|||||
| Property Account Status/Adjustments/Exemptions | ||
|---|---|---|
| Account # | Exemption Description | Amount |
|
R123941010 |
5% Capped Account |
0 |
| Property Deed Transaction History (Recorded in the County Clerk's Office) | ||||||||||
|---|---|---|---|---|---|---|---|---|---|---|
| Date | Type | Book | Page | Price | Grantor | Grantee | ||||
|
2/12/2015 |
|
Deeds |
$187,000 |
GRASSMAN ROBERT S & LAURIE M |
KOSS MICHAEL |
|||||
|
3/26/2010 |
|
Deeds |
$0 |
GRASSMANN ROBERT SCOTT |
GRASSMAN ROBERT S & LAURIE M |
|||||
|
12/22/2005 |
|
Deeds |
$165,000 |
JUNCTION PROPERTIES LLC |
GRASSMANN ROBERT SCOTT |
|||||
|
9/6/2005 |
|
Deeds |
$146,500 |
FLORES MARTY A |
JUNCTION PROPERTIES LLC |
|||||
|
11/6/2003 |
|
Deeds |
$162,000 |
STOTTS JEFFERY L & WENDOLYN W |
FLORES MARTY A |
|||||
| Last Mailed Notice of Value (N.O.V.) Information/History | ||||||||
|---|---|---|---|---|---|---|---|---|
| Year | Date | Market Value | Taxable Market Value | Gross Assessed | Exemption | Net Assessed | ||
|
2026 |
02/23/2026 |
315,500 |
267,890 |
29,467 |
0 |
29,467 |
||
|
2025 |
02/14/2025 |
306,500 |
255,134 |
28,064 |
0 |
28,064 |
||
|
2024 |
02/13/2024 |
305,000 |
242,985 |
26,727 |
0 |
26,727 |
||
|
2023 |
03/02/2023 |
287,500 |
231,415 |
25,455 |
0 |
25,455 |
||
|
2022 |
03/15/2022 |
244,500 |
214,329 |
23,574 |
1,000 |
22,574 |
||
| Property Building Permit History | |||||||||||
|---|---|---|---|---|---|---|---|---|---|---|---|
| Issued | Permit # | Provided by | Bldg # | Description | Est Construction Cost | Status | |||||
| No Building Permit records returned. | |||||||||||
| Click button on building number to access detailed information: | ||||||
|---|---|---|---|---|---|---|
| Bldg # | Vacant/Improved Land | Bldg Description | Year Built | SqFt | # Stories | |
|
1 |
Improved |
2 Story |
1985 |
2,706 |
2 Stories |
|