|
|
|
| Larry Stein Oklahoma County Assessor (405) 713-1200 - Public Access System |
|
|
|
|
|
|
| Real Property Display - Screen Produced 4/1/2026 10:50:15 PM | ||||
|---|---|---|---|---|
| Account: R123941020 | Type: Residential | Location: |
10421 HARVEST HILLS RD |
|
| Building Name/Occupant: |
|
OKLAHOMA CITY |
||
| Owner Name 1: | ROPER STEPHENSON BETHANY DAWN |
Parcel PIN#: |
3917-12-394-1020 |
|
| Owner Name 2: | 1/4 section #: |
3917 |
||
| Owner Name 3: | Parent Acct: |
|
||
| Billing Address: | 10421 HARVEST HILLS RD | Tax District: |
|
|
| City, State, Zip | OKLAHOMA CITY, OK 73162-4010 | School System: |
Putnam City #1 |
|
|
Country: (If noted) |
Land Size: |
0.2170 Acres |
||
|
Land Value: 48,683 |
|
|||
|
Sect 30-T13N-R4W Qtr NE |
HARVEST HILLS SEC 5
Block
021
Lot
003
|
|||
| Full Legal Description: HARVEST HILLS SEC 5 021 003 |
| Photo & Sketch (if available) | Comp Sales (ordered by relevancy) |
|
||||||||||||||||||
|
||||||||||||||||||||
| Value History (*The County Treasurer 405-713-1300 posts & collects actual tax amounts. Contact information HERE) | |||||||||||||
|---|---|---|---|---|---|---|---|---|---|---|---|---|---|
| Year | Market Value | Taxable Mkt Value | Gross Assessed | Exemption | Net Assessed | Millage | Est. Tax | Tax Savings | |||||
|
2026 |
260,500 |
218,391 |
24,022 |
0 |
24,022 |
123.17 |
$2,959 |
$571 |
|||||
|
2025 |
258,500 |
207,992 |
22,878 |
0 |
22,878 |
123.17 |
$2,818 |
$684 |
|||||
|
2024 |
253,000 |
198,088 |
21,789 |
1,000 |
20,789 |
122.30 |
$2,543 |
$861 |
|||||
|
2023 |
241,000 |
192,319 |
21,154 |
1,000 |
20,154 |
121.91 |
$2,457 |
$775 |
|||||
|
2022 |
209,000 |
186,718 |
20,538 |
1,000 |
19,538 |
123.41 |
$2,411 |
$426 |
|||||
| Property Account Status/Adjustments/Exemptions | ||
|---|---|---|
| Account # | Exemption Description | Amount |
|
R123941020 |
5% Capped Account |
0 |
| Property Deed Transaction History (Recorded in the County Clerk's Office) | ||||||||||
|---|---|---|---|---|---|---|---|---|---|---|
| Date | Type | Book | Page | Price | Grantor | Grantee | ||||
|
2/12/2026 |
|
Deeds |
$242,000 |
MICHELSON MARTY A & ROBYN R RILEY TRS |
ROPER STEPHENSON BETHANY DAWN |
|||||
|
1/27/2020 |
|
Deeds |
$0 |
MICHELSON MARTY ALAN & ROBYN RENEE RILEY |
MICHELSON MARTY ALAN |
|||||
|
1/27/2020 |
|
Deeds |
$0 |
MICHELSON MARTY ALAN |
MICHELSON MARTY A & ROBYN R RILEY TRS |
|||||
|
11/16/2015 |
|
Deeds |
$0 |
RILEY ROBYN RENEE MICHELSON MARTY ALAN |
MICHELSON MARTY ALAN & ROBYN RENEE RILEY |
|||||
|
6/14/2014 |
|
Deeds |
$150,000 |
GLENN CLAIRE P TRS GLENN CLAIRE P TRUST |
RILEY ROBYN RENEE MICHELSON MARTY ALAN |
|||||
| Last Mailed Notice of Value (N.O.V.) Information/History | ||||||||
|---|---|---|---|---|---|---|---|---|
| Year | Date | Market Value | Taxable Market Value | Gross Assessed | Exemption | Net Assessed | ||
|
2026 |
02/23/2026 |
260,500 |
218,391 |
24,022 |
0 |
24,022 |
||
|
2026 |
03/30/2026 |
260,500 |
218,391 |
24,022 |
0 |
24,022 |
||
|
2025 |
02/14/2025 |
258,500 |
204,030 |
22,442 |
1,000 |
21,442 |
||
|
2024 |
02/13/2024 |
253,000 |
198,088 |
21,789 |
1,000 |
20,789 |
||
|
2023 |
02/14/2023 |
241,000 |
192,319 |
21,154 |
1,000 |
20,154 |
||
| Property Building Permit History | |||||||||||
|---|---|---|---|---|---|---|---|---|---|---|---|
| Issued | Permit # | Provided by | Bldg # | Description | Est Construction Cost | Status | |||||
| No Building Permit records returned. | |||||||||||
| Click button on building number to access detailed information: | ||||||
|---|---|---|---|---|---|---|
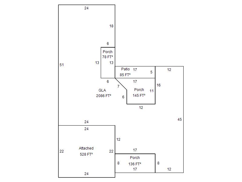
| Bldg # | Vacant/Improved Land | Bldg Description | Year Built | SqFt | # Stories | |
|
1 |
Improved |
Ranch 1 Story |
1986 |
2,086 |
1 Stories |
|