|
|
|
| Larry Stein Oklahoma County Assessor (405) 713-1200 - Public Access System |
|
|
|
|
|
|
| Real Property Display - Screen Produced 4/1/2026 10:50:14 PM | ||||
|---|---|---|---|---|
| Account: R123941040 | Type: Residential | Location: |
10404 HARVEST TIME LN |
|
| Building Name/Occupant: |
|
OKLAHOMA CITY |
||
| Owner Name 1: | HAWKINS JESSE & TONITA |
Parcel PIN#: |
3917-12-394-1040 |
|
| Owner Name 2: | 1/4 section #: |
3917 |
||
| Owner Name 3: | Parent Acct: |
|
||
| Billing Address: | 10404 HARVEST TIME LN | Tax District: |
|
|
| City, State, Zip | OKLAHOMA CITY, OK 73162-4011 | School System: |
Putnam City #1 |
|
|
Country: (If noted) |
Land Size: |
0.1768 Acres |
||
|
Land Value: 39,655 |
|
|||
|
Sect 30-T13N-R4W Qtr NE |
HARVEST HILLS SEC 5
Block
021
Lot
005
|
|||
| Full Legal Description: HARVEST HILLS SEC 5 021 005 |
| Photo & Sketch (if available) | Comp Sales (ordered by relevancy) |
|
||||||||||||||||||
|
||||||||||||||||||||
| Value History (*The County Treasurer 405-713-1300 posts & collects actual tax amounts. Contact information HERE) | |||||||||||||
|---|---|---|---|---|---|---|---|---|---|---|---|---|---|
| Year | Market Value | Taxable Mkt Value | Gross Assessed | Exemption | Net Assessed | Millage | Est. Tax | Tax Savings | |||||
|
2026 |
270,500 |
245,683 |
27,024 |
0 |
27,024 |
123.17 |
$3,329 |
$336 |
|||||
|
2025 |
269,000 |
233,984 |
25,737 |
0 |
25,737 |
123.17 |
$3,170 |
$474 |
|||||
|
2024 |
264,000 |
222,842 |
24,512 |
0 |
24,512 |
122.30 |
$2,998 |
$554 |
|||||
|
2023 |
251,500 |
212,231 |
23,344 |
0 |
23,344 |
121.91 |
$2,846 |
$527 |
|||||
|
2022 |
219,000 |
202,125 |
22,233 |
0 |
22,233 |
123.41 |
$2,744 |
$229 |
|||||
| Property Account Status/Adjustments/Exemptions | ||
|---|---|---|
| Account # | Exemption Description | Amount |
|
R123941040 |
5% Capped Account |
0 |
| Property Deed Transaction History (Recorded in the County Clerk's Office) | ||||||||||
|---|---|---|---|---|---|---|---|---|---|---|
| Date | Type | Book | Page | Price | Grantor | Grantee | ||||
|
10/14/2016 |
|
Deeds |
$177,500 |
WILLIAMS BRUCE & DIANE |
HAWKINS JESSE & TONITA |
|||||
|
12/30/1998 |
|
Historical |
$116,000 |
CARTER KEITH K |
WILLIAMS BRUCE & DIANE |
|||||
|
5/3/1993 |
|
Historical |
$96,000 |
MARSHALL JEFFREY W |
CARTER KEITH K |
|||||
|
6/14/1991 |
|
Historical |
$90,000 |
GILBERT PAUL D & DEBORAH A |
MARSHALL JEFFREY W |
|||||
|
5/18/1988 |
|
Historical |
$90,000 |
FERGUSON CONST INC |
GILBERT PAUL D & DEBORAH A |
|||||
| Last Mailed Notice of Value (N.O.V.) Information/History | ||||||||
|---|---|---|---|---|---|---|---|---|
| Year | Date | Market Value | Taxable Market Value | Gross Assessed | Exemption | Net Assessed | ||
|
2026 |
02/23/2026 |
270,500 |
245,683 |
27,024 |
0 |
27,024 |
||
|
2025 |
02/14/2025 |
269,000 |
233,984 |
25,737 |
0 |
25,737 |
||
|
2024 |
02/13/2024 |
264,000 |
222,842 |
24,512 |
0 |
24,512 |
||
|
2023 |
02/14/2023 |
251,500 |
212,231 |
23,344 |
0 |
23,344 |
||
|
2022 |
03/15/2022 |
219,000 |
202,125 |
22,233 |
0 |
22,233 |
||
| Property Building Permit History | |||||||||||
|---|---|---|---|---|---|---|---|---|---|---|---|
| Issued | Permit # | Provided by | Bldg # | Description | Est Construction Cost | Status | |||||
| No Building Permit records returned. | |||||||||||
| Click button on building number to access detailed information: | ||||||
|---|---|---|---|---|---|---|
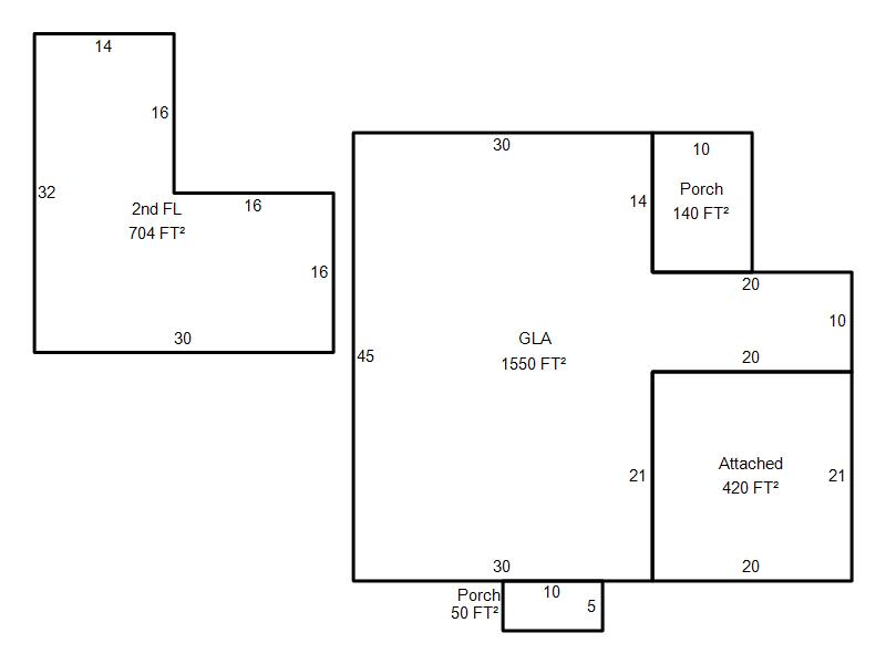
| Bldg # | Vacant/Improved Land | Bldg Description | Year Built | SqFt | # Stories | |
|
1 |
Improved |
1½ Story Fin |
1988 |
2,254 |
1.5 Stories |
|