|
|
|
| Larry Stein Oklahoma County Assessor (405) 713-1200 - Public Access System |
|
|
|
|
|
|
| Real Property Display - Screen Produced 4/1/2026 10:50:15 PM | ||||
|---|---|---|---|---|
| Account: R123941160 | Type: Residential | Location: |
10705 LONGVIEW DR |
|
| Building Name/Occupant: |
|
OKLAHOMA CITY |
||
| Owner Name 1: | RICHART BARBARA A |
Parcel PIN#: |
3917-12-394-1160 |
|
| Owner Name 2: | 1/4 section #: |
3917 |
||
| Owner Name 3: | Parent Acct: |
|
||
| Billing Address: | 10705 LONGVIEW DR | Tax District: |
|
|
| City, State, Zip | OKLAHOMA CITY, OK 73162-4036 | School System: |
Putnam City #1 |
|
|
Country: (If noted) |
Land Size: |
0.2152 Acres |
||
|
Land Value: 48,281 |
|
|||
|
Sect 30-T13N-R4W Qtr NE |
HARVEST HILLS SEC 5
Block
023
Lot
005
|
|||
| Full Legal Description: HARVEST HILLS SEC 5 023 005 |
| Photo & Sketch (if available) | Comp Sales (ordered by relevancy) |
|
||||||||||||||||||
|
||||||||||||||||||||
| Value History (*The County Treasurer 405-713-1300 posts & collects actual tax amounts. Contact information HERE) | |||||||||||||
|---|---|---|---|---|---|---|---|---|---|---|---|---|---|
| Year | Market Value | Taxable Mkt Value | Gross Assessed | Exemption | Net Assessed | Millage | Est. Tax | Tax Savings | |||||
|
2026 |
287,500 |
263,551 |
28,990 |
0 |
28,990 |
123.17 |
$3,571 |
$324 |
|||||
|
2025 |
285,500 |
251,001 |
27,609 |
0 |
27,609 |
123.17 |
$3,401 |
$467 |
|||||
|
2024 |
280,500 |
239,049 |
26,295 |
0 |
26,295 |
122.30 |
$3,216 |
$558 |
|||||
|
2023 |
268,000 |
227,666 |
25,042 |
0 |
25,042 |
121.91 |
$3,053 |
$541 |
|||||
|
2022 |
234,500 |
216,825 |
23,850 |
0 |
23,850 |
123.41 |
$2,943 |
$240 |
|||||
| Property Account Status/Adjustments/Exemptions | ||
|---|---|---|
| Account # | Exemption Description | Amount |
|
R123941160 |
5% Capped Account |
0 |
| Property Deed Transaction History (Recorded in the County Clerk's Office) | ||||||||||
|---|---|---|---|---|---|---|---|---|---|---|
| Date | Type | Book | Page | Price | Grantor | Grantee | ||||
|
5/23/2014 |
|
Deeds |
$170,000 |
GEDDIS WILLIAM W LIV TRUST |
RICHART BARBARA A |
|||||
|
3/11/2011 |
|
Deeds |
$115,000 |
RICHART BARBARA A |
GEDDIS WILLIAM W LIV TRUST |
|||||
|
6/7/2010 |
|
Deeds |
$0 |
RICHART DONALD R RICHART BARBARA A |
RICHART BARBARA A |
|||||
|
5/4/1995 |
|
Historical |
$115,000 |
MEIER DONALD R & JANICE M |
RICHART DONALD R |
|||||
|
3/19/1991 |
|
Historical |
$0 |
MEIER DOANLD R & JANICE M |
MEIER DONALD R & JANICE M |
|||||
| Last Mailed Notice of Value (N.O.V.) Information/History | ||||||||
|---|---|---|---|---|---|---|---|---|
| Year | Date | Market Value | Taxable Market Value | Gross Assessed | Exemption | Net Assessed | ||
|
2026 |
02/23/2026 |
287,500 |
263,551 |
28,990 |
0 |
28,990 |
||
|
2025 |
02/14/2025 |
285,500 |
251,001 |
27,609 |
0 |
27,609 |
||
|
2024 |
02/13/2024 |
280,500 |
239,049 |
26,295 |
0 |
26,295 |
||
|
2023 |
02/14/2023 |
268,000 |
227,666 |
25,042 |
0 |
25,042 |
||
|
2022 |
03/15/2022 |
234,500 |
216,825 |
23,850 |
0 |
23,850 |
||
| Property Building Permit History | |||||||||||
|---|---|---|---|---|---|---|---|---|---|---|---|
| Issued | Permit # | Provided by | Bldg # | Description | Est Construction Cost | Status | |||||
| No Building Permit records returned. | |||||||||||
| Click button on building number to access detailed information: | ||||||
|---|---|---|---|---|---|---|
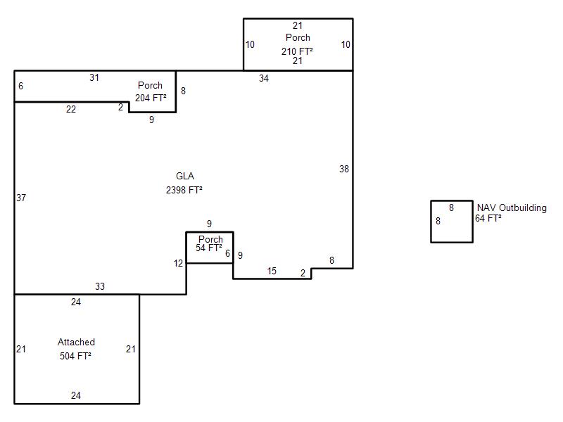
| Bldg # | Vacant/Improved Land | Bldg Description | Year Built | SqFt | # Stories | |
|
1 |
Improved |
Ranch 1 Story |
1989 |
2,398 |
1 Stories |
|