|
|
|
| Larry Stein Oklahoma County Assessor (405) 713-1200 - Public Access System |
|
|
|
|
|
|
| Real Property Display - Screen Produced 4/1/2026 10:50:16 PM | ||||
|---|---|---|---|---|
| Account: R123941240 | Type: Residential | Location: |
8332 NW 105TH ST |
|
| Building Name/Occupant: |
|
OKLAHOMA CITY |
||
| Owner Name 1: | AKARD PERRY D & TOMMIE REV TRUST |
Parcel PIN#: |
3917-12-394-1240 |
|
| Owner Name 2: | 1/4 section #: |
3917 |
||
| Owner Name 3: | Parent Acct: |
|
||
| Billing Address: | 8332 NW 105TH ST | Tax District: |
|
|
| City, State, Zip | OKLAHOMA CITY, OK 73162-4017 | School System: |
Putnam City #1 |
|
|
Country: (If noted) |
Land Size: |
0.2039 Acres |
||
|
Land Value: 45,732 |
|
|||
|
Sect 30-T13N-R4W Qtr NE |
HARVEST HILLS SEC 5
Block
023
Lot
013
|
|||
| Full Legal Description: HARVEST HILLS SEC 5 023 013 |
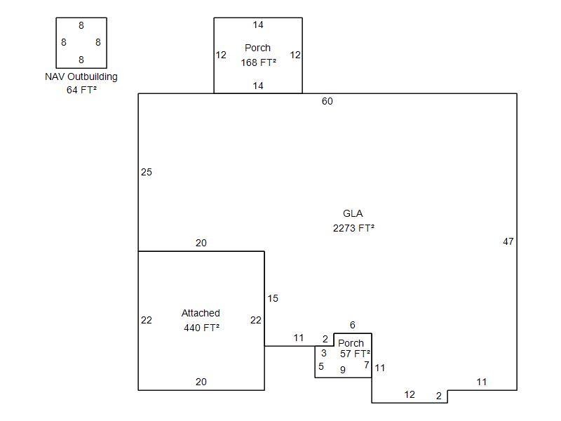
| Photo & Sketch (if available) | Comp Sales (ordered by relevancy) |
|
||||||||||||||||||
|
||||||||||||||||||||
| Value History (*The County Treasurer 405-713-1300 posts & collects actual tax amounts. Contact information HERE) | |||||||||||||
|---|---|---|---|---|---|---|---|---|---|---|---|---|---|
| Year | Market Value | Taxable Mkt Value | Gross Assessed | Exemption | Net Assessed | Millage | Est. Tax | Tax Savings | |||||
|
2026 |
273,000 |
186,718 |
20,538 |
1,000 |
19,538 |
123.17 |
$2,407 |
$1,292 |
|||||
|
2025 |
272,000 |
186,718 |
20,538 |
1,000 |
19,538 |
123.17 |
$2,407 |
$1,279 |
|||||
|
2024 |
267,000 |
186,718 |
20,538 |
1,000 |
19,538 |
122.30 |
$2,390 |
$1,202 |
|||||
|
2023 |
255,000 |
186,718 |
20,538 |
1,000 |
19,538 |
121.91 |
$2,382 |
$1,038 |
|||||
|
2022 |
223,000 |
186,718 |
20,538 |
1,000 |
19,538 |
123.41 |
$2,411 |
$616 |
|||||
| Property Account Status/Adjustments/Exemptions | ||
|---|---|---|
| Account # | Exemption Description | Amount |
|
R123941240 |
Freeze Senior Valuation |
0 |
|
R123941240 |
3% Cap Homestead |
0 |
|
R123941240 |
Homestead |
1,000 |
| Property Deed Transaction History (Recorded in the County Clerk's Office) | ||||||||||
|---|---|---|---|---|---|---|---|---|---|---|
| Date | Type | Book | Page | Price | Grantor | Grantee | ||||
|
10/16/2007 |
|
Deeds |
$0 |
AKARD PERRY D & TOMMIE L |
AKARD PERRY D & TOMMIE REV TRUST |
|||||
|
5/5/1998 |
|
Historical |
$120,000 |
MCANULTY ROBERT C & BARBARA J |
AKARD PERRY D & TOMMIE L |
|||||
|
4/20/1988 |
|
Historical |
$88,500 |
TODAY HOMES INC |
MCANULTY ROBERT C & BARBARA J |
|||||
|
2/10/1988 |
|
Historical |
$0 |
COLONY WEST INVESTMENT INC |
TODAY HOMES INC |
|||||
|
5/26/1987 |
|
Historical |
$0 |
LAWSON DEVELOPMENT CORP |
COLONY WEST INVESTMENT INC |
|||||
| Last Mailed Notice of Value (N.O.V.) Information/History | ||||||||
|---|---|---|---|---|---|---|---|---|
| Year | Date | Market Value | Taxable Market Value | Gross Assessed | Exemption | Net Assessed | ||
|
2026 |
02/23/2026 |
273,000 |
186,718 |
20,538 |
1,000 |
19,538 |
||
|
2025 |
02/14/2025 |
272,000 |
186,718 |
20,538 |
1,000 |
19,538 |
||
|
2024 |
02/13/2024 |
267,000 |
186,718 |
20,538 |
1,000 |
19,538 |
||
|
2023 |
02/14/2023 |
255,000 |
186,718 |
20,538 |
1,000 |
19,538 |
||
|
2022 |
03/15/2022 |
223,000 |
186,718 |
20,538 |
1,000 |
19,538 |
||
| Property Building Permit History | ||||||
|---|---|---|---|---|---|---|
| Issued | Permit # | Provided by | Bldg # | Description | Est Construction Cost | Status |
|
4/26/2000 |
10210873 |
OKLAHOMA CITY |
1 |
Other |
3,100 |
Inactive |
| Click button on building number to access detailed information: | ||||||
|---|---|---|---|---|---|---|
| Bldg # | Vacant/Improved Land | Bldg Description | Year Built | SqFt | # Stories | |
|
1 |
Improved |
Ranch 1 Story |
1988 |
2,273 |
1 Stories |
|