|
|
|
| Larry Stein Oklahoma County Assessor (405) 713-1200 - Public Access System |
|
|
|
|
|
|
| Real Property Display - Screen Produced 4/1/2026 10:50:15 PM | ||||
|---|---|---|---|---|
| Account: R123941400 | Type: Residential | Location: |
8317 NW 105TH TER |
|
| Building Name/Occupant: |
|
OKLAHOMA CITY |
||
| Owner Name 1: | GWANYAMA SIMPSON & JESICA |
Parcel PIN#: |
3917-12-394-1400 |
|
| Owner Name 2: | 1/4 section #: |
3917 |
||
| Owner Name 3: | Parent Acct: |
|
||
| Billing Address: | 8317 NW 105TH TER | Tax District: |
|
|
| City, State, Zip | OKLAHOMA CITY, OK 73162-4028 | School System: |
Putnam City #1 |
|
|
Country: (If noted) |
Land Size: |
0.1956 Acres |
||
|
Land Value: 43,878 |
|
|||
|
Sect 30-T13N-R4W Qtr NE |
HARVEST HILLS SEC 5
Block
023
Lot
029
|
|||
| Full Legal Description: HARVEST HILLS SEC 5 023 029 |
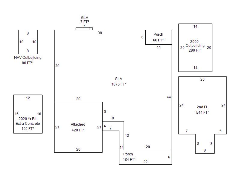
| Photo & Sketch (if available) | Comp Sales (ordered by relevancy) |
|
||||||||||||||||||
|
||||||||||||||||||||
| Value History (*The County Treasurer 405-713-1300 posts & collects actual tax amounts. Contact information HERE) | |||||||||||||
|---|---|---|---|---|---|---|---|---|---|---|---|---|---|
| Year | Market Value | Taxable Mkt Value | Gross Assessed | Exemption | Net Assessed | Millage | Est. Tax | Tax Savings | |||||
|
2026 |
286,500 |
259,720 |
28,568 |
0 |
28,568 |
123.17 |
$3,519 |
$363 |
|||||
|
2025 |
285,500 |
247,353 |
27,208 |
0 |
27,208 |
123.17 |
$3,351 |
$517 |
|||||
|
2024 |
277,500 |
235,575 |
25,912 |
0 |
25,912 |
122.30 |
$3,169 |
$564 |
|||||
|
2023 |
267,000 |
224,358 |
24,679 |
0 |
24,679 |
121.91 |
$3,009 |
$572 |
|||||
|
2022 |
230,000 |
213,675 |
23,504 |
0 |
23,504 |
123.41 |
$2,901 |
$222 |
|||||
| Property Account Status/Adjustments/Exemptions | ||
|---|---|---|
| Account # | Exemption Description | Amount |
|
R123941400 |
5% Capped Account |
0 |
| Property Deed Transaction History (Recorded in the County Clerk's Office) | ||||||||||
|---|---|---|---|---|---|---|---|---|---|---|
| Date | Type | Book | Page | Price | Grantor | Grantee | ||||
|
9/13/2013 |
|
Deeds |
$177,500 |
MAYSE DONALD D KONOP BONITA E |
GWANYAMA SIMPSON & JESICA |
|||||
|
3/31/2006 |
|
Deeds |
$168,500 |
BROADRICK N KARY TRS KOELSCH GERALD E IRREV TRUST |
MAYSE DONALD D KONOP BONITA E |
|||||
|
3/29/2006 |
|
Deeds |
$0 |
KOELSCH GERALD & ANGIE |
BROADRICK N KARY TRS KOELSCH GERALD E IRREV TRUST |
|||||
|
6/20/2005 |
|
Deeds |
$0 |
KOELSCH GERALD & ANGIE |
KOELSCH GERALD E |
|||||
|
6/20/2005 |
|
Deeds |
$0 |
KOELSCH GERALD E |
BROADRICK N KARY TRS KOELSCH GERALD E IRREV TRUST |
|||||
| Last Mailed Notice of Value (N.O.V.) Information/History | ||||||||
|---|---|---|---|---|---|---|---|---|
| Year | Date | Market Value | Taxable Market Value | Gross Assessed | Exemption | Net Assessed | ||
|
2026 |
02/23/2026 |
286,500 |
259,720 |
28,568 |
0 |
28,568 |
||
|
2025 |
02/14/2025 |
285,500 |
247,353 |
27,208 |
0 |
27,208 |
||
|
2024 |
02/13/2024 |
277,500 |
235,575 |
25,912 |
0 |
25,912 |
||
|
2023 |
02/14/2023 |
267,000 |
224,358 |
24,679 |
0 |
24,679 |
||
|
2022 |
03/15/2022 |
230,000 |
213,675 |
23,504 |
0 |
23,504 |
||
| Property Building Permit History | |||||||||||
|---|---|---|---|---|---|---|---|---|---|---|---|
| Issued | Permit # | Provided by | Bldg # | Description | Est Construction Cost | Status | |||||
| No Building Permit records returned. | |||||||||||
| Click button on building number to access detailed information: | ||||||
|---|---|---|---|---|---|---|
| Bldg # | Vacant/Improved Land | Bldg Description | Year Built | SqFt | # Stories | |
|
1 |
Improved |
1½ Story Fin |
1986 |
2,427 |
1.5 Stories |
|