|
|
|
| Larry Stein Oklahoma County Assessor (405) 713-1200 - Public Access System |
|
|
|
|
|
|
| Real Property Display - Screen Produced 4/1/2026 10:50:15 PM | ||||
|---|---|---|---|---|
| Account: R123941420 | Type: Residential | Location: |
8325 NW 105TH TER |
|
| Building Name/Occupant: |
|
OKLAHOMA CITY |
||
| Owner Name 1: | NOWAK NICHOLE L |
Parcel PIN#: |
3917-12-394-1420 |
|
| Owner Name 2: | 1/4 section #: |
3917 |
||
| Owner Name 3: | Parent Acct: |
|
||
| Billing Address: | 8325 NW 105TH TER | Tax District: |
|
|
| City, State, Zip | OKLAHOMA CITY, OK 73162-4028 | School System: |
Putnam City #1 |
|
|
Country: (If noted) |
Land Size: |
0.1956 Acres |
||
|
Land Value: 43,878 |
|
|||
|
Sect 30-T13N-R4W Qtr NE |
HARVEST HILLS SEC 5
Block
023
Lot
031
|
|||
| Full Legal Description: HARVEST HILLS SEC 5 023 031 |
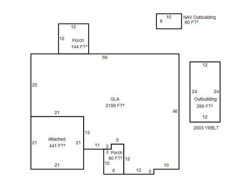
| Photo & Sketch (if available) | Comp Sales (ordered by relevancy) |
|
||||||||||||||||||
|
||||||||||||||||||||
| Value History (*The County Treasurer 405-713-1300 posts & collects actual tax amounts. Contact information HERE) | |||||||||||||
|---|---|---|---|---|---|---|---|---|---|---|---|---|---|
| Year | Market Value | Taxable Mkt Value | Gross Assessed | Exemption | Net Assessed | Millage | Est. Tax | Tax Savings | |||||
|
2026 |
266,000 |
266,000 |
29,260 |
1,000 |
28,260 |
123.17 |
$3,481 |
$123 |
|||||
|
2025 |
266,000 |
266,000 |
29,260 |
1,000 |
28,260 |
123.17 |
$3,481 |
$123 |
|||||
|
2024 |
258,500 |
258,500 |
28,435 |
1,000 |
27,435 |
122.30 |
$3,355 |
$122 |
|||||
|
2023 |
248,500 |
196,495 |
21,613 |
1,000 |
20,613 |
121.91 |
$2,513 |
$819 |
|||||
|
2022 |
214,500 |
190,772 |
20,984 |
1,000 |
19,984 |
123.41 |
$2,466 |
$446 |
|||||
| Property Account Status/Adjustments/Exemptions | ||
|---|---|---|
| Account # | Exemption Description | Amount |
|
R123941420 |
3% Cap Homestead |
0 |
|
R123941420 |
Homestead |
1,000 |
| Property Deed Transaction History (Recorded in the County Clerk's Office) | ||||||||||
|---|---|---|---|---|---|---|---|---|---|---|
| Date | Type | Book | Page | Price | Grantor | Grantee | ||||
|
8/18/2023 |
|
Deeds |
$0 |
BOYD LANA B TRS |
BOYD LANA B TRS |
|||||
|
8/18/2023 |
|
Deeds |
$270,000 |
BOYD LANA B TRS |
NOWAK NICHOLE L |
|||||
|
9/30/2021 |
|
Deeds |
$0 |
BOYD RICHARD A & LANA B TRS |
BOYD LANA B TRS |
|||||
|
4/26/2011 |
|
Deeds |
$165,000 |
DESANTIS CORY LEE & TRACI LYNETTE |
BOYD RICHARD A & LANA B TRS |
|||||
|
11/4/1999 |
|
Deeds |
$114,000 |
STRICKER M J & ROWENA TRS STRICKER LIVING TRUST |
DESANTIS CORY LEE & TRACI LYNETTE |
|||||
| Last Mailed Notice of Value (N.O.V.) Information/History | ||||||||
|---|---|---|---|---|---|---|---|---|
| Year | Date | Market Value | Taxable Market Value | Gross Assessed | Exemption | Net Assessed | ||
|
2025 |
02/14/2025 |
266,000 |
266,000 |
29,260 |
1,000 |
28,260 |
||
|
2024 |
02/13/2024 |
258,500 |
258,500 |
28,435 |
0 |
28,435 |
||
|
2023 |
02/14/2023 |
248,500 |
196,495 |
21,613 |
1,000 |
20,613 |
||
|
2022 |
03/15/2022 |
214,500 |
190,772 |
20,984 |
1,000 |
19,984 |
||
|
2021 |
03/19/2021 |
190,000 |
185,216 |
20,373 |
1,000 |
19,373 |
||
| Property Building Permit History | |||||||||||
|---|---|---|---|---|---|---|---|---|---|---|---|
| Issued | Permit # | Provided by | Bldg # | Description | Est Construction Cost | Status | |||||
| No Building Permit records returned. | |||||||||||
| Click button on building number to access detailed information: | ||||||
|---|---|---|---|---|---|---|
| Bldg # | Vacant/Improved Land | Bldg Description | Year Built | SqFt | # Stories | |
|
1 |
Improved |
Ranch 1 Story |
1985 |
2,159 |
1 Stories |
|