|
|
|
| Larry Stein Oklahoma County Assessor (405) 713-1200 - Public Access System |
|
|
|
|
|
|
| Real Property Display - Screen Produced 4/1/2026 10:50:15 PM | ||||
|---|---|---|---|---|
| Account: R123941520 | Type: Residential | Location: |
8308 NW 106TH ST |
|
| Building Name/Occupant: |
|
OKLAHOMA CITY |
||
| Owner Name 1: | WILLIAMS GLEN D & DEBORAH A |
Parcel PIN#: |
3917-12-394-1520 |
|
| Owner Name 2: | 1/4 section #: |
3917 |
||
| Owner Name 3: | Parent Acct: |
|
||
| Billing Address: | 8308 NW 106TH ST | Tax District: |
|
|
| City, State, Zip | OKLAHOMA CITY, OK 73162-4015 | School System: |
Putnam City #1 |
|
|
Country: (If noted) |
Land Size: |
0.1956 Acres |
||
|
Land Value: 43,878 |
|
|||
|
Sect 30-T13N-R4W Qtr NE |
HARVEST HILLS SEC 5
Block
024
Lot
008
|
|||
| Full Legal Description: HARVEST HILLS SEC 5 024 008 |
| Photo & Sketch (if available) | Comp Sales (ordered by relevancy) |
|
||||||||||||||||||
|
||||||||||||||||||||
| Value History (*The County Treasurer 405-713-1300 posts & collects actual tax amounts. Contact information HERE) | |||||||||||||
|---|---|---|---|---|---|---|---|---|---|---|---|---|---|
| Year | Market Value | Taxable Mkt Value | Gross Assessed | Exemption | Net Assessed | Millage | Est. Tax | Tax Savings | |||||
|
2026 |
261,000 |
214,329 |
23,575 |
1,000 |
22,575 |
123.17 |
$2,781 |
$756 |
|||||
|
2025 |
260,000 |
208,087 |
22,888 |
1,000 |
21,888 |
123.17 |
$2,696 |
$827 |
|||||
|
2024 |
255,000 |
202,027 |
22,222 |
1,000 |
21,222 |
122.30 |
$2,596 |
$835 |
|||||
|
2023 |
244,500 |
196,143 |
21,575 |
1,000 |
20,575 |
121.91 |
$2,508 |
$770 |
|||||
|
2022 |
214,500 |
190,431 |
20,947 |
1,000 |
19,947 |
123.41 |
$2,462 |
$450 |
|||||
| Property Account Status/Adjustments/Exemptions | ||
|---|---|---|
| Account # | Exemption Description | Amount |
|
R123941520 |
3% Cap Homestead |
0 |
|
R123941520 |
Homestead |
1,000 |
| Property Deed Transaction History (Recorded in the County Clerk's Office) | |||||||
|---|---|---|---|---|---|---|---|
| Date | Type | Book | Page | Price | Grantor | Grantee | |
|
12/22/1993 |
|
Historical |
$86,000 |
HARDY PAUL DARREL |
WILLIAMS GLEN D & DEBORAH A |
||
|
2/2/1988 |
|
Historical |
$86,000 |
TODAY HOMES INC |
HARDY PAUL DARREL |
||
|
5/26/1987 |
|
Historical |
$0 |
LAWSON DEVELOPMENT CORP |
TODAY HOMES INC |
||
|
11/11/1911 |
|
Historical |
$0 |
|
LAWSON DEVELOPMENT CORP |
||
| Last Mailed Notice of Value (N.O.V.) Information/History | ||||||||
|---|---|---|---|---|---|---|---|---|
| Year | Date | Market Value | Taxable Market Value | Gross Assessed | Exemption | Net Assessed | ||
|
2026 |
02/23/2026 |
261,000 |
214,329 |
23,575 |
1,000 |
22,575 |
||
|
2025 |
02/14/2025 |
260,000 |
208,087 |
22,888 |
1,000 |
21,888 |
||
|
2024 |
02/13/2024 |
255,000 |
202,027 |
22,222 |
1,000 |
21,222 |
||
|
2023 |
02/14/2023 |
244,500 |
196,143 |
21,575 |
1,000 |
20,575 |
||
|
2022 |
03/15/2022 |
214,500 |
190,431 |
20,947 |
1,000 |
19,947 |
||
| Property Building Permit History | |||||||||||
|---|---|---|---|---|---|---|---|---|---|---|---|
| Issued | Permit # | Provided by | Bldg # | Description | Est Construction Cost | Status | |||||
| No Building Permit records returned. | |||||||||||
| Click button on building number to access detailed information: | ||||||
|---|---|---|---|---|---|---|
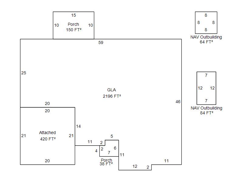
| Bldg # | Vacant/Improved Land | Bldg Description | Year Built | SqFt | # Stories | |
|
1 |
Improved |
Ranch 1 Story |
1988 |
2,196 |
1 Stories |
|