|
|
|
| Larry Stein Oklahoma County Assessor (405) 713-1200 - Public Access System |
|
|
|
|
|
|
| Real Property Display - Screen Produced 3/22/2026 12:36:00 PM | ||||
|---|---|---|---|---|
| Account: R148531010 | Type: Residential | Location: |
8516 N MCMILLAN AVE |
|
| Building Name/Occupant: |
|
OKLAHOMA CITY |
||
| Owner Name 1: | NEIGHBORHOOD REAL ESTATE LLC SERIES 010 |
Parcel PIN#: |
3921-14-853-1010 |
|
| Owner Name 2: | 1/4 section #: |
3921 |
||
| Owner Name 3: | Parent Acct: |
|
||
| Billing Address: | 3009 HICKORY STICK RD | Tax District: |
|
|
| City, State, Zip | OKLAHOMA CITY, OK 73120 | School System: |
Putnam City #1 |
|
|
Country: (If noted) |
Land Size: |
0.1653 Acres |
||
|
Land Value: 37,080 |
|
|||
|
Sect 31-T13N-R4W Qtr NE |
NORTHRIDGE ADD 5
Block
013
Lot
019
|
|||
| Full Legal Description: NORTHRIDGE ADD 5 013 019 |
| Photo & Sketch (if available) | Comp Sales (ordered by relevancy) |
|
||||||||||||||||||
|
||||||||||||||||||||
| Value History (*The County Treasurer 405-713-1300 posts & collects actual tax amounts. Contact information HERE) | |||||||||||||
|---|---|---|---|---|---|---|---|---|---|---|---|---|---|
| Year | Market Value | Taxable Mkt Value | Gross Assessed | Exemption | Net Assessed | Millage | Est. Tax | Tax Savings | |||||
|
2025 |
210,000 |
171,993 |
18,918 |
0 |
18,918 |
123.17 |
$2,330 |
$515 |
|||||
|
2024 |
200,500 |
163,803 |
18,018 |
0 |
18,018 |
122.30 |
$2,204 |
$494 |
|||||
|
2023 |
184,000 |
156,003 |
17,160 |
0 |
17,160 |
121.91 |
$2,092 |
$375 |
|||||
|
2022 |
151,000 |
148,575 |
16,343 |
0 |
16,343 |
123.41 |
$2,017 |
$33 |
|||||
|
2021 |
141,500 |
141,500 |
15,565 |
0 |
15,565 |
122.23 |
$1,903 |
$0 |
|||||
| Property Account Status/Adjustments/Exemptions | ||||||
|---|---|---|---|---|---|---|
| Account # | Exemption Description | Amount | ||||
| No adjustment/exemption records returned. | ||||||
| Property Deed Transaction History (Recorded in the County Clerk's Office) | ||||||||||
|---|---|---|---|---|---|---|---|---|---|---|
| Date | Type | Book | Page | Price | Grantor | Grantee | ||||
|
3/3/2021 |
|
Hmstd Off & |
$ |
ADAMS DANIEL & ALISHA |
NEIGHBORHOOD REAL ESTATE LLC SERIES 010 |
|||||
|
4/19/2016 |
|
Deeds |
$77,500 |
FIRST UNITED BANK & TRUST COMPANY |
ADAMS DANIEL & ALISHA |
|||||
|
12/9/2015 |
|
Hmstd Off & |
$0 |
SECRETARY OF VETERANS AFFAIRS |
FIRST UNITED BANK & TRUST COMPANY |
|||||
|
11/2/2015 |
|
Other |
$0 |
SECRETARY OF VETERANS AFFAIRS |
FIRST UNITED BANK & TRUST COMPANY |
|||||
|
6/30/2015 |
|
Other |
$0 |
FIRST UNITED BANK & TRUST CO |
SECRETARY OF VETERANS AFFAIRS |
|||||
| Last Mailed Notice of Value (N.O.V.) Information/History | ||||||||
|---|---|---|---|---|---|---|---|---|
| Year | Date | Market Value | Taxable Market Value | Gross Assessed | Exemption | Net Assessed | ||
|
2026 |
02/23/2026 |
213,500 |
180,592 |
19,864 |
0 |
19,864 |
||
|
2025 |
02/14/2025 |
210,000 |
171,993 |
18,918 |
0 |
18,918 |
||
|
2024 |
02/13/2024 |
200,500 |
163,803 |
18,018 |
0 |
18,018 |
||
|
2023 |
02/14/2023 |
184,000 |
156,003 |
17,160 |
0 |
17,160 |
||
|
2022 |
03/15/2022 |
151,000 |
148,575 |
16,343 |
0 |
16,343 |
||
| Property Building Permit History | |||||||||||
|---|---|---|---|---|---|---|---|---|---|---|---|
| Issued | Permit # | Provided by | Bldg # | Description | Est Construction Cost | Status | |||||
| No Building Permit records returned. | |||||||||||
| Click button on building number to access detailed information: | ||||||
|---|---|---|---|---|---|---|
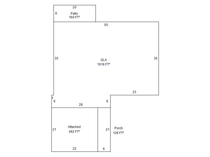
| Bldg # | Vacant/Improved Land | Bldg Description | Year Built | SqFt | # Stories | |
|
1 |
Improved |
Ranch 1 Story |
1979 |
1,918 |
1 Stories |
|