|
|
|
| Larry Stein Oklahoma County Assessor (405) 713-1200 - Public Access System |
|
|
|
|
|
|
| Real Property Display - Screen Produced 3/22/2026 4:56:00 AM | ||||
|---|---|---|---|---|
| Account: R149402150 | Type: Residential | Location: |
8209 NW 86TH ST |
|
| Building Name/Occupant: |
|
OKLAHOMA CITY |
||
| Owner Name 1: | APC HOMES LLC |
Parcel PIN#: |
3921-14-940-2150 |
|
| Owner Name 2: | 1/4 section #: |
3921 |
||
| Owner Name 3: | Parent Acct: |
|
||
| Billing Address: | 8209 NW 86TH ST | Tax District: |
|
|
| City, State, Zip | OKLAHOMA CITY, OK 73132-3255 | School System: |
Putnam City #1 |
|
|
Country: (If noted) |
Land Size: |
0.1446 Acres |
||
|
Land Value: 28,350 |
|
|||
|
Sect 31-T13N-R4W Qtr NE |
NORTHRIDGE SEC 3
Block
012
Lot
016
|
|||
| Full Legal Description: NORTHRIDGE SEC 3 012 016 |
| Photo & Sketch (if available) | Comp Sales (ordered by relevancy) |
|
||||||||||||||||||
|
||||||||||||||||||||
| Value History (*The County Treasurer 405-713-1300 posts & collects actual tax amounts. Contact information HERE) | |||||||||||||
|---|---|---|---|---|---|---|---|---|---|---|---|---|---|
| Year | Market Value | Taxable Mkt Value | Gross Assessed | Exemption | Net Assessed | Millage | Est. Tax | Tax Savings | |||||
|
2025 |
202,500 |
202,500 |
22,275 |
0 |
22,275 |
123.17 |
$2,744 |
$0 |
|||||
|
2024 |
197,000 |
197,000 |
21,670 |
0 |
21,670 |
122.30 |
$2,650 |
$0 |
|||||
|
2023 |
181,000 |
139,561 |
15,351 |
1,000 |
14,351 |
121.91 |
$1,750 |
$678 |
|||||
|
2022 |
150,000 |
135,497 |
14,904 |
1,000 |
13,904 |
123.41 |
$1,716 |
$320 |
|||||
|
2021 |
135,500 |
131,551 |
14,470 |
1,000 |
13,470 |
122.23 |
$1,647 |
$175 |
|||||
| Property Account Status/Adjustments/Exemptions | ||
|---|---|---|
| Account # | Exemption Description | Amount |
|
R149402150 |
5% Capped Account |
0 |
| Property Deed Transaction History (Recorded in the County Clerk's Office) | ||||||||||
|---|---|---|---|---|---|---|---|---|---|---|
| Date | Type | Book | Page | Price | Grantor | Grantee | ||||
|
12/7/2023 |
|
Deeds |
$213,000 |
HENDERSON TALLYN |
APC HOMES LLC |
|||||
|
9/28/2018 |
|
Deeds |
$119,000 |
RAMSEY DAVID M & GILLIAN C |
HENDERSON TALLYN |
|||||
|
9/26/2007 |
|
Deeds |
$115,000 |
LEY BEDE B & FRANCES P |
RAMSEY DAVID M & GILLIAN C |
|||||
|
9/30/1998 |
|
Historical |
$76,000 |
CRANE C DONALD FAMILY TRUST |
LEY BEDE B & FRANCES P |
|||||
|
4/22/1996 |
|
Historical |
$0 |
CRANE C DONALD |
CRANE C DONALD FAMILY TRUST |
|||||
| Last Mailed Notice of Value (N.O.V.) Information/History | ||||||||
|---|---|---|---|---|---|---|---|---|
| Year | Date | Market Value | Taxable Market Value | Gross Assessed | Exemption | Net Assessed | ||
|
2026 |
02/23/2026 |
206,000 |
206,000 |
22,660 |
0 |
22,660 |
||
|
2025 |
02/14/2025 |
202,500 |
202,500 |
22,275 |
0 |
22,275 |
||
|
2024 |
02/13/2024 |
197,000 |
197,000 |
21,670 |
0 |
21,670 |
||
|
2023 |
02/14/2023 |
181,000 |
139,561 |
15,351 |
1,000 |
14,351 |
||
|
2022 |
03/15/2022 |
150,000 |
135,497 |
14,904 |
1,000 |
13,904 |
||
| Property Building Permit History | |||||||||||
|---|---|---|---|---|---|---|---|---|---|---|---|
| Issued | Permit # | Provided by | Bldg # | Description | Est Construction Cost | Status | |||||
| No Building Permit records returned. | |||||||||||
| Click button on building number to access detailed information: | ||||||
|---|---|---|---|---|---|---|
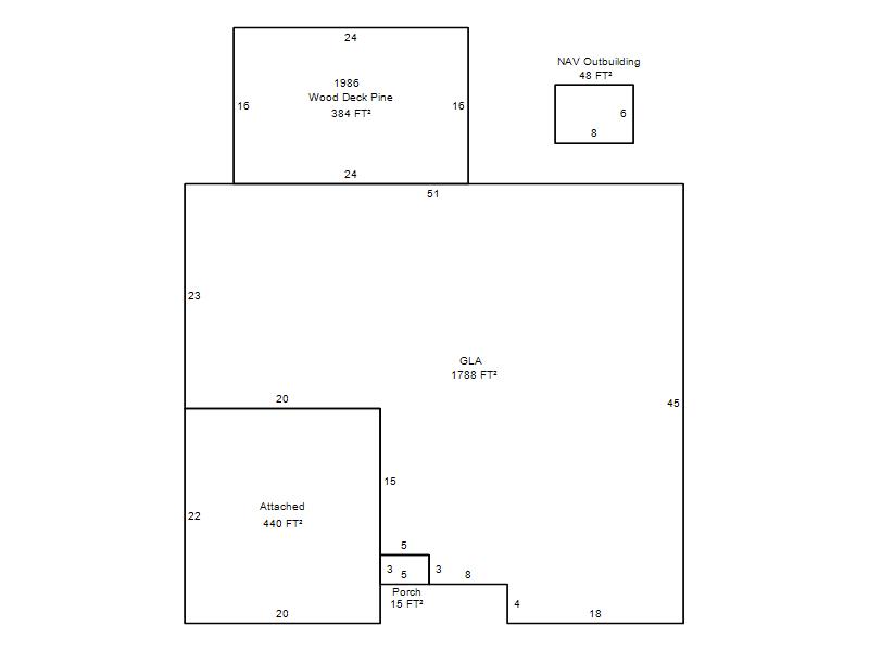
| Bldg # | Vacant/Improved Land | Bldg Description | Year Built | SqFt | # Stories | |
|
1 |
Improved |
Ranch 1 Story |
1979 |
1,788 |
1 Stories |
|