|
|
|
| Larry Stein Oklahoma County Assessor (405) 713-1200 - Public Access System |
|
|
|
|
|
|
| Real Property Display - Screen Produced 3/18/2026 4:35:19 AM | ||||
|---|---|---|---|---|
| Account: R171253260 | Type: Residential | Location: |
9008 DAVIS |
|
| Building Name/Occupant: |
|
OKLAHOMA CITY |
||
| Owner Name 1: | SOSA ERICK S & LESLIE Y |
Parcel PIN#: |
3921-17-125-3260 |
|
| Owner Name 2: | 1/4 section #: |
3921 |
||
| Owner Name 3: | Parent Acct: |
|
||
| Billing Address: | PO BOX 75801 | Tax District: |
|
|
| City, State, Zip | OKLAHOMA CITY, OK 73147-0801 | School System: |
Putnam City #1 |
|
|
Country: (If noted) |
Land Size: |
0.1336 Acres |
||
|
Land Value: 26,190 |
|
|||
|
Sect 31-T13N-R4W Qtr NE |
NORTHRIDGE
Block
006
Lot
027
|
|||
| Full Legal Description: NORTHRIDGE 006 027 |
| Photo & Sketch (if available) | Comp Sales (ordered by relevancy) |
|
||||||||||||||||||
|
||||||||||||||||||||
| Value History (*The County Treasurer 405-713-1300 posts & collects actual tax amounts. Contact information HERE) | |||||||||||||
|---|---|---|---|---|---|---|---|---|---|---|---|---|---|
| Year | Market Value | Taxable Mkt Value | Gross Assessed | Exemption | Net Assessed | Millage | Est. Tax | Tax Savings | |||||
|
2025 |
186,500 |
143,667 |
15,803 |
1,000 |
14,803 |
123.17 |
$1,823 |
$704 |
|||||
|
2024 |
180,000 |
139,483 |
15,342 |
1,000 |
14,342 |
122.30 |
$1,754 |
$667 |
|||||
|
2023 |
166,000 |
135,421 |
14,895 |
1,000 |
13,895 |
121.91 |
$1,694 |
$532 |
|||||
|
2022 |
137,000 |
131,477 |
14,461 |
1,000 |
13,461 |
123.41 |
$1,661 |
$198 |
|||||
|
2021 |
128,000 |
127,648 |
14,040 |
1,000 |
13,040 |
122.23 |
$1,594 |
$127 |
|||||
| Property Account Status/Adjustments/Exemptions | ||
|---|---|---|
| Account # | Exemption Description | Amount |
|
R171253260 |
3% Cap Homestead |
0 |
|
R171253260 |
Homestead |
1,000 |
| Property Deed Transaction History (Recorded in the County Clerk's Office) | ||||||||||
|---|---|---|---|---|---|---|---|---|---|---|
| Date | Type | Book | Page | Price | Grantor | Grantee | ||||
|
5/9/2016 |
|
Deeds |
$0 |
SOSA ERICK S |
SOSA ERICK S & LESLIE Y |
|||||
|
4/27/2006 |
|
Deeds |
$116,500 |
HARMON JOY LEE |
SOSA ERICK S |
|||||
|
11/5/2004 |
|
Deeds |
$110,000 |
KERR JIM & REBECCA M |
HARMON JOY LEE |
|||||
|
7/27/2004 |
|
Deeds |
$65,000 |
IRWIN EDDIE MAE |
KERR JIM & REBECCA M |
|||||
|
10/31/1988 |
|
Historical |
$0 |
IRWIN EDDIE MAE |
IRWIN EDDIE MAE |
|||||
| Last Mailed Notice of Value (N.O.V.) Information/History | ||||||||
|---|---|---|---|---|---|---|---|---|
| Year | Date | Market Value | Taxable Market Value | Gross Assessed | Exemption | Net Assessed | ||
|
2026 |
02/23/2026 |
194,000 |
147,977 |
16,277 |
1,000 |
15,277 |
||
|
2025 |
02/14/2025 |
186,500 |
143,667 |
15,803 |
1,000 |
14,803 |
||
|
2024 |
02/13/2024 |
180,000 |
139,483 |
15,342 |
1,000 |
14,342 |
||
|
2023 |
02/14/2023 |
166,000 |
135,421 |
14,895 |
1,000 |
13,895 |
||
|
2022 |
03/15/2022 |
137,000 |
131,477 |
14,461 |
1,000 |
13,461 |
||
| Property Building Permit History | |||||||||||
|---|---|---|---|---|---|---|---|---|---|---|---|
| Issued | Permit # | Provided by | Bldg # | Description | Est Construction Cost | Status | |||||
| No Building Permit records returned. | |||||||||||
| Click button on building number to access detailed information: | ||||||
|---|---|---|---|---|---|---|
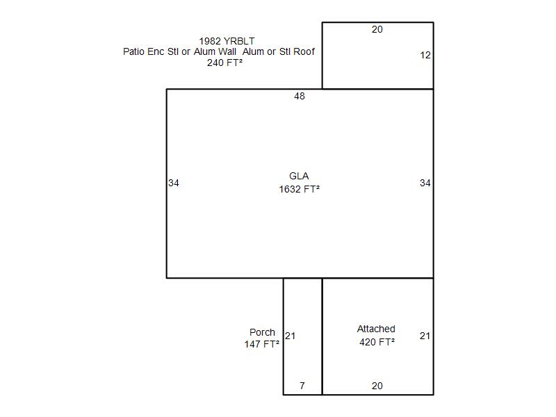
| Bldg # | Vacant/Improved Land | Bldg Description | Year Built | SqFt | # Stories | |
|
1 |
Improved |
Ranch 1 Story |
1977 |
1,632 |
1 Stories |
|