|
|
|
| Larry Stein Oklahoma County Assessor (405) 713-1200 - Public Access System |
|
|
|
|
|
|
| Real Property Display - Screen Produced 3/18/2026 5:29:46 AM | ||||
|---|---|---|---|---|
| Account: R171255220 | Type: Residential | Location: |
8436 NW 87TH ST |
|
| Building Name/Occupant: |
|
OKLAHOMA CITY |
||
| Owner Name 1: | RII 1SC OKC I LLC |
Parcel PIN#: |
3921-17-125-5220 |
|
| Owner Name 2: | 1/4 section #: |
3921 |
||
| Owner Name 3: | Parent Acct: |
|
||
| Billing Address: | 32 W 200, Unit 216 | Tax District: |
|
|
| City, State, Zip | SALT LAKE CITY, UT 84101 | School System: |
Putnam City #1 |
|
|
Country: (If noted) |
Land Size: |
0.1470 Acres |
||
|
Land Value: 28,823 |
|
|||
|
Sect 31-T13N-R4W Qtr NE |
NORTHRIDGE
Block
008
Lot
023
|
|||
| Full Legal Description: NORTHRIDGE 008 023 |
| Photo & Sketch (if available) | Comp Sales (ordered by relevancy) |
|
||||||||||||||||||
|
||||||||||||||||||||
| Value History (*The County Treasurer 405-713-1300 posts & collects actual tax amounts. Contact information HERE) | |||||||||||||
|---|---|---|---|---|---|---|---|---|---|---|---|---|---|
| Year | Market Value | Taxable Mkt Value | Gross Assessed | Exemption | Net Assessed | Millage | Est. Tax | Tax Savings | |||||
|
2025 |
197,000 |
192,386 |
21,161 |
0 |
21,161 |
123.17 |
$2,607 |
$63 |
|||||
|
2024 |
190,000 |
183,225 |
20,154 |
0 |
20,154 |
122.30 |
$2,465 |
$91 |
|||||
|
2023 |
174,500 |
174,500 |
19,195 |
0 |
19,195 |
121.91 |
$2,340 |
$0 |
|||||
|
2022 |
142,000 |
140,175 |
15,419 |
0 |
15,419 |
123.41 |
$1,903 |
$25 |
|||||
|
2021 |
133,500 |
133,500 |
14,685 |
0 |
14,685 |
122.23 |
$1,795 |
$0 |
|||||
| Property Account Status/Adjustments/Exemptions | ||
|---|---|---|
| Account # | Exemption Description | Amount |
|
R171255220 |
5% Capped Account |
0 |
| Property Deed Transaction History (Recorded in the County Clerk's Office) | ||||||||||
|---|---|---|---|---|---|---|---|---|---|---|
| Date | Type | Book | Page | Price | Grantor | Grantee | ||||
|
4/28/2022 |
|
Deeds |
$163,000 |
MILLER DUSTIN & REBECCA |
RII 1SC OKC I LLC |
|||||
|
10/17/2016 |
|
Deeds |
$131,500 |
GRIFFIS SAUNDRA L |
MILLER DUSTIN & REBECCA |
|||||
|
12/19/2014 |
|
Deeds |
$124,000 |
POWELL CYNTHEA G |
GRIFFIS SAUNDRA L |
|||||
|
7/19/2005 |
|
Deeds |
$0 |
PRENTISS RICHARD J & MILDRED M |
PRENTISS MILDRED M |
|||||
|
7/19/2005 |
|
Deeds |
$113,000 |
PRENTISS MILDRED M |
POWELL CYNTHEA G |
|||||
| Last Mailed Notice of Value (N.O.V.) Information/History | ||||||||
|---|---|---|---|---|---|---|---|---|
| Year | Date | Market Value | Taxable Market Value | Gross Assessed | Exemption | Net Assessed | ||
|
2026 |
02/23/2026 |
200,500 |
200,500 |
22,055 |
0 |
22,055 |
||
|
2025 |
02/14/2025 |
197,000 |
192,386 |
21,161 |
0 |
21,161 |
||
|
2024 |
02/13/2024 |
190,000 |
183,225 |
20,154 |
0 |
20,154 |
||
|
2023 |
02/14/2023 |
174,500 |
174,500 |
19,195 |
0 |
19,195 |
||
|
2022 |
03/15/2022 |
142,000 |
140,175 |
15,419 |
0 |
15,419 |
||
| Property Building Permit History | |||||||||||
|---|---|---|---|---|---|---|---|---|---|---|---|
| Issued | Permit # | Provided by | Bldg # | Description | Est Construction Cost | Status | |||||
| No Building Permit records returned. | |||||||||||
| Click button on building number to access detailed information: | ||||||
|---|---|---|---|---|---|---|
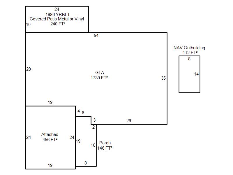
| Bldg # | Vacant/Improved Land | Bldg Description | Year Built | SqFt | # Stories | |
|
1 |
Improved |
Ranch 1 Story |
1977 |
1,739 |
1 Stories |
|