|
|
|
| Larry Stein Oklahoma County Assessor (405) 713-1200 - Public Access System |
|
|
|
|
|
|
| Real Property Display - Screen Produced 4/2/2026 3:07:00 PM | ||||
|---|---|---|---|---|
| Account: R171401460 | Type: Residential | Location: |
8419 NW 85TH ST |
|
| Building Name/Occupant: |
|
OKLAHOMA CITY |
||
| Owner Name 1: | BANKS MERLE R |
Parcel PIN#: |
3921-17-140-1460 |
|
| Owner Name 2: | 1/4 section #: |
3921 |
||
| Owner Name 3: | Parent Acct: |
|
||
| Billing Address: | 8419 NW 85TH ST | Tax District: |
|
|
| City, State, Zip | OKLAHOMA CITY, OK 73132-3240 | School System: |
Putnam City #1 |
|
|
Country: (If noted) |
Land Size: |
0.1377 Acres |
||
|
Land Value: 30,900 |
|
|||
|
Sect 31-T13N-R4W Qtr NE |
NORTHRIDGE SEC 4
Block
016
Lot
013
|
|||
| Full Legal Description: NORTHRIDGE SEC 4 016 013 |
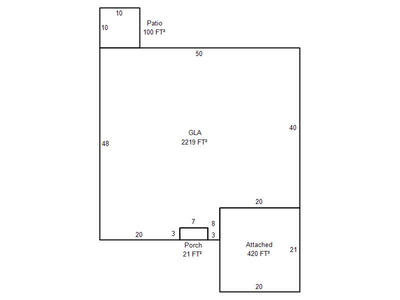
| Photo & Sketch (if available) | Comp Sales (ordered by relevancy) |
|
||||||||||||||||||
|
||||||||||||||||||||
| Value History (*The County Treasurer 405-713-1300 posts & collects actual tax amounts. Contact information HERE) | |||||||||||||
|---|---|---|---|---|---|---|---|---|---|---|---|---|---|
| Year | Market Value | Taxable Mkt Value | Gross Assessed | Exemption | Net Assessed | Millage | Est. Tax | Tax Savings | |||||
|
2026 |
228,000 |
149,586 |
16,454 |
1,000 |
15,454 |
123.17 |
$1,904 |
$1,186 |
|||||
|
2025 |
224,500 |
149,586 |
16,454 |
1,000 |
15,454 |
123.17 |
$1,904 |
$1,138 |
|||||
|
2024 |
218,000 |
149,586 |
16,454 |
1,000 |
15,454 |
122.30 |
$1,890 |
$1,043 |
|||||
|
2023 |
200,500 |
149,586 |
16,454 |
1,000 |
15,454 |
121.91 |
$1,884 |
$805 |
|||||
|
2022 |
165,000 |
149,586 |
16,454 |
1,000 |
15,454 |
123.41 |
$1,907 |
$333 |
|||||
| Property Account Status/Adjustments/Exemptions | ||
|---|---|---|
| Account # | Exemption Description | Amount |
|
R171401460 |
Freeze Senior Valuation |
0 |
|
R171401460 |
3% Cap Homestead |
0 |
|
R171401460 |
Homestead |
1,000 |
| Property Deed Transaction History (Recorded in the County Clerk's Office) | |||||||
|---|---|---|---|---|---|---|---|
| Date | Type | Book | Page | Price | Grantor | Grantee | |
|
11/13/2012 |
|
Deeds |
$120,000 |
DO PHAM |
BANKS MERLE R |
||
|
2/17/2006 |
|
Deeds |
$110,000 |
BUNN HELEN J BUNN LAURA VICTORIA |
DO PHAM |
||
|
11/14/2002 |
|
Deeds |
$0 |
BUNN HELEN J RUSSELL MICHAEL L |
BUNN HELEN J BUNN LAURA VICTORIA |
||
|
7/30/1999 |
|
Deeds |
$85,500 |
WRIGHT JANET J |
BUNN HELEN J |
||
|
11/1/1980 |
|
Historical |
$0 |
|
WRIGHT JANET J |
||
| Last Mailed Notice of Value (N.O.V.) Information/History | ||||||||
|---|---|---|---|---|---|---|---|---|
| Year | Date | Market Value | Taxable Market Value | Gross Assessed | Exemption | Net Assessed | ||
|
2026 |
02/23/2026 |
228,000 |
149,586 |
16,454 |
1,000 |
15,454 |
||
|
2025 |
02/14/2025 |
224,500 |
149,586 |
16,454 |
1,000 |
15,454 |
||
|
2024 |
02/13/2024 |
218,000 |
149,586 |
16,454 |
1,000 |
15,454 |
||
|
2023 |
02/14/2023 |
200,500 |
149,586 |
16,454 |
1,000 |
15,454 |
||
|
2022 |
03/15/2022 |
165,000 |
149,586 |
16,454 |
1,000 |
15,454 |
||
| Property Building Permit History | |||||||||||
|---|---|---|---|---|---|---|---|---|---|---|---|
| Issued | Permit # | Provided by | Bldg # | Description | Est Construction Cost | Status | |||||
| No Building Permit records returned. | |||||||||||
| Click button on building number to access detailed information: | ||||||
|---|---|---|---|---|---|---|
| Bldg # | Vacant/Improved Land | Bldg Description | Year Built | SqFt | # Stories | |
|
1 |
Improved |
Ranch 1 Story |
1980 |
2,219 |
1 Stories |
|