|
|
|
| Larry Stein Oklahoma County Assessor (405) 713-1200 - Public Access System |
|
|
|
|
|
|
| Real Property Display - Screen Produced 3/22/2026 6:01:39 PM | ||||
|---|---|---|---|---|
| Account: R122171220 | Type: Residential | Location: |
8217 N MCKEE BLVD |
|
| Building Name/Occupant: |
|
OKLAHOMA CITY |
||
| Owner Name 1: | DEASON DOUGLAS N & MONA L |
Parcel PIN#: |
3922-12-217-1220 |
|
| Owner Name 2: | 1/4 section #: |
3922 |
||
| Owner Name 3: | Parent Acct: |
|
||
| Billing Address: | 8217 N MCKEE BLVD | Tax District: |
|
|
| City, State, Zip | OKLAHOMA CITY, OK 73132-4106 | School System: |
Putnam City #1 |
|
|
Country: (If noted) |
Land Size: |
0.2955 Acres |
||
|
Land Value: 57,915 |
|
|||
|
Sect 31-T13N-R4W Qtr SE |
HARVEST HILLS SOUTH SEC 3
Block
023
Lot
023
|
|||
| Full Legal Description: HARVEST HILLS SOUTH SEC 3 023 023 |
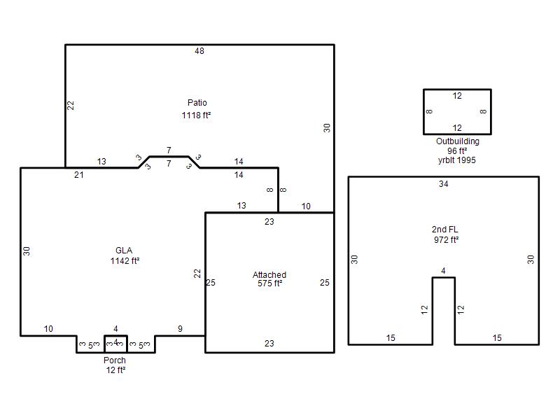
| Photo & Sketch (if available) | Comp Sales (ordered by relevancy) |
|
||||||||||||||||||
|
||||||||||||||||||||
| Value History (*The County Treasurer 405-713-1300 posts & collects actual tax amounts. Contact information HERE) | |||||||||||||
|---|---|---|---|---|---|---|---|---|---|---|---|---|---|
| Year | Market Value | Taxable Mkt Value | Gross Assessed | Exemption | Net Assessed | Millage | Est. Tax | Tax Savings | |||||
|
2025 |
261,000 |
209,247 |
23,016 |
1,000 |
22,016 |
123.17 |
$2,712 |
$824 |
|||||
|
2024 |
261,000 |
203,153 |
22,345 |
1,000 |
21,345 |
122.30 |
$2,611 |
$901 |
|||||
|
2023 |
255,500 |
197,236 |
21,695 |
1,000 |
20,695 |
121.91 |
$2,523 |
$903 |
|||||
|
2022 |
220,000 |
191,492 |
21,063 |
1,000 |
20,063 |
123.41 |
$2,476 |
$510 |
|||||
|
2021 |
195,500 |
185,915 |
20,450 |
1,000 |
19,450 |
122.23 |
$2,377 |
$251 |
|||||
| Property Account Status/Adjustments/Exemptions | ||
|---|---|---|
| Account # | Exemption Description | Amount |
|
R122171220 |
3% Cap Homestead |
0 |
|
R122171220 |
Homestead |
1,000 |
| Property Deed Transaction History (Recorded in the County Clerk's Office) | |||||||
|---|---|---|---|---|---|---|---|
| Date | Type | Book | Page | Price | Grantor | Grantee | |
|
6/27/1995 |
|
Historical |
$95,000 |
JOHNSON MALCOLM A & NANCY J |
DEASON DOUGLAS N & MONA L |
||
|
8/9/1990 |
|
Historical |
$91,000 |
SHADIX HOMES INC |
JOHNSON MALCOLM A & NANCY J |
||
|
12/1/1989 |
|
Historical |
$0 |
FRANK LOWERY COMPANY |
SHADIX HOMES INC |
||
|
8/23/1989 |
|
Historical |
$0 |
SOUTHWEST TITLE & TRUST CO |
FRANK LOWERY COMPANY |
||
|
11/11/1911 |
|
Historical |
$0 |
|
SOUTHWEST TITLE & TRUST CO |
||
| Last Mailed Notice of Value (N.O.V.) Information/History | ||||||||
|---|---|---|---|---|---|---|---|---|
| Year | Date | Market Value | Taxable Market Value | Gross Assessed | Exemption | Net Assessed | ||
|
2026 |
02/23/2026 |
264,500 |
215,524 |
23,707 |
1,000 |
22,707 |
||
|
2025 |
02/14/2025 |
261,000 |
209,247 |
23,016 |
1,000 |
22,016 |
||
|
2024 |
02/13/2024 |
261,000 |
203,153 |
22,345 |
1,000 |
21,345 |
||
|
2023 |
02/14/2023 |
255,500 |
197,236 |
21,695 |
1,000 |
20,695 |
||
|
2022 |
03/15/2022 |
220,000 |
191,492 |
21,063 |
1,000 |
20,063 |
||
| Property Building Permit History | |||||||||||
|---|---|---|---|---|---|---|---|---|---|---|---|
| Issued | Permit # | Provided by | Bldg # | Description | Est Construction Cost | Status | |||||
| No Building Permit records returned. | |||||||||||
| Click button on building number to access detailed information: | ||||||
|---|---|---|---|---|---|---|
| Bldg # | Vacant/Improved Land | Bldg Description | Year Built | SqFt | # Stories | |
|
1 |
Improved |
2 Story |
1990 |
2,114 |
2 Stories |
|