|
|
|
| Larry Stein Oklahoma County Assessor (405) 713-1200 - Public Access System |
|
|
|
|
|
|
| Real Property Display - Screen Produced 3/22/2026 5:58:21 PM | ||||
|---|---|---|---|---|
| Account: R122171750 | Type: Residential | Location: |
8009 HARVEST HILLS SOUTH BLVD |
|
| Building Name/Occupant: |
|
OKLAHOMA CITY |
||
| Owner Name 1: | MAPES JANA |
Parcel PIN#: |
3922-12-217-1750 |
|
| Owner Name 2: | 1/4 section #: |
3922 |
||
| Owner Name 3: | Parent Acct: |
|
||
| Billing Address: | 8009 HARVEST HILLS SOUTH BLVD | Tax District: |
|
|
| City, State, Zip | OKLAHOMA CITY, OK 73132 | School System: |
Putnam City #1 |
|
|
Country: (If noted) |
Land Size: |
0.2204 Acres |
||
|
Land Value: 48,000 |
|
|||
|
Sect 31-T13N-R4W Qtr SE |
HARVEST HILLS SOUTH SEC 3
Block
027
Lot
007
|
|||
| Full Legal Description: HARVEST HILLS SOUTH SEC 3 027 007 |
| Photo & Sketch (if available) | Comp Sales (ordered by relevancy) |
|
||||||||||||||||||
|
||||||||||||||||||||
| Value History (*The County Treasurer 405-713-1300 posts & collects actual tax amounts. Contact information HERE) | |||||||||||||
|---|---|---|---|---|---|---|---|---|---|---|---|---|---|
| Year | Market Value | Taxable Mkt Value | Gross Assessed | Exemption | Net Assessed | Millage | Est. Tax | Tax Savings | |||||
|
2025 |
250,000 |
221,221 |
24,333 |
0 |
24,333 |
123.17 |
$2,997 |
$390 |
|||||
|
2024 |
246,000 |
210,687 |
23,175 |
0 |
23,175 |
122.30 |
$2,834 |
$475 |
|||||
|
2023 |
239,000 |
200,655 |
22,072 |
0 |
22,072 |
121.91 |
$2,691 |
$514 |
|||||
|
2022 |
205,500 |
191,100 |
21,021 |
0 |
21,021 |
123.41 |
$2,594 |
$195 |
|||||
|
2021 |
182,000 |
182,000 |
20,020 |
0 |
20,020 |
122.23 |
$2,447 |
$0 |
|||||
| Property Account Status/Adjustments/Exemptions | ||
|---|---|---|
| Account # | Exemption Description | Amount |
|
R122171750 |
5% Capped Account |
0 |
| Property Deed Transaction History (Recorded in the County Clerk's Office) | ||||||||||
|---|---|---|---|---|---|---|---|---|---|---|
| Date | Type | Book | Page | Price | Grantor | Grantee | ||||
|
2/21/2020 |
|
Deeds |
$175,000 |
WILSON BRITTANY I |
MAPES JANA |
|||||
|
7/12/2013 |
|
Deeds |
$145,000 |
HESKETH JAMES G & RACHEL MOSIER |
WILSON BRITTANY I |
|||||
|
5/26/2009 |
|
Deeds |
$0 |
HESKETH JAMES G |
HESKETH JAMES G & RACHEL MOSIER |
|||||
|
8/14/2007 |
|
Deeds |
$0 |
HESKETH JAMES G & LONDA G |
HESKETH JAMES G |
|||||
|
9/14/1995 |
|
Historical |
$88,000 |
GRADIN MARK EDWARD & KATHRYN J |
HESKETH JAMES G & LONDA G |
|||||
| Last Mailed Notice of Value (N.O.V.) Information/History | ||||||||
|---|---|---|---|---|---|---|---|---|
| Year | Date | Market Value | Taxable Market Value | Gross Assessed | Exemption | Net Assessed | ||
|
2026 |
02/23/2026 |
255,500 |
232,282 |
25,550 |
0 |
25,550 |
||
|
2025 |
02/14/2025 |
250,000 |
221,221 |
24,333 |
0 |
24,333 |
||
|
2024 |
02/13/2024 |
246,000 |
210,687 |
23,175 |
0 |
23,175 |
||
|
2023 |
02/14/2023 |
239,000 |
200,655 |
22,072 |
0 |
22,072 |
||
|
2022 |
03/15/2022 |
205,500 |
191,100 |
21,021 |
0 |
21,021 |
||
| Property Building Permit History | |||||||||||
|---|---|---|---|---|---|---|---|---|---|---|---|
| Issued | Permit # | Provided by | Bldg # | Description | Est Construction Cost | Status | |||||
| No Building Permit records returned. | |||||||||||
| Click button on building number to access detailed information: | ||||||
|---|---|---|---|---|---|---|
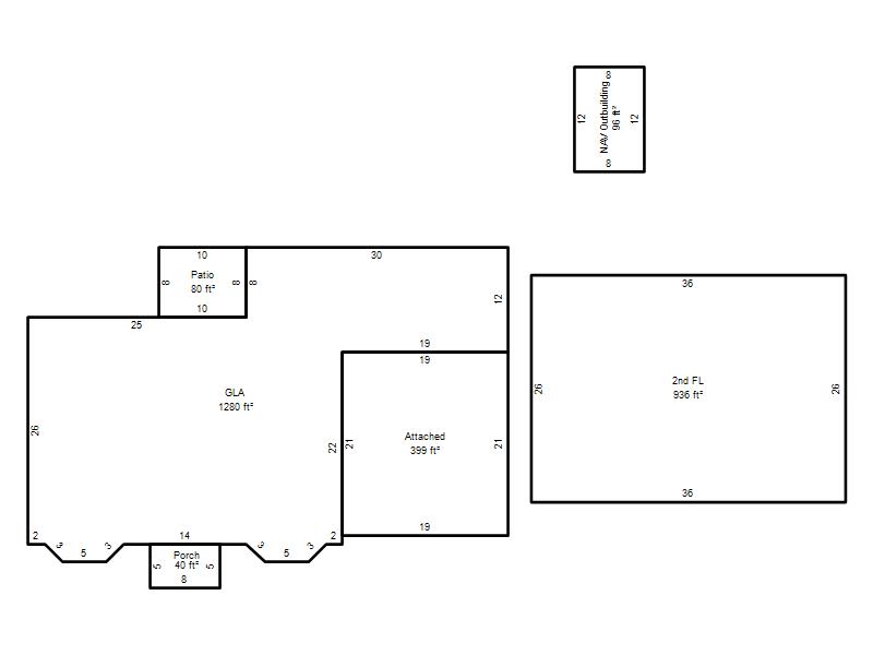
| Bldg # | Vacant/Improved Land | Bldg Description | Year Built | SqFt | # Stories | |
|
1 |
Improved |
2 Story |
1987 |
2,216 |
2 Stories |
|