|
|
|
| Larry Stein Oklahoma County Assessor (405) 713-1200 - Public Access System |
|
|
|
|
|
|
| Real Property Display - Screen Produced 3/20/2026 5:52:25 AM | ||||
|---|---|---|---|---|
| Account: R130851115 | Type: Residential | Location: |
8124 NW 78TH TER |
|
| Building Name/Occupant: |
|
OKLAHOMA CITY |
||
| Owner Name 1: | IRVIN SHERRY A |
Parcel PIN#: |
3922-13-085-1115 |
|
| Owner Name 2: | 1/4 section #: |
3922 |
||
| Owner Name 3: | Parent Acct: |
|
||
| Billing Address: | 8124 NW 78TH TER | Tax District: |
|
|
| City, State, Zip | OKLAHOMA CITY, OK 73132-4130 | School System: |
Putnam City #1 |
|
|
Country: (If noted) |
Land Size: |
0.1074 Acres |
||
|
Land Value: 20,124 |
|
|||
|
Sect 31-T13N-R4W Qtr SE |
HARVEST HILLS SOUTH SEC 2
Block
010
Lot
000
|
|||
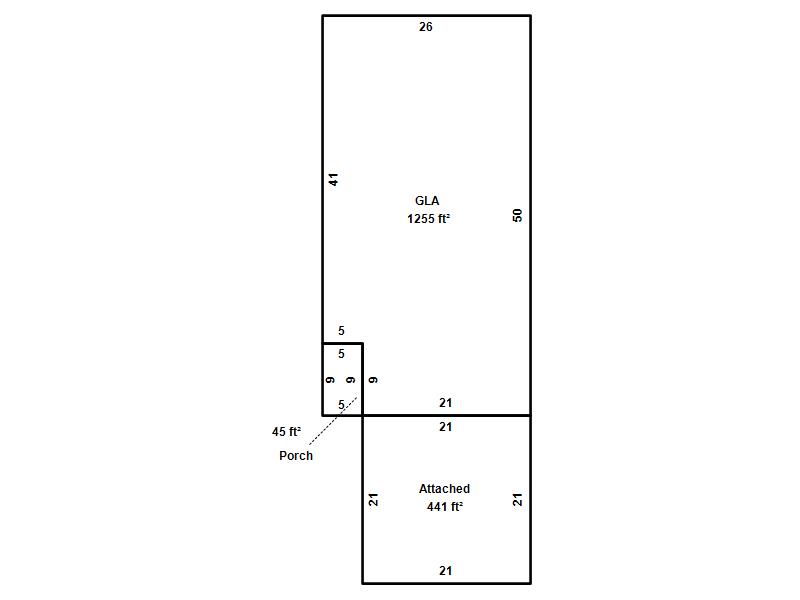
| Full Legal Description: HARVEST HILLS SOUTH SEC 2 010 000 E36FT LOT 12 |
| Photo & Sketch (if available) | Comp Sales (ordered by relevancy) |
|
||||||||||||||||||
|
||||||||||||||||||||
| Value History (*The County Treasurer 405-713-1300 posts & collects actual tax amounts. Contact information HERE) | |||||||||||||
|---|---|---|---|---|---|---|---|---|---|---|---|---|---|
| Year | Market Value | Taxable Mkt Value | Gross Assessed | Exemption | Net Assessed | Millage | Est. Tax | Tax Savings | |||||
|
2025 |
157,000 |
85,501 |
9,405 |
1,000 |
8,405 |
123.17 |
$1,035 |
$1,092 |
|||||
|
2024 |
151,000 |
85,501 |
9,405 |
1,000 |
8,405 |
122.30 |
$1,028 |
$1,003 |
|||||
|
2023 |
148,000 |
85,501 |
9,405 |
1,000 |
8,405 |
121.91 |
$1,025 |
$960 |
|||||
|
2022 |
127,500 |
85,501 |
9,405 |
1,000 |
8,405 |
123.41 |
$1,037 |
$694 |
|||||
|
2021 |
112,500 |
85,501 |
9,405 |
1,000 |
8,405 |
122.23 |
$1,027 |
$485 |
|||||
| Property Account Status/Adjustments/Exemptions | ||
|---|---|---|
| Account # | Exemption Description | Amount |
|
R130851115 |
Freeze Senior Valuation |
0 |
|
R130851115 |
3% Cap Homestead |
0 |
|
R130851115 |
Homestead |
1,000 |
| Property Deed Transaction History (Recorded in the County Clerk's Office) | |||||||
|---|---|---|---|---|---|---|---|
| Date | Type | Book | Page | Price | Grantor | Grantee | |
|
10/19/1988 |
|
Historical |
$38,000 |
FEDERAL HOME LOAN |
IRVIN SHERRY A |
||
|
6/15/1988 |
|
Historical |
$78,000 |
VAN ZANDT DAN A & PATRICIA |
FEDERAL HOME LOAN |
||
|
6/1/1984 |
|
Historical |
$0 |
|
VAN ZANDT DAN A & PATRICIA |
||
| Last Mailed Notice of Value (N.O.V.) Information/History | ||||||||
|---|---|---|---|---|---|---|---|---|
| Year | Date | Market Value | Taxable Market Value | Gross Assessed | Exemption | Net Assessed | ||
|
2026 |
02/23/2026 |
160,000 |
85,501 |
9,405 |
1,000 |
8,405 |
||
|
2025 |
02/14/2025 |
157,000 |
85,501 |
9,405 |
1,000 |
8,405 |
||
|
2024 |
02/13/2024 |
151,000 |
85,501 |
9,405 |
1,000 |
8,405 |
||
|
2023 |
02/14/2023 |
148,000 |
85,501 |
9,405 |
1,000 |
8,405 |
||
|
2022 |
03/15/2022 |
127,500 |
85,501 |
9,405 |
1,000 |
8,405 |
||
| Property Building Permit History | |||||||||||
|---|---|---|---|---|---|---|---|---|---|---|---|
| Issued | Permit # | Provided by | Bldg # | Description | Est Construction Cost | Status | |||||
| No Building Permit records returned. | |||||||||||
| Click button on building number to access detailed information: | ||||||
|---|---|---|---|---|---|---|
| Bldg # | Vacant/Improved Land | Bldg Description | Year Built | SqFt | # Stories | |
|
1 |
Improved |
Ranch 1 Story |
1983 |
1,255 |
1 Stories |
|