|
|
|
| Larry Stein Oklahoma County Assessor (405) 713-1200 - Public Access System |
|
|
|
|
|
|
| Real Property Display - Screen Produced 3/20/2026 5:18:44 AM | ||||
|---|---|---|---|---|
| Account: R130851140 | Type: Residential | Location: |
7913 HARVEST MOON RD |
|
| Building Name/Occupant: |
|
OKLAHOMA CITY |
||
| Owner Name 1: | CLAY ANDREW FAMILY TRUST |
Parcel PIN#: |
3922-13-085-1140 |
|
| Owner Name 2: | 1/4 section #: |
3922 |
||
| Owner Name 3: | Parent Acct: |
|
||
| Billing Address: | 5901 BURNHAM PL | Tax District: |
|
|
| City, State, Zip | OKLAHOMA CITY, OK 73132-4730 | School System: |
Putnam City #1 |
|
|
Country: (If noted) |
Land Size: |
0.2847 Acres |
||
|
Land Value: 53,333 |
|
|||
|
Sect 31-T13N-R4W Qtr SE |
HARVEST HILLS SOUTH SEC 2
Block
011
Lot
001
|
|||
| Full Legal Description: HARVEST HILLS SOUTH SEC 2 011 001 |
| Photo & Sketch (if available) | Comp Sales (ordered by relevancy) |
|
||||||||||||||||||
|
||||||||||||||||||||
| Value History (*The County Treasurer 405-713-1300 posts & collects actual tax amounts. Contact information HERE) | |||||||||||||
|---|---|---|---|---|---|---|---|---|---|---|---|---|---|
| Year | Market Value | Taxable Mkt Value | Gross Assessed | Exemption | Net Assessed | Millage | Est. Tax | Tax Savings | |||||
|
2025 |
260,000 |
220,613 |
24,266 |
0 |
24,266 |
123.17 |
$2,989 |
$534 |
|||||
|
2024 |
263,000 |
210,108 |
23,111 |
0 |
23,111 |
122.30 |
$2,827 |
$712 |
|||||
|
2023 |
217,000 |
200,103 |
22,011 |
0 |
22,011 |
121.91 |
$2,683 |
$227 |
|||||
|
2022 |
206,000 |
190,575 |
20,963 |
0 |
20,963 |
123.41 |
$2,587 |
$209 |
|||||
|
2021 |
181,500 |
181,500 |
19,965 |
0 |
19,965 |
122.23 |
$2,440 |
$0 |
|||||
| Property Account Status/Adjustments/Exemptions | ||||||
|---|---|---|---|---|---|---|
| Account # | Exemption Description | Amount | ||||
| No adjustment/exemption records returned. | ||||||
| Property Deed Transaction History (Recorded in the County Clerk's Office) | ||||||||||
|---|---|---|---|---|---|---|---|---|---|---|
| Date | Type | Book | Page | Price | Grantor | Grantee | ||||
|
2/17/2026 |
|
Hmstd Off & |
$0 |
CLAY ANDREW |
CLAY ANDREW FAMILY TRUST |
|||||
|
9/22/2025 |
|
Deeds |
$263,000 |
1 STORY INVESTMENTS LLC |
CLAY ANDREW |
|||||
|
1/18/2019 |
|
Hmstd Off & |
$0 |
THOMAS JOHN R & V VERENE |
THOMAS JOHN R & V VERENE TRS |
|||||
|
1/18/2019 |
|
Mult Parcel |
$700,000 |
THOMAS JOHN R & V VERENE TRS |
1 STORY INVESTMENTS LLC |
|||||
|
5/4/2012 |
|
Deeds |
$0 |
THOMAS JOHN R & V VERENE |
THOMAS JOHN R & V VERENE TRS |
|||||
| Last Mailed Notice of Value (N.O.V.) Information/History | ||||||||
|---|---|---|---|---|---|---|---|---|
| Year | Date | Market Value | Taxable Market Value | Gross Assessed | Exemption | Net Assessed | ||
|
2026 |
02/23/2026 |
268,500 |
268,500 |
29,535 |
0 |
29,535 |
||
|
2025 |
02/14/2025 |
260,000 |
220,613 |
24,266 |
0 |
24,266 |
||
|
2024 |
02/13/2024 |
263,000 |
210,108 |
23,111 |
0 |
23,111 |
||
|
2023 |
02/14/2023 |
217,000 |
200,103 |
22,011 |
0 |
22,011 |
||
|
2022 |
03/15/2022 |
206,000 |
190,575 |
20,963 |
0 |
20,963 |
||
| Property Building Permit History | |||||||||||
|---|---|---|---|---|---|---|---|---|---|---|---|
| Issued | Permit # | Provided by | Bldg # | Description | Est Construction Cost | Status | |||||
| No Building Permit records returned. | |||||||||||
| Click button on building number to access detailed information: | ||||||
|---|---|---|---|---|---|---|
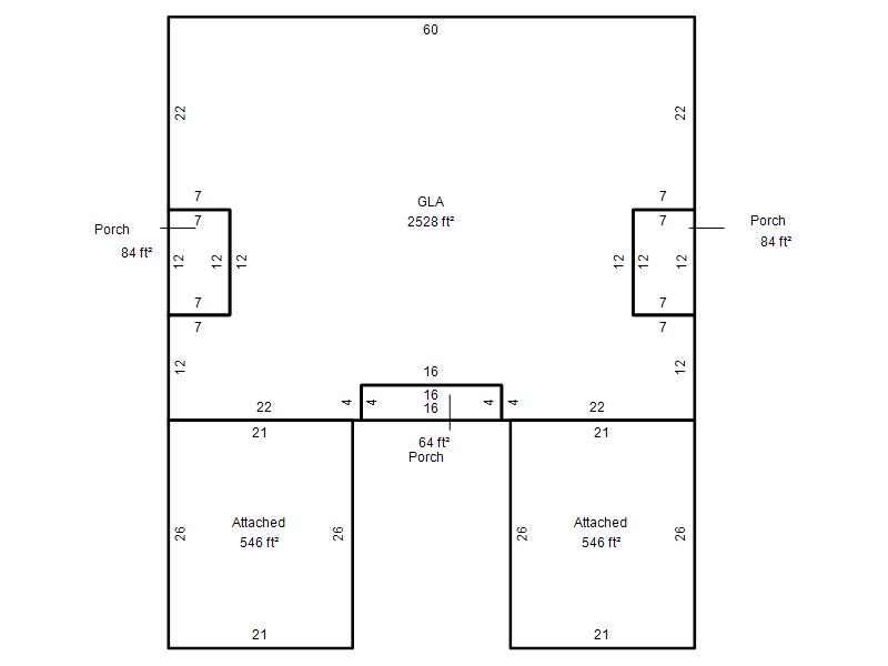
| Bldg # | Vacant/Improved Land | Bldg Description | Year Built | SqFt | # Stories | |
|
1 |
Improved |
Duplex One Story |
1981 |
2,528 |
1 Stories |
|