|
|
|
| Larry Stein Oklahoma County Assessor (405) 713-1200 - Public Access System |
|
|
|
|
|
|
| Real Property Display - Screen Produced 3/21/2026 5:53:56 AM | ||||
|---|---|---|---|---|
| Account: R150106090 | Type: Residential | Location: |
203 W LILAC LN |
|
| Building Name/Occupant: |
|
MIDWEST CITY |
||
| Owner Name 1: | WILLARD STACY LYNN |
Parcel PIN#: |
1440-15-010-6090 |
|
| Owner Name 2: | 1/4 section #: |
1440 |
||
| Owner Name 3: | Parent Acct: |
|
||
| Billing Address: | 11032 SHEFFIELD ST | Tax District: |
|
|
| City, State, Zip | MIDWEST CITY, OK 73130-8214 | School System: |
Mid-Del #52 |
|
|
Country: (If noted) |
Land Size: |
0.2035 Acres |
||
|
Land Value: 25,268 |
|
|||
|
Sect 10-T11N-R2W Qtr NW |
SPECKMAN HEIGHTS ADD
Block
016
Lot
027
|
|||
| Full Legal Description: SPECKMAN HEIGHTS ADD 016 027 |
| Photo & Sketch (if available) | Comp Sales (ordered by relevancy) |
|
||||||||||||||||||
|
||||||||||||||||||||
| Value History (*The County Treasurer 405-713-1300 posts & collects actual tax amounts. Contact information HERE) | |||||||||||||
|---|---|---|---|---|---|---|---|---|---|---|---|---|---|
| Year | Market Value | Taxable Mkt Value | Gross Assessed | Exemption | Net Assessed | Millage | Est. Tax | Tax Savings | |||||
|
2025 |
102,500 |
70,193 |
7,720 |
0 |
7,720 |
119.58 |
$923 |
$425 |
|||||
|
2024 |
94,000 |
66,851 |
7,353 |
0 |
7,353 |
122.51 |
$901 |
$366 |
|||||
|
2023 |
80,500 |
63,668 |
7,003 |
0 |
7,003 |
117.71 |
$824 |
$218 |
|||||
|
2022 |
73,000 |
60,637 |
6,669 |
0 |
6,669 |
116.64 |
$778 |
$159 |
|||||
|
2021 |
62,000 |
57,750 |
6,352 |
0 |
6,352 |
119.45 |
$759 |
$56 |
|||||
| Property Account Status/Adjustments/Exemptions | ||
|---|---|---|
| Account # | Exemption Description | Amount |
|
R150106090 |
5% Capped Account |
0 |
| Property Deed Transaction History (Recorded in the County Clerk's Office) | |||||||
|---|---|---|---|---|---|---|---|
| Date | Type | Book | Page | Price | Grantor | Grantee | |
|
3/9/2016 |
|
Deeds |
$0 |
MCGUFFEE JAURITA G & BOBBY L |
MCGUFFEE JAURITA G |
||
|
3/9/2016 |
|
Deeds |
$12,000 |
MCGUFFEE JAURITA G |
WILLARD STACY LYNN |
||
|
12/13/1993 |
|
Historical |
$0 |
SELBY DARLENE R |
MCGUFFEE JAURITA G & BOBBY L |
||
|
2/1/1987 |
|
Historical |
$0 |
BLANN O R & MARY |
SELBY DARLENE R |
||
|
11/11/1911 |
|
Historical |
$0 |
|
BLANN O R & MARY |
||
| Last Mailed Notice of Value (N.O.V.) Information/History | ||||||||
|---|---|---|---|---|---|---|---|---|
| Year | Date | Market Value | Taxable Market Value | Gross Assessed | Exemption | Net Assessed | ||
|
2026 |
02/06/2026 |
102,000 |
73,702 |
8,107 |
0 |
8,107 |
||
|
2025 |
01/31/2025 |
102,500 |
70,193 |
7,720 |
0 |
7,720 |
||
|
2024 |
01/22/2024 |
94,000 |
66,851 |
7,353 |
0 |
7,353 |
||
|
2023 |
01/23/2023 |
80,500 |
63,668 |
7,003 |
0 |
7,003 |
||
|
2022 |
02/22/2022 |
73,000 |
60,637 |
6,669 |
0 |
6,669 |
||
| Property Building Permit History | ||||||
|---|---|---|---|---|---|---|
| Issued | Permit # | Provided by | Bldg # | Description | Est Construction Cost | Status |
|
1/22/1996 |
10245022 |
MIDWEST CITY |
1 |
Remodeled |
9,958 |
Inactive |
| Click button on building number to access detailed information: | ||||||
|---|---|---|---|---|---|---|
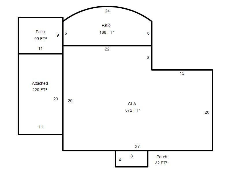
| Bldg # | Vacant/Improved Land | Bldg Description | Year Built | SqFt | # Stories | |
|
1 |
Improved |
Ranch 1 Story |
1947 |
872 |
1 Stories |
|