|
|
|
| Larry Stein Oklahoma County Assessor (405) 713-1200 - Public Access System |
|
|
|
|
|
|
| Real Property Display - Screen Produced 3/27/2026 3:50:39 AM | ||||
|---|---|---|---|---|
| Account: R121131430 | Type: Residential | Location: |
8732 NW 84TH ST |
|
| Building Name/Occupant: |
|
OKLAHOMA CITY |
||
| Owner Name 1: | BROOKS SAMUEL D JR & JANE M |
Parcel PIN#: |
3923-12-113-1430 |
|
| Owner Name 2: | 1/4 section #: |
3923 |
||
| Owner Name 3: | Parent Acct: |
|
||
| Billing Address: | 8732 NW 84TH ST | Tax District: |
|
|
| City, State, Zip | OKLAHOMA CITY, OK 73132-4025 | School System: |
Putnam City #1 |
|
|
Country: (If noted) |
Land Size: |
0.1515 Acres |
||
|
Land Value: 31,020 |
|
|||
|
Sect 31-T13N-R4W Qtr SW |
WILSHIRE HILLS SEC 2
Block
012
Lot
002
|
|||
| Full Legal Description: WILSHIRE HILLS SEC 2 012 002 |
| Photo & Sketch (if available) | Comp Sales (ordered by relevancy) |
|
||||||||||||||||||
|
||||||||||||||||||||
| Value History (*The County Treasurer 405-713-1300 posts & collects actual tax amounts. Contact information HERE) | |||||||||||||
|---|---|---|---|---|---|---|---|---|---|---|---|---|---|
| Year | Market Value | Taxable Mkt Value | Gross Assessed | Exemption | Net Assessed | Millage | Est. Tax | Tax Savings | |||||
| No PropertyValuation records returned. | |||||||||||||
| Property Account Status/Adjustments/Exemptions | ||
|---|---|---|
| Account # | Exemption Description | Amount |
|
R121131430 |
3% Cap Homestead |
0 |
|
R121131430 |
Homestead |
1,000 |
| Property Deed Transaction History (Recorded in the County Clerk's Office) | |||||||
|---|---|---|---|---|---|---|---|
| Date | Type | Book | Page | Price | Grantor | Grantee | |
|
6/9/1993 |
|
Historical |
$69,500 |
JONES ALLEN D & NATALIE D |
BROOKS SAMUEL D JR & JANE M |
||
|
6/1/1985 |
|
Historical |
$67,000 |
|
JONES ALLEN D & NATALIE D |
||
| Last Mailed Notice of Value (N.O.V.) Information/History | ||||||||
|---|---|---|---|---|---|---|---|---|
| Year | Date | Market Value | Taxable Market Value | Gross Assessed | Exemption | Net Assessed | ||
| No Notice of Value N.O.V. records returned. | ||||||||
| Property Building Permit History | |||||||||||
|---|---|---|---|---|---|---|---|---|---|---|---|
| Issued | Permit # | Provided by | Bldg # | Description | Est Construction Cost | Status | |||||
| No Building Permit records returned. | |||||||||||
| Click button on building number to access detailed information: | ||||||
|---|---|---|---|---|---|---|
| Bldg # | Vacant/Improved Land | Bldg Description | Year Built | SqFt | # Stories | |
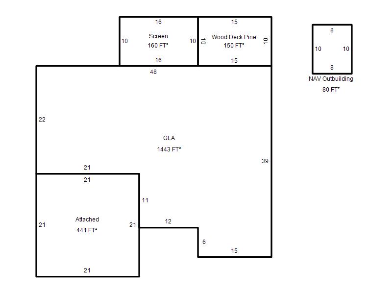
|
1 |
Improved |
Ranch 1 Story |
1986 |
1,443 |
1 Stories |
|