|
|
|
| Larry Stein Oklahoma County Assessor (405) 713-1200 - Public Access System |
|
|
|
|
|
|
| Real Property Display - Screen Produced 3/22/2026 7:47:32 PM | ||||
|---|---|---|---|---|
| Account: R121131690 | Type: Residential | Location: |
8613 NW 85TH PL |
|
| Building Name/Occupant: |
|
OKLAHOMA CITY |
||
| Owner Name 1: | SOUTHERLAND DAVID & JANICE E R |
Parcel PIN#: |
3923-12-113-1690 |
|
| Owner Name 2: | 1/4 section #: |
3923 |
||
| Owner Name 3: | Parent Acct: |
|
||
| Billing Address: | 8613 NW 85TH PL | Tax District: |
|
|
| City, State, Zip | OKLAHOMA CITY, OK 73132-4065 | School System: |
Putnam City #1 |
|
|
Country: (If noted) |
Land Size: |
0.1515 Acres |
||
|
Land Value: 31,020 |
|
|||
|
Sect 31-T13N-R4W Qtr SW |
WILSHIRE HILLS SEC 2
Block
014
Lot
004
|
|||
| Full Legal Description: WILSHIRE HILLS SEC 2 014 004 |
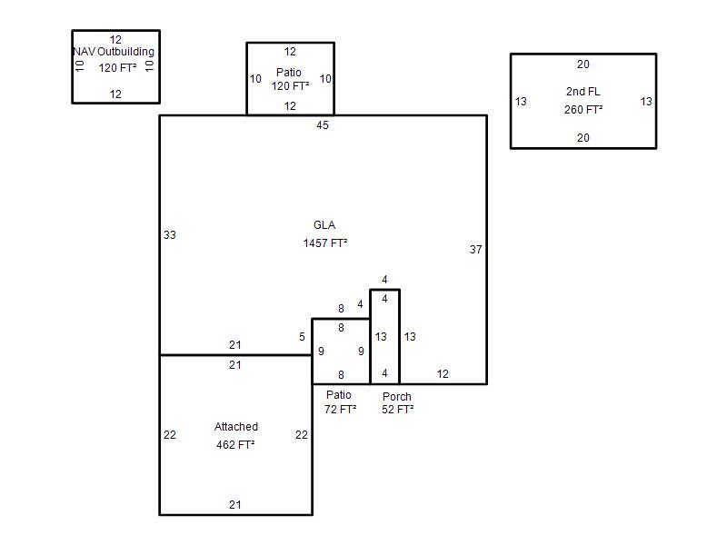
| Photo & Sketch (if available) | Comp Sales (ordered by relevancy) |
|
||||||||||||||||||
|
||||||||||||||||||||
| Value History (*The County Treasurer 405-713-1300 posts & collects actual tax amounts. Contact information HERE) | |||||||||||||
|---|---|---|---|---|---|---|---|---|---|---|---|---|---|
| Year | Market Value | Taxable Mkt Value | Gross Assessed | Exemption | Net Assessed | Millage | Est. Tax | Tax Savings | |||||
|
2025 |
223,500 |
173,890 |
19,127 |
1,000 |
18,127 |
123.17 |
$2,233 |
$795 |
|||||
|
2024 |
217,000 |
168,826 |
18,569 |
1,000 |
17,569 |
122.30 |
$2,149 |
$770 |
|||||
|
2023 |
211,500 |
163,909 |
18,029 |
1,000 |
17,029 |
121.91 |
$2,076 |
$760 |
|||||
|
2022 |
183,500 |
159,135 |
17,504 |
1,000 |
16,504 |
123.41 |
$2,037 |
$454 |
|||||
|
2021 |
162,500 |
154,500 |
16,995 |
1,000 |
15,995 |
122.23 |
$1,955 |
$230 |
|||||
| Property Account Status/Adjustments/Exemptions | ||
|---|---|---|
| Account # | Exemption Description | Amount |
|
R121131690 |
3% Cap Homestead |
0 |
|
R121131690 |
Homestead |
1,000 |
| Property Deed Transaction History (Recorded in the County Clerk's Office) | |||||||
|---|---|---|---|---|---|---|---|
| Date | Type | Book | Page | Price | Grantor | Grantee | |
|
6/27/1995 |
|
Historical |
$90,000 |
LEONHARDT ENTERPRISES INC |
SOUTHERLAND DAVID & JANICE E R |
||
|
6/30/1994 |
|
Historical |
$0 |
MASON ANN S |
LEONHARDT ENTERPRISES INC |
||
|
1/1/1987 |
|
Historical |
$0 |
DYNAMIC CORPORATION |
MASON ANN S |
||
|
5/1/1982 |
|
Historical |
$0 |
|
DYNAMIC CORPORATION |
||
| Last Mailed Notice of Value (N.O.V.) Information/History | ||||||||
|---|---|---|---|---|---|---|---|---|
| Year | Date | Market Value | Taxable Market Value | Gross Assessed | Exemption | Net Assessed | ||
|
2026 |
02/23/2026 |
227,500 |
179,106 |
19,700 |
1,000 |
18,700 |
||
|
2025 |
02/14/2025 |
223,500 |
173,890 |
19,127 |
1,000 |
18,127 |
||
|
2024 |
02/13/2024 |
217,000 |
168,826 |
18,569 |
1,000 |
17,569 |
||
|
2023 |
02/14/2023 |
211,500 |
163,909 |
18,029 |
1,000 |
17,029 |
||
|
2022 |
03/15/2022 |
183,500 |
159,135 |
17,504 |
1,000 |
16,504 |
||
| Property Building Permit History | ||||||
|---|---|---|---|---|---|---|
| Issued | Permit # | Provided by | Bldg # | Description | Est Construction Cost | Status |
|
6/30/1994 |
10207118 |
OKLAHOMA CITY |
1 |
Main Dwellin |
75,450 |
Inactive |
| Click button on building number to access detailed information: | ||||||
|---|---|---|---|---|---|---|
| Bldg # | Vacant/Improved Land | Bldg Description | Year Built | SqFt | # Stories | |
|
1 |
Improved |
1½ Story Fin |
1995 |
1,717 |
1.5 Stories |
|