|
|
|
| Larry Stein Oklahoma County Assessor (405) 713-1200 - Public Access System |
|
|
|
|
|
|
| Real Property Display - Screen Produced 4/2/2026 7:50:10 AM | ||||
|---|---|---|---|---|
| Account: R148681370 | Type: Residential | Location: |
8012 CURTIS TER |
|
| Building Name/Occupant: |
|
OKLAHOMA CITY |
||
| Owner Name 1: | TRIPPETT STEPHEN J |
Parcel PIN#: |
3923-14-868-1370 |
|
| Owner Name 2: | 1/4 section #: |
3923 |
||
| Owner Name 3: | Parent Acct: |
|
||
| Billing Address: | 8012 CURTIS TER | Tax District: |
|
|
| City, State, Zip | OKLAHOMA CITY, OK 73132-4043 | School System: |
Putnam City #1 |
|
|
Country: (If noted) |
Land Size: |
0.1692 Acres |
||
|
Land Value: 51,222 |
|
|||
|
Sect 31-T13N-R4W Qtr SW |
WILSHIRE HILLS AMENDED
Block
002
Lot
010
|
|||
| Full Legal Description: WILSHIRE HILLS AMENDED 002 010 |
| Photo & Sketch (if available) | Comp Sales (ordered by relevancy) |
|
||||||||||||||||||
|
||||||||||||||||||||
| Value History (*The County Treasurer 405-713-1300 posts & collects actual tax amounts. Contact information HERE) | |||||||||||||
|---|---|---|---|---|---|---|---|---|---|---|---|---|---|
| Year | Market Value | Taxable Mkt Value | Gross Assessed | Exemption | Net Assessed | Millage | Est. Tax | Tax Savings | |||||
|
2026 |
177,000 |
136,174 |
14,978 |
1,000 |
13,978 |
123.17 |
$1,722 |
$676 |
|||||
|
2025 |
174,500 |
132,208 |
14,542 |
1,000 |
13,542 |
123.17 |
$1,668 |
$696 |
|||||
|
2024 |
164,000 |
128,358 |
14,119 |
1,000 |
13,119 |
122.30 |
$1,605 |
$602 |
|||||
|
2023 |
157,500 |
124,620 |
13,708 |
1,000 |
12,708 |
121.91 |
$1,549 |
$563 |
|||||
|
2022 |
132,500 |
120,991 |
13,308 |
1,000 |
12,308 |
123.41 |
$1,519 |
$280 |
|||||
| Property Account Status/Adjustments/Exemptions | ||
|---|---|---|
| Account # | Exemption Description | Amount |
|
R148681370 |
3% Cap Homestead |
0 |
|
R148681370 |
Homestead |
1,000 |
| Property Deed Transaction History (Recorded in the County Clerk's Office) | |||||||
|---|---|---|---|---|---|---|---|
| Date | Type | Book | Page | Price | Grantor | Grantee | |
|
5/25/1993 |
|
Historical |
$0 |
TRIPPETT STEPHEN J & MARY L |
TRIPPETT STEPHEN J |
||
|
3/21/1989 |
|
Historical |
$48,000 |
BLAKESLEE JOHN R & BETTY A |
TRIPPETT STEPHEN J & MARY L |
||
|
2/1/1976 |
|
Historical |
$0 |
|
BLAKESLEE JOHN R & BETTY A |
||
| Last Mailed Notice of Value (N.O.V.) Information/History | ||||||||
|---|---|---|---|---|---|---|---|---|
| Year | Date | Market Value | Taxable Market Value | Gross Assessed | Exemption | Net Assessed | ||
|
2026 |
02/23/2026 |
177,000 |
136,174 |
14,978 |
1,000 |
13,978 |
||
|
2025 |
02/14/2025 |
174,500 |
132,208 |
14,542 |
1,000 |
13,542 |
||
|
2024 |
02/13/2024 |
164,000 |
128,358 |
14,119 |
1,000 |
13,119 |
||
|
2023 |
02/14/2023 |
157,500 |
124,620 |
13,708 |
1,000 |
12,708 |
||
|
2022 |
03/15/2022 |
132,500 |
120,991 |
13,308 |
1,000 |
12,308 |
||
| Property Building Permit History | |||||||||||
|---|---|---|---|---|---|---|---|---|---|---|---|
| Issued | Permit # | Provided by | Bldg # | Description | Est Construction Cost | Status | |||||
| No Building Permit records returned. | |||||||||||
| Click button on building number to access detailed information: | ||||||
|---|---|---|---|---|---|---|
| Bldg # | Vacant/Improved Land | Bldg Description | Year Built | SqFt | # Stories | |
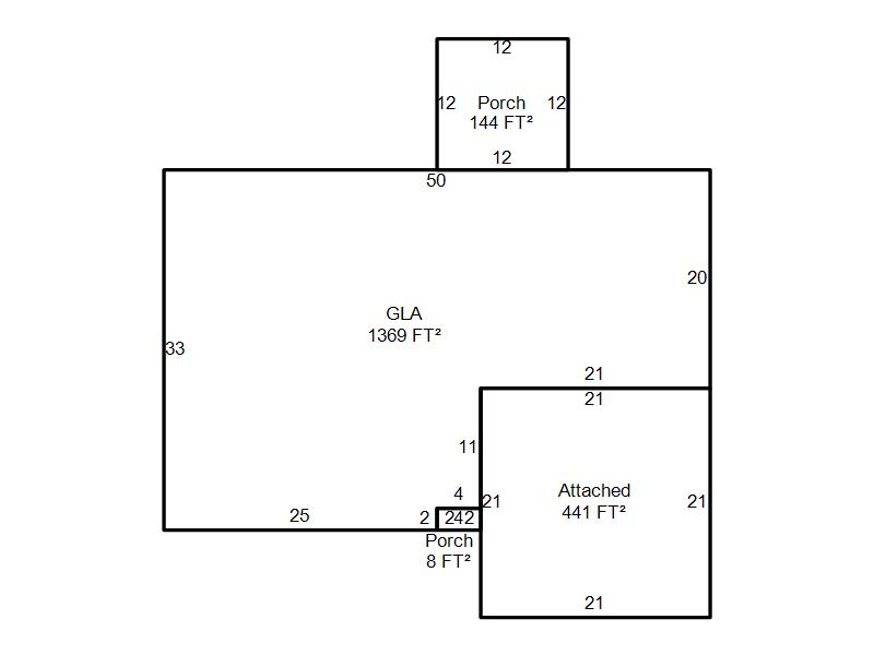
|
1 |
Improved |
Ranch 1 Story |
1974 |
1,369 |
1 Stories |
|