|
|
|
| Larry Stein Oklahoma County Assessor (405) 713-1200 - Public Access System |
|
|
|
|
|
|
| Real Property Display - Screen Produced 3/22/2026 12:55:39 PM | ||||
|---|---|---|---|---|
| Account: R121421300 | Type: Residential | Location: |
8804 NW 92ND ST |
|
| Building Name/Occupant: |
|
OKLAHOMA CITY |
||
| Owner Name 1: | LEAGUE PROPERTIES SERIES LLC 8804 NW 92ND ST |
Parcel PIN#: |
3924-12-142-1300 |
|
| Owner Name 2: | 1/4 section #: |
3924 |
||
| Owner Name 3: | Parent Acct: |
|
||
| Billing Address: | PO BOX 1798 | Tax District: |
|
|
| City, State, Zip | MUSTANG , OK 73064 | School System: |
Putnam City #1 |
|
|
Country: (If noted) |
Land Size: |
0.1566 Acres |
||
|
Land Value: 30,690 |
|
|||
|
Sect 31-T13N-R4W Qtr NW |
RAMBLING ACRES SEC 4
Block
037
Lot
002
|
|||
| Full Legal Description: RAMBLING ACRES SEC 4 037 002 |
| Photo & Sketch (if available) | Comp Sales (ordered by relevancy) |
|
||||||||||||||||||
|
||||||||||||||||||||
| Value History (*The County Treasurer 405-713-1300 posts & collects actual tax amounts. Contact information HERE) | |||||||||||||
|---|---|---|---|---|---|---|---|---|---|---|---|---|---|
| Year | Market Value | Taxable Mkt Value | Gross Assessed | Exemption | Net Assessed | Millage | Est. Tax | Tax Savings | |||||
|
2025 |
198,000 |
149,962 |
16,495 |
0 |
16,495 |
123.17 |
$2,032 |
$651 |
|||||
|
2024 |
191,000 |
142,821 |
15,710 |
0 |
15,710 |
122.30 |
$1,921 |
$648 |
|||||
|
2023 |
193,000 |
136,020 |
14,961 |
0 |
14,961 |
121.91 |
$1,824 |
$764 |
|||||
|
2022 |
143,000 |
129,543 |
14,249 |
0 |
14,249 |
123.41 |
$1,759 |
$183 |
|||||
|
2021 |
126,000 |
123,375 |
13,571 |
0 |
13,571 |
122.23 |
$1,659 |
$35 |
|||||
| Property Account Status/Adjustments/Exemptions | ||
|---|---|---|
| Account # | Exemption Description | Amount |
|
R121421300 |
5% Capped Account |
0 |
| Property Deed Transaction History (Recorded in the County Clerk's Office) | ||||||||||
|---|---|---|---|---|---|---|---|---|---|---|
| Date | Type | Book | Page | Price | Grantor | Grantee | ||||
|
12/23/2019 |
|
Hmstd Off & |
$0 |
LEAGUE PROPERTIES LLC |
LEAGUE PROPERTIES SERIES LLC 8804 NW 92ND ST |
|||||
|
11/2/2018 |
|
Deeds |
$97,000 |
MURCER BONNIE L |
ICON PROPERTIES LLC |
|||||
|
11/2/2018 |
|
Deeds |
$110,000 |
ICON PROPERTIES LLC |
LEAGUE PROPERTIES LLC |
|||||
|
9/27/2013 |
|
Deeds |
$120,000 |
IBASCO MELCHOR |
MURCER BONNIE L |
|||||
|
8/26/2011 |
|
Deeds |
$117,000 |
SHELTMAN SUSAN KIMERY JAKE |
IBASCO MELCHOR |
|||||
| Last Mailed Notice of Value (N.O.V.) Information/History | ||||||||
|---|---|---|---|---|---|---|---|---|
| Year | Date | Market Value | Taxable Market Value | Gross Assessed | Exemption | Net Assessed | ||
|
2026 |
02/23/2026 |
201,000 |
157,460 |
17,319 |
0 |
17,319 |
||
|
2025 |
02/14/2025 |
198,000 |
149,962 |
16,495 |
0 |
16,495 |
||
|
2024 |
02/13/2024 |
191,000 |
142,821 |
15,710 |
0 |
15,710 |
||
|
2023 |
02/14/2023 |
193,000 |
136,020 |
14,961 |
0 |
14,961 |
||
|
2022 |
03/15/2022 |
143,000 |
129,543 |
14,249 |
0 |
14,249 |
||
| Property Building Permit History | |||||||||||
|---|---|---|---|---|---|---|---|---|---|---|---|
| Issued | Permit # | Provided by | Bldg # | Description | Est Construction Cost | Status | |||||
| No Building Permit records returned. | |||||||||||
| Click button on building number to access detailed information: | ||||||
|---|---|---|---|---|---|---|
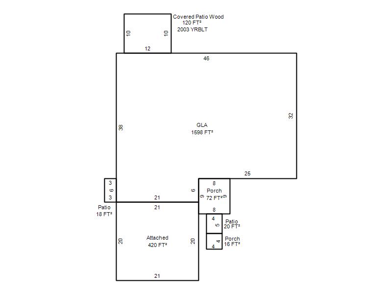
| Bldg # | Vacant/Improved Land | Bldg Description | Year Built | SqFt | # Stories | |
|
1 |
Improved |
Ranch 1 Story |
1983 |
1,598 |
1 Stories |
|