|
|
|
| Larry Stein Oklahoma County Assessor (405) 713-1200 - Public Access System |
|
|
|
|
|
|
| Real Property Display - Screen Produced 3/22/2026 12:54:11 PM | ||||
|---|---|---|---|---|
| Account: R121422340 | Type: Residential | Location: |
8716 NW 91ST ST |
|
| Building Name/Occupant: |
|
OKLAHOMA CITY |
||
| Owner Name 1: | MORGAN RANDALL W & CHERYL R TRS |
Parcel PIN#: |
3924-12-142-2340 |
|
| Owner Name 2: | MORGAN FAMILY TRUST | 1/4 section #: |
3924 |
|
| Owner Name 3: | Parent Acct: |
|
||
| Billing Address: | 8716 NW 91ST ST | Tax District: |
|
|
| City, State, Zip | OKLAHOMA CITY, OK 73132-1036 | School System: |
Putnam City #1 |
|
|
Country: (If noted) |
Land Size: |
0.1515 Acres |
||
|
Land Value: 29,700 |
|
|||
|
Sect 31-T13N-R4W Qtr NW |
RAMBLING ACRES SEC 4
Block
041
Lot
021
|
|||
| Full Legal Description: RAMBLING ACRES SEC 4 041 021 |
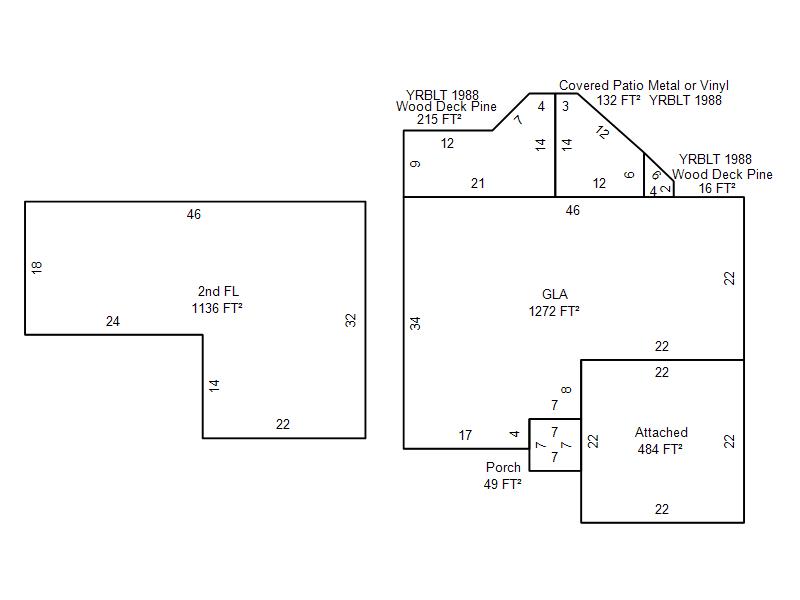
| Photo & Sketch (if available) | Comp Sales (ordered by relevancy) |
|
||||||||||||||||||
|
||||||||||||||||||||
| Value History (*The County Treasurer 405-713-1300 posts & collects actual tax amounts. Contact information HERE) | |||||||||||||
|---|---|---|---|---|---|---|---|---|---|---|---|---|---|
| Year | Market Value | Taxable Mkt Value | Gross Assessed | Exemption | Net Assessed | Millage | Est. Tax | Tax Savings | |||||
|
2025 |
263,000 |
202,311 |
22,254 |
1,000 |
21,254 |
123.17 |
$2,618 |
$945 |
|||||
|
2024 |
257,500 |
196,419 |
21,605 |
1,000 |
20,605 |
122.30 |
$2,520 |
$944 |
|||||
|
2023 |
258,500 |
190,699 |
20,975 |
1,000 |
19,975 |
121.91 |
$2,435 |
$1,031 |
|||||
|
2022 |
215,500 |
185,145 |
20,364 |
1,000 |
19,364 |
123.41 |
$2,390 |
$535 |
|||||
|
2021 |
201,000 |
179,753 |
19,771 |
1,000 |
18,771 |
122.23 |
$2,295 |
$408 |
|||||
| Property Account Status/Adjustments/Exemptions | ||
|---|---|---|
| Account # | Exemption Description | Amount |
|
R121422340 |
Freeze Senior Valuation |
0 |
|
R121422340 |
3% Cap Homestead |
0 |
|
R121422340 |
Homestead |
1,000 |
| Property Deed Transaction History (Recorded in the County Clerk's Office) | ||||||||||
|---|---|---|---|---|---|---|---|---|---|---|
| Date | Type | Book | Page | Price | Grantor | Grantee | ||||
|
2/21/2025 |
|
Deeds |
$0 |
MORGAN RANDALL W & CHERYL R |
MORGAN RANDALL W & CHERYL R TRS |
|||||
|
12/6/2019 |
|
Deeds |
$0 |
MORGAN RANDALL W |
MORGAN RANDALL W & CHERYL R |
|||||
|
2/5/2003 |
|
Deeds |
$0 |
MORGAN RANDALL W |
MORGAN RANDALL W & CHERYL R |
|||||
|
1/6/2003 |
|
Deeds |
$0 |
MORGAN RANDALL W & CHERYL R |
MORGAN RANDALL W |
|||||
|
12/19/2002 |
|
Deeds |
$0 |
MORGAN RANDALL W CHERYL |
MORGAN RANDALL W & CHERYL R |
|||||
| Last Mailed Notice of Value (N.O.V.) Information/History | ||||||||
|---|---|---|---|---|---|---|---|---|
| Year | Date | Market Value | Taxable Market Value | Gross Assessed | Exemption | Net Assessed | ||
|
2026 |
02/23/2026 |
269,000 |
208,380 |
22,921 |
1,000 |
21,921 |
||
|
2025 |
02/14/2025 |
263,000 |
202,311 |
22,254 |
1,000 |
21,254 |
||
|
2025 |
03/28/2025 |
263,000 |
202,311 |
22,254 |
1,000 |
21,254 |
||
|
2024 |
02/13/2024 |
257,500 |
196,419 |
21,605 |
1,000 |
20,605 |
||
|
2023 |
02/14/2023 |
258,500 |
190,699 |
20,975 |
1,000 |
19,975 |
||
| Property Building Permit History | |||||||||||
|---|---|---|---|---|---|---|---|---|---|---|---|
| Issued | Permit # | Provided by | Bldg # | Description | Est Construction Cost | Status | |||||
| No Building Permit records returned. | |||||||||||
| Click button on building number to access detailed information: | ||||||
|---|---|---|---|---|---|---|
| Bldg # | Vacant/Improved Land | Bldg Description | Year Built | SqFt | # Stories | |
|
1 |
Improved |
2 Story |
1986 |
2,408 |
2 Stories |
|