|
|
|
| Larry Stein Oklahoma County Assessor (405) 713-1200 - Public Access System |
|
|
|
|
|
|
| Real Property Display - Screen Produced 3/22/2026 6:15:15 PM | ||||
|---|---|---|---|---|
| Account: R149001000 | Type: Residential | Location: |
8909 RAMBLING RD |
|
| Building Name/Occupant: |
|
OKLAHOMA CITY |
||
| Owner Name 1: | VENTERS WAYNE L |
Parcel PIN#: |
3924-14-900-1000 |
|
| Owner Name 2: | VENTERS KENNESHA | 1/4 section #: |
3924 |
|
| Owner Name 3: | Parent Acct: |
|
||
| Billing Address: | 8909 RAMBLING RD | Tax District: |
|
|
| City, State, Zip | OKLAHOMA CITY, OK 73132-1123 | School System: |
Putnam City #1 |
|
|
Country: (If noted) |
Land Size: |
0.1983 Acres |
||
|
Land Value: 38,880 |
|
|||
|
Sect 31-T13N-R4W Qtr NW |
RAMBLING ACRS SEC 2
Block
010
Lot
012
|
|||
| Full Legal Description: RAMBLING ACRS SEC 2 010 012 |
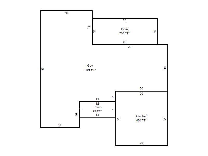
| Photo & Sketch (if available) | Comp Sales (ordered by relevancy) |
|
||||||||||||||||||
|
||||||||||||||||||||
| Value History (*The County Treasurer 405-713-1300 posts & collects actual tax amounts. Contact information HERE) | |||||||||||||
|---|---|---|---|---|---|---|---|---|---|---|---|---|---|
| Year | Market Value | Taxable Mkt Value | Gross Assessed | Exemption | Net Assessed | Millage | Est. Tax | Tax Savings | |||||
|
2025 |
174,500 |
154,073 |
16,948 |
0 |
16,948 |
123.17 |
$2,087 |
$277 |
|||||
|
2024 |
168,000 |
146,737 |
16,140 |
0 |
16,140 |
122.30 |
$1,974 |
$286 |
|||||
|
2023 |
170,500 |
139,750 |
15,372 |
0 |
15,372 |
121.91 |
$1,874 |
$412 |
|||||
|
2022 |
144,500 |
133,096 |
14,639 |
0 |
14,639 |
123.41 |
$1,807 |
$155 |
|||||
|
2021 |
135,500 |
126,759 |
13,942 |
0 |
13,942 |
122.23 |
$1,704 |
$118 |
|||||
| Property Account Status/Adjustments/Exemptions | ||
|---|---|---|
| Account # | Exemption Description | Amount |
|
R149001000 |
5% Capped Account |
0 |
| Property Deed Transaction History (Recorded in the County Clerk's Office) | ||||||||||
|---|---|---|---|---|---|---|---|---|---|---|
| Date | Type | Book | Page | Price | Grantor | Grantee | ||||
|
7/17/2009 |
|
Deeds |
$105,000 |
CHARNEY MARC LAWRENCE & LINDA KAY CO TRS CHARNEY FAMILY REV |
VENTERS WAYNE L |
|||||
|
2/9/2006 |
|
Deeds |
$0 |
CHARNEY MARC L & LINDA K |
CHARNEY MARC LAWRENCE & LINDA KAY CO TRS CHARNEY FAMILY REV |
|||||
|
12/18/2002 |
|
Deeds |
$74,000 |
MCWATERS ROBERT D |
CHARNEY MARC L & LINDA K |
|||||
|
12/16/2002 |
|
Deeds |
$0 |
MCWATERS CHRISTINE |
MCWATERS ROBERT DALE |
|||||
|
3/30/1998 |
|
Historical |
$67,000 |
MILLENACKER KAREN A |
MCWATERS ROBERT D |
|||||
| Last Mailed Notice of Value (N.O.V.) Information/History | ||||||||
|---|---|---|---|---|---|---|---|---|
| Year | Date | Market Value | Taxable Market Value | Gross Assessed | Exemption | Net Assessed | ||
|
2026 |
02/23/2026 |
177,000 |
161,776 |
17,795 |
0 |
17,795 |
||
|
2025 |
02/14/2025 |
174,500 |
154,073 |
16,948 |
0 |
16,948 |
||
|
2024 |
02/13/2024 |
168,000 |
146,737 |
16,140 |
0 |
16,140 |
||
|
2023 |
02/14/2023 |
170,500 |
139,750 |
15,372 |
0 |
15,372 |
||
|
2022 |
03/15/2022 |
144,500 |
133,096 |
14,639 |
0 |
14,639 |
||
| Property Building Permit History | |||||||||||
|---|---|---|---|---|---|---|---|---|---|---|---|
| Issued | Permit # | Provided by | Bldg # | Description | Est Construction Cost | Status | |||||
| No Building Permit records returned. | |||||||||||
| Click button on building number to access detailed information: | ||||||
|---|---|---|---|---|---|---|
| Bldg # | Vacant/Improved Land | Bldg Description | Year Built | SqFt | # Stories | |
|
1 |
Improved |
Ranch 1 Story |
1977 |
1,408 |
1 Stories |
|