|
|
|
| Larry Stein Oklahoma County Assessor (405) 713-1200 - Public Access System |
|
|
|
|
|
|
| Real Property Display - Screen Produced 3/21/2026 5:35:50 AM | ||||
|---|---|---|---|---|
| Account: R150106890 | Type: Residential | Location: |
807 N REDBUD DR |
|
| Building Name/Occupant: |
|
MIDWEST CITY |
||
| Owner Name 1: | CURRIE MACKENZIE J |
Parcel PIN#: |
1440-15-010-6890 |
|
| Owner Name 2: | 1/4 section #: |
1440 |
||
| Owner Name 3: | Parent Acct: |
|
||
| Billing Address: | 807 N REDBUD DR | Tax District: |
|
|
| City, State, Zip | MIDWEST CITY, OK 73110-5548 | School System: |
Mid-Del #52 |
|
|
Country: (If noted) |
Land Size: |
0.2051 Acres |
||
|
Land Value: 25,462 |
|
|||
|
Sect 10-T11N-R2W Qtr NW |
SPECKMAN HEIGHTS ADD
Block
019
Lot
007
|
|||
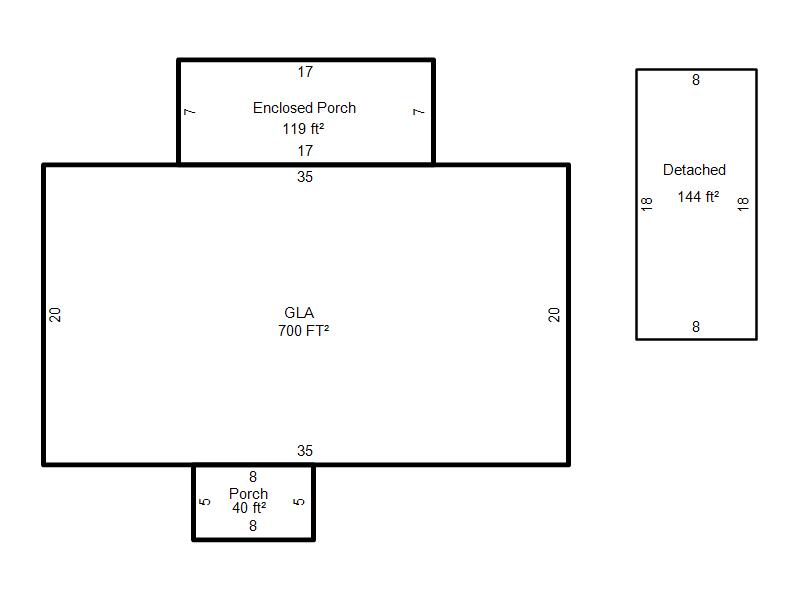
| Full Legal Description: SPECKMAN HEIGHTS ADD 019 007 EXCEPT E3FT |
| Photo & Sketch (if available) | Comp Sales (ordered by relevancy) |
|
||||||||||||||||||
|
||||||||||||||||||||
| Value History (*The County Treasurer 405-713-1300 posts & collects actual tax amounts. Contact information HERE) | |||||||||||||
|---|---|---|---|---|---|---|---|---|---|---|---|---|---|
| Year | Market Value | Taxable Mkt Value | Gross Assessed | Exemption | Net Assessed | Millage | Est. Tax | Tax Savings | |||||
|
2025 |
141,500 |
121,550 |
13,369 |
0 |
13,369 |
119.58 |
$1,599 |
$262 |
|||||
|
2024 |
131,000 |
115,762 |
12,733 |
0 |
12,733 |
122.51 |
$1,560 |
$205 |
|||||
|
2023 |
113,500 |
110,250 |
12,127 |
0 |
12,127 |
117.71 |
$1,428 |
$42 |
|||||
|
2022 |
105,000 |
105,000 |
11,550 |
0 |
11,550 |
116.64 |
$1,347 |
$0 |
|||||
|
2021 |
18,119 |
18,119 |
1,993 |
0 |
1,993 |
119.45 |
$238 |
$0 |
|||||
| Property Account Status/Adjustments/Exemptions | ||||||
|---|---|---|---|---|---|---|
| Account # | Exemption Description | Amount | ||||
| No adjustment/exemption records returned. | ||||||
| Property Deed Transaction History (Recorded in the County Clerk's Office) | |||||||
|---|---|---|---|---|---|---|---|
| Date | Type | Book | Page | Price | Grantor | Grantee | |
|
6/17/2025 |
|
Deeds |
$142,000 |
HOWARD MARY J |
CURRIE MACKENZIE J |
||
|
6/15/2009 |
|
Deeds |
$10,000 |
HENSON DOYLE O |
HOWARD MARY J |
||
|
11/11/1911 |
|
Historical |
$0 |
|
HENSON DOYLE O |
||
| Last Mailed Notice of Value (N.O.V.) Information/History | ||||||||
|---|---|---|---|---|---|---|---|---|
| Year | Date | Market Value | Taxable Market Value | Gross Assessed | Exemption | Net Assessed | ||
|
2026 |
02/06/2026 |
136,500 |
136,500 |
15,015 |
0 |
15,015 |
||
|
2025 |
01/31/2025 |
141,500 |
121,550 |
13,369 |
0 |
13,369 |
||
|
2024 |
01/22/2024 |
131,000 |
115,762 |
12,733 |
0 |
12,733 |
||
|
2023 |
01/23/2023 |
113,500 |
110,250 |
12,127 |
0 |
12,127 |
||
|
2022 |
02/22/2022 |
105,000 |
105,000 |
11,550 |
0 |
11,550 |
||
| Property Building Permit History | ||||||
|---|---|---|---|---|---|---|
| Issued | Permit # | Provided by | Bldg # | Description | Est Construction Cost | Status |
|
6/27/2018 |
|
|
1 |
Fire Remodel |
31,000 |
Inactive |
|
12/8/2016 |
10488973 |
MIDWEST CITY |
1 |
Fire Remodel |
35,000 |
Inactive |
|
12/15/2008 |
10365111 |
MIDWEST CITY |
1 |
Fire Remodel |
0 |
Inactive |
| Click button on building number to access detailed information: | ||||||
|---|---|---|---|---|---|---|
| Bldg # | Vacant/Improved Land | Bldg Description | Year Built | SqFt | # Stories | |
|
1 |
Improved |
Ranch 1 Story |
1947 |
700 |
1 Stories |
|