|
|
|
| Larry Stein Oklahoma County Assessor (405) 713-1200 - Public Access System |
|
|
|
|
|
|
| Real Property Display - Screen Produced 3/23/2026 5:33:52 AM | ||||
|---|---|---|---|---|
| Account: R150106900 | Type: Residential | Location: |
805 N REDBUD DR |
|
| Building Name/Occupant: |
|
MIDWEST CITY |
||
| Owner Name 1: | 805 NORTH REDBUD DRIVE LLC |
Parcel PIN#: |
1440-15-010-6900 |
|
| Owner Name 2: | 1/4 section #: |
1440 |
||
| Owner Name 3: | Parent Acct: |
|
||
| Billing Address: | 3701 EPPERLY DR | Tax District: |
|
|
| City, State, Zip | DEL CITY, OK 73115-3609 | School System: |
Mid-Del #52 |
|
|
Country: (If noted) |
Land Size: |
0.1527 Acres |
||
|
Land Value: 18,953 |
|
|||
|
Sect 10-T11N-R2W Qtr NW |
SPECKMAN HEIGHTS ADD
Block
019
Lot
008
|
|||
| Full Legal Description: SPECKMAN HEIGHTS ADD 019 008 |
| Photo & Sketch (if available) | Comp Sales (ordered by relevancy) |
|
||||||||||||||||||
|
||||||||||||||||||||
| Value History (*The County Treasurer 405-713-1300 posts & collects actual tax amounts. Contact information HERE) | |||||||||||||
|---|---|---|---|---|---|---|---|---|---|---|---|---|---|
| Year | Market Value | Taxable Mkt Value | Gross Assessed | Exemption | Net Assessed | Millage | Est. Tax | Tax Savings | |||||
|
2025 |
102,500 |
68,279 |
7,510 |
0 |
7,510 |
119.58 |
$898 |
$450 |
|||||
|
2024 |
93,000 |
65,028 |
7,152 |
0 |
7,152 |
122.51 |
$876 |
$377 |
|||||
|
2023 |
80,500 |
61,932 |
6,812 |
0 |
6,812 |
117.71 |
$802 |
$240 |
|||||
|
2022 |
73,500 |
58,983 |
6,487 |
0 |
6,487 |
116.64 |
$757 |
$186 |
|||||
|
2021 |
61,000 |
56,175 |
6,179 |
0 |
6,179 |
119.45 |
$738 |
$63 |
|||||
| Property Account Status/Adjustments/Exemptions | ||
|---|---|---|
| Account # | Exemption Description | Amount |
|
R150106900 |
5% Capped Account |
0 |
| Property Deed Transaction History (Recorded in the County Clerk's Office) | |||||||
|---|---|---|---|---|---|---|---|
| Date | Type | Book | Page | Price | Grantor | Grantee | |
|
7/7/2015 |
|
Hmstd Off & |
$0 |
FISCHER TERRY W & GAYLE H |
805 NORTH REDBUD DRIVE LLC |
||
|
11/23/2002 |
|
Deeds |
$0 |
FISCHER GAYLE HARLIN |
FISCHER TERRY W & GAYLE H |
||
|
4/15/1992 |
|
Historical |
$9,750 |
SECRETARY OF VETERANS AFFAIRS |
FISCHER GAYLE HARLIN |
||
|
7/8/1991 |
|
Historical |
$0 |
FDIC RECEIVER FOR |
SECRETARY OF VETERANS AFFAIRS |
||
|
9/1/1985 |
|
Historical |
$0 |
|
FDIC RECEIVER FOR |
||
| Last Mailed Notice of Value (N.O.V.) Information/History | ||||||||
|---|---|---|---|---|---|---|---|---|
| Year | Date | Market Value | Taxable Market Value | Gross Assessed | Exemption | Net Assessed | ||
|
2026 |
02/06/2026 |
100,500 |
71,692 |
7,885 |
0 |
7,885 |
||
|
2025 |
01/31/2025 |
102,500 |
68,279 |
7,510 |
0 |
7,510 |
||
|
2024 |
01/22/2024 |
93,000 |
65,028 |
7,152 |
0 |
7,152 |
||
|
2023 |
01/23/2023 |
80,500 |
61,932 |
6,812 |
0 |
6,812 |
||
|
2022 |
02/22/2022 |
73,500 |
58,983 |
6,487 |
0 |
6,487 |
||
| Property Building Permit History | ||||||
|---|---|---|---|---|---|---|
| Issued | Permit # | Provided by | Bldg # | Description | Est Construction Cost | Status |
|
5/10/1994 |
10245030 |
MIDWEST CITY |
1 |
Remodeled |
3,000 |
Inactive |
| Click button on building number to access detailed information: | ||||||
|---|---|---|---|---|---|---|
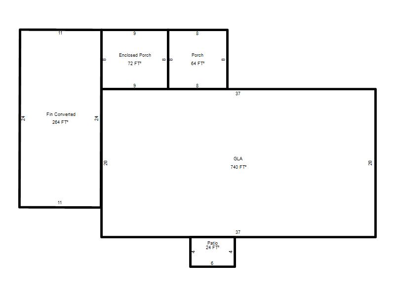
| Bldg # | Vacant/Improved Land | Bldg Description | Year Built | SqFt | # Stories | |
|
1 |
Improved |
Ranch 1 Story |
1947 |
740 |
1 Stories |
|