|
|
|
| Larry Stein Oklahoma County Assessor (405) 713-1200 - Public Access System |
|
|
|
|
|
|
| Real Property Display - Screen Produced 3/22/2026 6:15:16 PM | ||||
|---|---|---|---|---|
| Account: R149001840 | Type: Residential | Location: |
8705 RAMBLING RD |
|
| Building Name/Occupant: |
|
OKLAHOMA CITY |
||
| Owner Name 1: | RYDEN KERRI M |
Parcel PIN#: |
3924-14-900-1840 |
|
| Owner Name 2: | 1/4 section #: |
3924 |
||
| Owner Name 3: | Parent Acct: |
|
||
| Billing Address: | 8705 RAMBLING RD | Tax District: |
|
|
| City, State, Zip | OKLAHOMA CITY, OK 73132 | School System: |
Putnam City #1 |
|
|
Country: (If noted) |
Land Size: |
0.1653 Acres |
||
|
Land Value: 32,400 |
|
|||
|
Sect 31-T13N-R4W Qtr NW |
RAMBLING ACRS SEC 2
Block
018
Lot
008
|
|||
| Full Legal Description: RAMBLING ACRS SEC 2 018 008 |
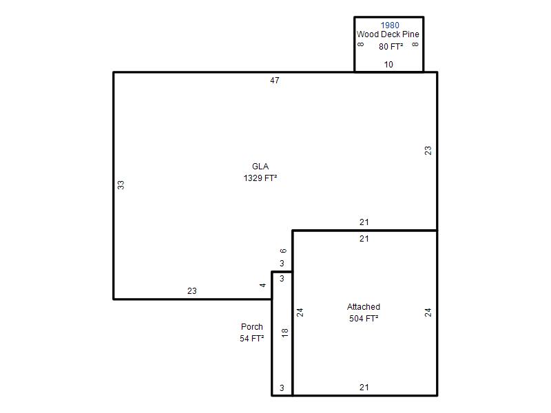
| Photo & Sketch (if available) | Comp Sales (ordered by relevancy) |
|
||||||||||||||||||
|
||||||||||||||||||||
| Value History (*The County Treasurer 405-713-1300 posts & collects actual tax amounts. Contact information HERE) | |||||||||||||
|---|---|---|---|---|---|---|---|---|---|---|---|---|---|
| Year | Market Value | Taxable Mkt Value | Gross Assessed | Exemption | Net Assessed | Millage | Est. Tax | Tax Savings | |||||
|
2025 |
169,000 |
137,372 |
15,110 |
1,000 |
14,110 |
123.17 |
$1,738 |
$552 |
|||||
|
2024 |
162,500 |
133,371 |
14,670 |
1,000 |
13,670 |
122.30 |
$1,672 |
$514 |
|||||
|
2023 |
164,500 |
129,487 |
14,242 |
1,000 |
13,242 |
121.91 |
$1,615 |
$591 |
|||||
|
2022 |
139,000 |
125,716 |
13,828 |
1,000 |
12,828 |
123.41 |
$1,583 |
$304 |
|||||
|
2021 |
124,000 |
122,055 |
13,426 |
1,000 |
12,426 |
122.23 |
$1,519 |
$148 |
|||||
| Property Account Status/Adjustments/Exemptions | ||
|---|---|---|
| Account # | Exemption Description | Amount |
|
R149001840 |
3% Cap Homestead |
0 |
|
R149001840 |
Homestead |
1,000 |
| Property Deed Transaction History (Recorded in the County Clerk's Office) | |||||||
|---|---|---|---|---|---|---|---|
| Date | Type | Book | Page | Price | Grantor | Grantee | |
|
7/17/2019 |
|
Deeds |
$118,000 |
BREWER BRETT L |
RYDEN KERRI M |
||
|
5/12/1999 |
|
Deeds |
$61,000 |
BIGHAM CHARLES E |
BREWER BRETT L |
||
|
9/1/1978 |
|
Historical |
$0 |
|
BIGHAM CHARLES E |
||
| Last Mailed Notice of Value (N.O.V.) Information/History | ||||||||
|---|---|---|---|---|---|---|---|---|
| Year | Date | Market Value | Taxable Market Value | Gross Assessed | Exemption | Net Assessed | ||
|
2026 |
02/23/2026 |
171,500 |
141,493 |
15,563 |
1,000 |
14,563 |
||
|
2025 |
02/14/2025 |
169,000 |
137,372 |
15,110 |
1,000 |
14,110 |
||
|
2024 |
02/13/2024 |
162,500 |
133,371 |
14,670 |
1,000 |
13,670 |
||
|
2023 |
02/14/2023 |
164,500 |
129,487 |
14,242 |
1,000 |
13,242 |
||
|
2022 |
03/15/2022 |
139,000 |
125,716 |
13,828 |
1,000 |
12,828 |
||
| Property Building Permit History | |||||||||||
|---|---|---|---|---|---|---|---|---|---|---|---|
| Issued | Permit # | Provided by | Bldg # | Description | Est Construction Cost | Status | |||||
| No Building Permit records returned. | |||||||||||
| Click button on building number to access detailed information: | ||||||
|---|---|---|---|---|---|---|
| Bldg # | Vacant/Improved Land | Bldg Description | Year Built | SqFt | # Stories | |
|
1 |
Improved |
Ranch 1 Story |
1978 |
1,329 |
1 Stories |
|