|
|
|
| Larry Stein Oklahoma County Assessor (405) 713-1200 - Public Access System |
|
|
|
|
|
|
| Real Property Display - Screen Produced 3/22/2026 6:15:15 PM | ||||
|---|---|---|---|---|
| Account: R149001970 | Type: Residential | Location: |
8700 RAMBLING RD |
|
| Building Name/Occupant: |
|
OKLAHOMA CITY |
||
| Owner Name 1: | BOYKINS MARQUES |
Parcel PIN#: |
3924-14-900-1970 |
|
| Owner Name 2: | 1/4 section #: |
3924 |
||
| Owner Name 3: | Parent Acct: |
|
||
| Billing Address: | 8700 RAMBLING RD | Tax District: |
|
|
| City, State, Zip | OKLAHOMA CITY , OK 73132 | School System: |
Putnam City #1 |
|
|
Country: (If noted) |
Land Size: |
0.1744 Acres |
||
|
Land Value: 34,187 |
|
|||
|
Sect 31-T13N-R4W Qtr NW |
RAMBLING ACRS SEC 2
Block
019
Lot
009
|
|||
| Full Legal Description: RAMBLING ACRS SEC 2 019 009 |
| Photo & Sketch (if available) | Comp Sales (ordered by relevancy) |
|
||||||||||||||||||
|
||||||||||||||||||||
| Value History (*The County Treasurer 405-713-1300 posts & collects actual tax amounts. Contact information HERE) | |||||||||||||
|---|---|---|---|---|---|---|---|---|---|---|---|---|---|
| Year | Market Value | Taxable Mkt Value | Gross Assessed | Exemption | Net Assessed | Millage | Est. Tax | Tax Savings | |||||
|
2025 |
179,000 |
160,810 |
17,688 |
0 |
17,688 |
123.17 |
$2,179 |
$246 |
|||||
|
2024 |
173,000 |
153,153 |
16,846 |
0 |
16,846 |
122.30 |
$2,060 |
$267 |
|||||
|
2023 |
175,000 |
145,860 |
16,044 |
0 |
16,044 |
121.91 |
$1,956 |
$391 |
|||||
|
2022 |
148,000 |
138,915 |
15,280 |
0 |
15,280 |
123.41 |
$1,886 |
$123 |
|||||
|
2021 |
139,000 |
132,300 |
14,553 |
0 |
14,553 |
122.23 |
$1,779 |
$90 |
|||||
| Property Account Status/Adjustments/Exemptions | ||
|---|---|---|
| Account # | Exemption Description | Amount |
|
R149001970 |
5% Capped Account |
0 |
| Property Deed Transaction History (Recorded in the County Clerk's Office) | |||||||
|---|---|---|---|---|---|---|---|
| Date | Type | Book | Page | Price | Grantor | Grantee | |
|
10/29/2018 |
|
Deeds |
$130,000 |
STARKS SAMUEL S & SABRINA PL |
BOYKINS MARQUES |
||
|
8/16/1995 |
|
Historical |
$67,000 |
NAUMANN KEVIN G & TRACY L |
STARKS SAMUEL S & SABRINA PL |
||
|
11/26/1991 |
|
Historical |
$51,500 |
FOUNDERS BANK & TRUST COMPANY |
NAUMANN KEVIN G & TRACY L |
||
|
8/5/1991 |
|
Historical |
$62,500 |
WILLIAMS WILBERT L & JUDITH L |
FOUNDERS BANK & TRUST COMPANY |
||
|
10/1/1985 |
|
Historical |
$62,500 |
|
WILLIAMS WILBERT L & JUDITH L |
||
| Last Mailed Notice of Value (N.O.V.) Information/History | ||||||||
|---|---|---|---|---|---|---|---|---|
| Year | Date | Market Value | Taxable Market Value | Gross Assessed | Exemption | Net Assessed | ||
|
2026 |
02/23/2026 |
182,500 |
168,850 |
18,573 |
0 |
18,573 |
||
|
2025 |
02/14/2025 |
179,000 |
160,810 |
17,688 |
0 |
17,688 |
||
|
2024 |
02/13/2024 |
173,000 |
153,153 |
16,846 |
0 |
16,846 |
||
|
2023 |
02/14/2023 |
175,000 |
145,860 |
16,044 |
0 |
16,044 |
||
|
2022 |
03/15/2022 |
148,000 |
138,915 |
15,280 |
0 |
15,280 |
||
| Property Building Permit History | |||||||||||
|---|---|---|---|---|---|---|---|---|---|---|---|
| Issued | Permit # | Provided by | Bldg # | Description | Est Construction Cost | Status | |||||
| No Building Permit records returned. | |||||||||||
| Click button on building number to access detailed information: | ||||||
|---|---|---|---|---|---|---|
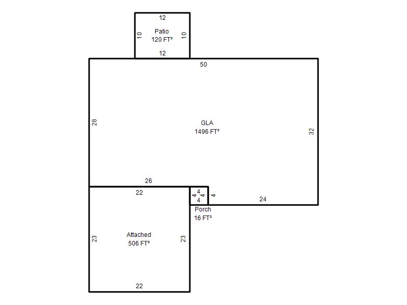
| Bldg # | Vacant/Improved Land | Bldg Description | Year Built | SqFt | # Stories | |
|
1 |
Improved |
Ranch 1 Story |
1977 |
1,496 |
1 Stories |
|