|
|
|
| Larry Stein Oklahoma County Assessor (405) 713-1200 - Public Access System |
|
|
|
|
|
|
| Real Property Display - Screen Produced 3/26/2026 8:02:29 AM | ||||
|---|---|---|---|---|
| Account: R149417300 | Type: Residential | Location: |
8804 NW 86TH ST |
|
| Building Name/Occupant: |
|
OKLAHOMA CITY |
||
| Owner Name 1: | COOK ALICIA & CORTNEY |
Parcel PIN#: |
3924-14-941-7300 |
|
| Owner Name 2: | 1/4 section #: |
3924 |
||
| Owner Name 3: | Parent Acct: |
|
||
| Billing Address: | 8804 NW 86TH ST | Tax District: |
|
|
| City, State, Zip | OKLAHOMA CITY, OK 73132 | School System: |
Putnam City #1 |
|
|
Country: (If noted) |
Land Size: |
0.1761 Acres |
||
|
Land Value: 34,515 |
|
|||
|
Sect 31-T13N-R4W Qtr NW |
RAMBLING ACRES SEC 3
Block
030
Lot
010
|
|||
| Full Legal Description: RAMBLING ACRES SEC 3 030 010 |
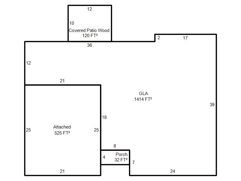
| Photo & Sketch (if available) | Comp Sales (ordered by relevancy) |
|
||||||||||||||||||
|
||||||||||||||||||||
| Value History (*The County Treasurer 405-713-1300 posts & collects actual tax amounts. Contact information HERE) | |||||||||||||
|---|---|---|---|---|---|---|---|---|---|---|---|---|---|
| Year | Market Value | Taxable Mkt Value | Gross Assessed | Exemption | Net Assessed | Millage | Est. Tax | Tax Savings | |||||
|
2026 |
184,500 |
162,875 |
17,915 |
1,000 |
16,915 |
123.17 |
$2,084 |
$416 |
|||||
|
2025 |
181,500 |
158,132 |
17,393 |
1,000 |
16,393 |
123.17 |
$2,019 |
$440 |
|||||
|
2024 |
175,000 |
153,527 |
16,887 |
1,000 |
15,887 |
122.30 |
$1,943 |
$411 |
|||||
|
2023 |
177,000 |
149,056 |
16,395 |
1,000 |
15,395 |
121.91 |
$1,877 |
$497 |
|||||
|
2022 |
149,500 |
144,715 |
15,918 |
1,000 |
14,918 |
123.41 |
$1,841 |
$188 |
|||||
| Property Account Status/Adjustments/Exemptions | ||
|---|---|---|
| Account # | Exemption Description | Amount |
|
R149417300 |
3% Cap Homestead |
0 |
|
R149417300 |
Homestead |
1,000 |
| Property Deed Transaction History (Recorded in the County Clerk's Office) | |||||||
|---|---|---|---|---|---|---|---|
| Date | Type | Book | Page | Price | Grantor | Grantee | |
|
8/23/2019 |
|
Deeds |
$147,500 |
MILLS DAVID C |
COOK ALICIA & CORTNEY |
||
|
6/13/2016 |
|
Deeds |
$105,000 |
TRICE ADA MARIE TRS TRICE ADA MARIE 1988 REV TRUST |
MILLS DAVID C |
||
|
10/31/1994 |
|
Historical |
$62,000 |
HEBERT TAMARA ANN |
TRICE ADA MARIE TRS |
||
|
8/1/1986 |
|
Historical |
$52,500 |
SOONER FEDERAL SAVINGS |
HEBERT TAMARA ANN |
||
|
3/1/1986 |
|
Historical |
$0 |
|
SOONER FEDERAL SAVINGS |
||
| Last Mailed Notice of Value (N.O.V.) Information/History | ||||||||
|---|---|---|---|---|---|---|---|---|
| Year | Date | Market Value | Taxable Market Value | Gross Assessed | Exemption | Net Assessed | ||
|
2026 |
02/23/2026 |
184,500 |
162,875 |
17,915 |
1,000 |
16,915 |
||
|
2025 |
02/14/2025 |
181,500 |
158,132 |
17,393 |
1,000 |
16,393 |
||
|
2024 |
02/13/2024 |
175,000 |
153,527 |
16,887 |
1,000 |
15,887 |
||
|
2023 |
02/14/2023 |
177,000 |
149,056 |
16,395 |
1,000 |
15,395 |
||
|
2022 |
03/15/2022 |
149,500 |
144,715 |
15,918 |
1,000 |
14,918 |
||
| Property Building Permit History | ||||||
|---|---|---|---|---|---|---|
| Issued | Permit # | Provided by | Bldg # | Description | Est Construction Cost | Status |
|
7/14/2006 |
10325698 |
OKLAHOMA CITY |
1 |
Burn - Trip |
6,500 |
Inactive |
| Click button on building number to access detailed information: | ||||||
|---|---|---|---|---|---|---|
| Bldg # | Vacant/Improved Land | Bldg Description | Year Built | SqFt | # Stories | |
|
1 |
Improved |
Ranch 1 Story |
1981 |
1,414 |
1 Stories |
|