|
|
|
| Larry Stein Oklahoma County Assessor (405) 713-1200 - Public Access System |
|
|
|
|
|
|
| Real Property Display - Screen Produced 4/9/2026 7:59:14 AM | ||||
|---|---|---|---|---|
| Account: R123221010 | Type: Residential | Location: |
8309 WOOD DUCK DR |
|
| Building Name/Occupant: |
|
OKLAHOMA CITY |
||
| Owner Name 1: | SARMIENTO IRMA |
Parcel PIN#: |
3927-12-322-1010 |
|
| Owner Name 2: | 1/4 section #: |
3927 |
||
| Owner Name 3: | Parent Acct: |
|
||
| Billing Address: | 8309 WOOD DUCK DR | Tax District: |
|
|
| City, State, Zip | OKLAHOMA CITY, OK 73132-3338 | School System: |
Putnam City #1 |
|
|
Country: (If noted) |
Land Size: |
0.1584 Acres |
||
|
Land Value: 35,880 |
|
|||
|
Sect 32-T13N-R4W Qtr SW |
WILSHIRE RIDGE
Block
001
Lot
002
|
|||
| Full Legal Description: WILSHIRE RIDGE 001 002 |
| Photo & Sketch (if available) | Comp Sales (ordered by relevancy) |
|
||||||||||||||||||
|
||||||||||||||||||||
| Value History (*The County Treasurer 405-713-1300 posts & collects actual tax amounts. Contact information HERE) | |||||||||||||
|---|---|---|---|---|---|---|---|---|---|---|---|---|---|
| Year | Market Value | Taxable Mkt Value | Gross Assessed | Exemption | Net Assessed | Millage | Est. Tax | Tax Savings | |||||
|
2026 |
202,500 |
146,866 |
16,154 |
1,000 |
15,154 |
123.17 |
$1,867 |
$877 |
|||||
|
2025 |
200,500 |
142,589 |
15,683 |
1,000 |
14,683 |
123.17 |
$1,809 |
$908 |
|||||
|
2024 |
192,000 |
138,436 |
15,227 |
1,000 |
14,227 |
122.30 |
$1,740 |
$843 |
|||||
|
2023 |
179,500 |
134,404 |
14,783 |
1,000 |
13,783 |
121.91 |
$1,680 |
$727 |
|||||
|
2022 |
146,000 |
130,490 |
14,353 |
1,000 |
13,353 |
123.41 |
$1,648 |
$334 |
|||||
| Property Account Status/Adjustments/Exemptions | ||
|---|---|---|
| Account # | Exemption Description | Amount |
|
R123221010 |
3% Cap Homestead |
0 |
|
R123221010 |
Homestead |
1,000 |
| Property Deed Transaction History (Recorded in the County Clerk's Office) | ||||||||||
|---|---|---|---|---|---|---|---|---|---|---|
| Date | Type | Book | Page | Price | Grantor | Grantee | ||||
|
8/31/2010 |
|
Deeds |
$120,000 |
NIZZA AMBER NICOLE |
SARMIENTO IRMA |
|||||
|
11/19/2004 |
|
Deeds |
$106,000 |
SMITH DARRYL C SMITH NITA A |
NIZZA AMBER NICOLE |
|||||
|
8/29/2003 |
|
Deeds |
$90,000 |
FILLMORE DANNY R & RAMONA D |
SMITH DARRYL C SMITH NITA A |
|||||
|
11/29/1999 |
|
Deeds |
$78,000 |
SELLS LARRY L |
FILLMORE DANNY R & RAMONA D |
|||||
|
10/13/1994 |
|
Historical |
$70,500 |
SCHIMMELS CHARLES JR & LEISA |
SELLS LARRY L |
|||||
| Last Mailed Notice of Value (N.O.V.) Information/History | ||||||||
|---|---|---|---|---|---|---|---|---|
| Year | Date | Market Value | Taxable Market Value | Gross Assessed | Exemption | Net Assessed | ||
|
2026 |
02/23/2026 |
202,500 |
146,866 |
16,154 |
1,000 |
15,154 |
||
|
2025 |
02/14/2025 |
200,500 |
142,589 |
15,683 |
1,000 |
14,683 |
||
|
2024 |
02/13/2024 |
192,000 |
138,436 |
15,227 |
1,000 |
14,227 |
||
|
2023 |
02/14/2023 |
179,500 |
134,404 |
14,783 |
1,000 |
13,783 |
||
|
2022 |
03/15/2022 |
146,000 |
130,490 |
14,353 |
1,000 |
13,353 |
||
| Property Building Permit History | |||||||||||
|---|---|---|---|---|---|---|---|---|---|---|---|
| Issued | Permit # | Provided by | Bldg # | Description | Est Construction Cost | Status | |||||
| No Building Permit records returned. | |||||||||||
| Click button on building number to access detailed information: | ||||||
|---|---|---|---|---|---|---|
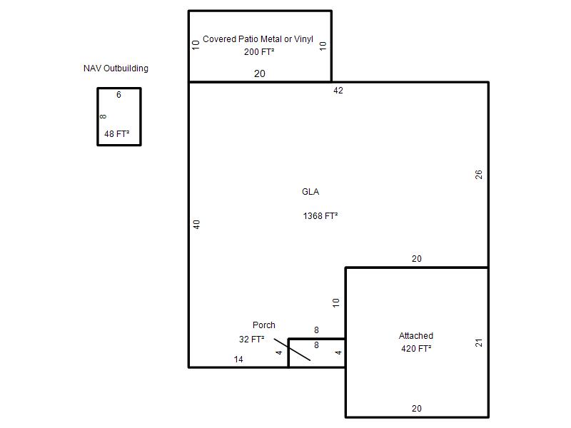
| Bldg # | Vacant/Improved Land | Bldg Description | Year Built | SqFt | # Stories | |
|
1 |
Improved |
Ranch 1 Story |
1988 |
1,368 |
1 Stories |
|