|
|
|
| Larry Stein Oklahoma County Assessor (405) 713-1200 - Public Access System |
|
|
|
|
|
|
| Real Property Display - Screen Produced 4/2/2026 10:30:51 PM | ||||
|---|---|---|---|---|
| Account: R123223150 | Type: Residential | Location: |
8117 TURTLE DOVE DR |
|
| Building Name/Occupant: |
|
OKLAHOMA CITY |
||
| Owner Name 1: | HOME SFR BORROWER LLC |
Parcel PIN#: |
3927-12-322-3150 |
|
| Owner Name 2: | 1/4 section #: |
3927 |
||
| Owner Name 3: | C/O HAVENBROOK HOMES | Parent Acct: |
|
|
| Billing Address: | PO BOX 31236 | Tax District: |
|
|
| City, State, Zip | SALT LAKE CITY, UT 84131-0236 | School System: |
Putnam City #1 |
|
|
Country: (If noted) |
UNITED STATES |
Land Size: |
0.1937 Acres |
|
|
Land Value: 43,867 |
|
|||
|
Sect 32-T13N-R4W Qtr SW |
WILSHIRE RIDGE
Block
008
Lot
017
|
|||
| Full Legal Description: WILSHIRE RIDGE 008 017 |
| Photo & Sketch (if available) | Comp Sales (ordered by relevancy) |
|
||||||||||||||||||
|
||||||||||||||||||||
| Value History (*The County Treasurer 405-713-1300 posts & collects actual tax amounts. Contact information HERE) | |||||||||||||
|---|---|---|---|---|---|---|---|---|---|---|---|---|---|
| Year | Market Value | Taxable Mkt Value | Gross Assessed | Exemption | Net Assessed | Millage | Est. Tax | Tax Savings | |||||
|
2026 |
236,500 |
194,311 |
21,373 |
0 |
21,373 |
123.17 |
$2,633 |
$572 |
|||||
|
2025 |
234,500 |
185,059 |
20,356 |
0 |
20,356 |
123.17 |
$2,507 |
$670 |
|||||
|
2024 |
225,500 |
176,247 |
19,387 |
0 |
19,387 |
122.30 |
$2,371 |
$663 |
|||||
|
2023 |
210,500 |
167,855 |
18,463 |
0 |
18,463 |
121.91 |
$2,251 |
$572 |
|||||
|
2022 |
171,000 |
159,862 |
17,584 |
0 |
17,584 |
123.41 |
$2,170 |
$151 |
|||||
| Property Account Status/Adjustments/Exemptions | ||
|---|---|---|
| Account # | Exemption Description | Amount |
|
R123223150 |
5% Capped Account |
0 |
| Property Deed Transaction History (Recorded in the County Clerk's Office) | ||||||||||
|---|---|---|---|---|---|---|---|---|---|---|
| Date | Type | Book | Page | Price | Grantor | Grantee | ||||
|
9/26/2016 |
|
Hmstd Off & |
$0 |
PREP 6 LLC |
HOME SFR BORROWER LLC |
|||||
|
12/16/2014 |
|
Deeds |
$127,500 |
MATHEW SHINES A & MERYLY |
PREP 6 LLC |
|||||
|
1/11/2010 |
|
Deeds |
$0 |
ONEAL DAVE J & AMBER S |
ONEAL DAVE J |
|||||
|
1/11/2010 |
|
Deeds |
$112,000 |
ONEAL DAVE J |
MATHEW SHINES A & MERYLY |
|||||
|
11/23/2005 |
|
Deeds |
$128,000 |
BRACKENBURY TIM & SHAWNA |
ONEAL DAVE J & AMBER S |
|||||
| Last Mailed Notice of Value (N.O.V.) Information/History | ||||||||
|---|---|---|---|---|---|---|---|---|
| Year | Date | Market Value | Taxable Market Value | Gross Assessed | Exemption | Net Assessed | ||
|
2026 |
02/23/2026 |
236,500 |
194,311 |
21,373 |
0 |
21,373 |
||
|
2026 |
03/30/2026 |
236,500 |
194,311 |
21,373 |
0 |
21,373 |
||
|
2025 |
02/14/2025 |
234,500 |
185,059 |
20,356 |
0 |
20,356 |
||
|
2024 |
02/13/2024 |
225,500 |
176,247 |
19,387 |
0 |
19,387 |
||
|
2023 |
02/14/2023 |
210,500 |
167,855 |
18,463 |
0 |
18,463 |
||
| Property Building Permit History | |||||||||||
|---|---|---|---|---|---|---|---|---|---|---|---|
| Issued | Permit # | Provided by | Bldg # | Description | Est Construction Cost | Status | |||||
| No Building Permit records returned. | |||||||||||
| Click button on building number to access detailed information: | ||||||
|---|---|---|---|---|---|---|
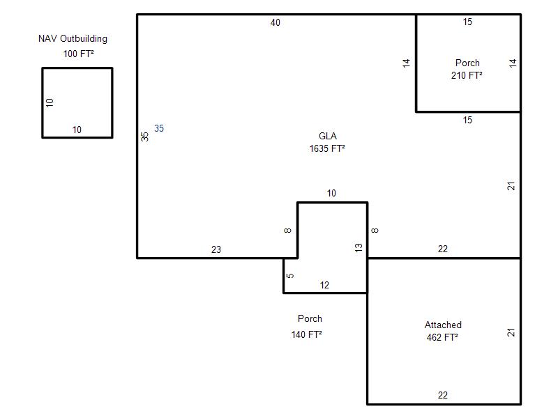
| Bldg # | Vacant/Improved Land | Bldg Description | Year Built | SqFt | # Stories | |
|
1 |
Improved |
Ranch 1 Story |
1987 |
1,635 |
1 Stories |
|