|
|
|
| Larry Stein Oklahoma County Assessor (405) 713-1200 - Public Access System |
|
|
|
|
|
|
| Real Property Display - Screen Produced 4/1/2026 6:40:13 AM | ||||
|---|---|---|---|---|
| Account: R149041370 | Type: Residential | Location: |
9017 ROLLING GREEN AVE |
|
| Building Name/Occupant: |
|
OKLAHOMA CITY |
||
| Owner Name 1: | HARRELL DOROTHY M |
Parcel PIN#: |
3932-14-904-1370 |
|
| Owner Name 2: | 1/4 section #: |
3932 |
||
| Owner Name 3: | Parent Acct: |
|
||
| Billing Address: | 9017 ROLLING GREEN AVE | Tax District: |
|
|
| City, State, Zip | OKLAHOMA CITY, OK 73132-2054 | School System: |
Putnam City #1 |
|
|
Country: (If noted) |
Land Size: |
0.2089 Acres |
||
|
Land Value: 42,770 |
|
|||
|
Sect 33-T13N-R4W Qtr NW |
REPLAT BLK 2 ROCKKNOLL
Block
025
Lot
006
|
|||
| Full Legal Description: REPLAT BLK 2 ROCKKNOLL 025 006 |
| Photo & Sketch (if available) | Comp Sales (ordered by relevancy) |
|
||||||||||||||||||
|
||||||||||||||||||||
| Value History (*The County Treasurer 405-713-1300 posts & collects actual tax amounts. Contact information HERE) | |||||||||||||
|---|---|---|---|---|---|---|---|---|---|---|---|---|---|
| Year | Market Value | Taxable Mkt Value | Gross Assessed | Exemption | Net Assessed | Millage | Est. Tax | Tax Savings | |||||
|
2026 |
230,500 |
127,810 |
14,059 |
1,000 |
13,059 |
123.17 |
$1,608 |
$1,514 |
|||||
|
2025 |
230,500 |
127,810 |
14,059 |
1,000 |
13,059 |
123.17 |
$1,608 |
$1,514 |
|||||
|
2024 |
227,000 |
127,810 |
14,059 |
1,000 |
13,059 |
122.30 |
$1,597 |
$1,457 |
|||||
|
2023 |
208,500 |
127,810 |
14,059 |
1,000 |
13,059 |
121.91 |
$1,592 |
$1,204 |
|||||
|
2022 |
173,000 |
127,810 |
14,059 |
1,000 |
13,059 |
123.41 |
$1,612 |
$737 |
|||||
| Property Account Status/Adjustments/Exemptions | ||
|---|---|---|
| Account # | Exemption Description | Amount |
|
R149041370 |
Freeze Senior Valuation |
0 |
|
R149041370 |
3% Cap Homestead |
0 |
|
R149041370 |
Homestead |
1,000 |
| Property Deed Transaction History (Recorded in the County Clerk's Office) | |||||||
|---|---|---|---|---|---|---|---|
| Date | Type | Book | Page | Price | Grantor | Grantee | |
|
6/13/2005 |
|
Deeds |
$0 |
HARRELL MIKE E & DOROTHY M |
HARRELL DOROTHY M |
||
|
9/1/1977 |
|
Historical |
$0 |
|
HARRELL MIKE E & DOROTHY M |
||
| Last Mailed Notice of Value (N.O.V.) Information/History | ||||||||
|---|---|---|---|---|---|---|---|---|
| Year | Date | Market Value | Taxable Market Value | Gross Assessed | Exemption | Net Assessed | ||
|
2025 |
02/14/2025 |
230,500 |
127,810 |
14,059 |
1,000 |
13,059 |
||
|
2024 |
02/13/2024 |
227,000 |
127,810 |
14,059 |
1,000 |
13,059 |
||
|
2023 |
02/14/2023 |
208,500 |
127,810 |
14,059 |
1,000 |
13,059 |
||
|
2022 |
03/15/2022 |
173,000 |
127,810 |
14,059 |
1,000 |
13,059 |
||
|
2021 |
03/19/2021 |
154,500 |
127,810 |
14,059 |
1,000 |
13,059 |
||
| Property Building Permit History | |||||||||||
|---|---|---|---|---|---|---|---|---|---|---|---|
| Issued | Permit # | Provided by | Bldg # | Description | Est Construction Cost | Status | |||||
| No Building Permit records returned. | |||||||||||
| Click button on building number to access detailed information: | ||||||
|---|---|---|---|---|---|---|
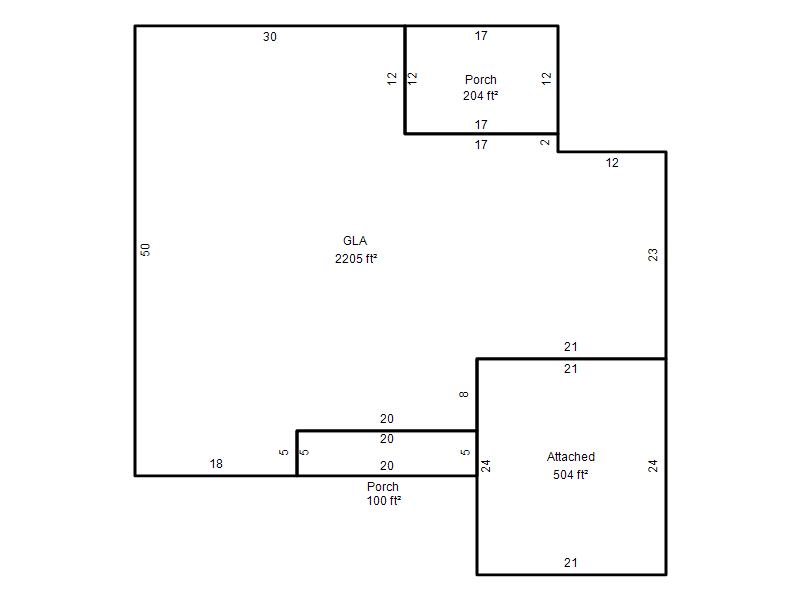
| Bldg # | Vacant/Improved Land | Bldg Description | Year Built | SqFt | # Stories | |
|
1 |
Improved |
Ranch 1 Story |
1977 |
2,205 |
1 Stories |
|