|
|
|
| Larry Stein Oklahoma County Assessor (405) 713-1200 - Public Access System |
|
|
|
|
|
|
| Real Property Display - Screen Produced 4/2/2026 7:31:50 AM | ||||
|---|---|---|---|---|
| Account: R144811375 | Type: Residential | Location: |
5740 MELTON DR |
|
| Building Name/Occupant: |
|
OKLAHOMA CITY |
||
| Owner Name 1: | NEWJACK PROPERTIES LLC |
Parcel PIN#: |
3935-14-481-1375 |
|
| Owner Name 2: | 1/4 section #: |
3935 |
||
| Owner Name 3: | Parent Acct: |
|
||
| Billing Address: | 5740 MELTON DR | Tax District: |
|
|
| City, State, Zip | OKLAHOMA CITY, OK 73132-4931 | School System: |
Putnam City #1 |
|
|
Country: (If noted) |
Land Size: |
0.1928 Acres |
||
|
Land Value: 37,380 |
|
|||
|
Sect 34-T13N-R4W Qtr SW |
LAKESHORE ESTATES
Block
002
Lot
004
|
|||
| Full Legal Description: LAKESHORE ESTATES 002 004 |
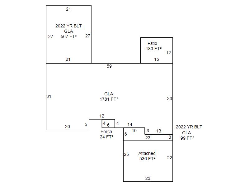
| Photo & Sketch (if available) | Comp Sales (ordered by relevancy) |
|
||||||||||||||||||
|
||||||||||||||||||||
| Value History (*The County Treasurer 405-713-1300 posts & collects actual tax amounts. Contact information HERE) | |||||||||||||
|---|---|---|---|---|---|---|---|---|---|---|---|---|---|
| Year | Market Value | Taxable Mkt Value | Gross Assessed | Exemption | Net Assessed | Millage | Est. Tax | Tax Savings | |||||
|
2026 |
339,500 |
339,500 |
37,345 |
0 |
37,345 |
123.17 |
$4,600 |
$0 |
|||||
|
2025 |
346,000 |
346,000 |
38,060 |
0 |
38,060 |
123.17 |
$4,688 |
$0 |
|||||
|
2024 |
342,000 |
342,000 |
37,620 |
0 |
37,620 |
122.30 |
$4,601 |
$0 |
|||||
|
2023 |
46,285 |
46,285 |
5,091 |
0 |
5,091 |
121.91 |
$621 |
$0 |
|||||
|
2022 |
151,000 |
145,425 |
15,996 |
0 |
15,996 |
123.41 |
$1,974 |
$76 |
|||||
| Property Account Status/Adjustments/Exemptions | ||
|---|---|---|
| Account # | Exemption Description | Amount |
|
R144811375 |
5% Capped Account |
0 |
| Property Deed Transaction History (Recorded in the County Clerk's Office) | |||||||
|---|---|---|---|---|---|---|---|
| Date | Type | Book | Page | Price | Grantor | Grantee | |
|
1/2/2008 |
|
Hmstd Off & |
$0 |
FITZGERALD JAMIE ZENKER |
NEWJACK PROPERTIES LLC |
||
|
5/10/1994 |
|
Historical |
$73,000 |
FITZGERALD JERRY B & RITA L |
FITZGERALD JAMIE ZENKER |
||
|
11/11/1911 |
|
Historical |
$0 |
|
FITZGERALD JERRY B & RITA L |
||
| Last Mailed Notice of Value (N.O.V.) Information/History | ||||||||
|---|---|---|---|---|---|---|---|---|
| Year | Date | Market Value | Taxable Market Value | Gross Assessed | Exemption | Net Assessed | ||
|
2025 |
02/14/2025 |
346,000 |
346,000 |
38,060 |
0 |
38,060 |
||
|
2024 |
03/01/2024 |
342,000 |
342,000 |
37,620 |
0 |
37,620 |
||
|
2022 |
03/15/2022 |
151,000 |
145,425 |
15,996 |
0 |
15,996 |
||
|
2021 |
03/19/2021 |
138,500 |
138,500 |
15,235 |
0 |
15,235 |
||
|
2019 |
04/02/2019 |
139,500 |
138,075 |
15,189 |
0 |
15,189 |
||
| Property Building Permit History | ||||||
|---|---|---|---|---|---|---|
| Issued | Permit # | Provided by | Bldg # | Description | Est Construction Cost | Status |
|
1/3/2022 |
BLDR-2021-04759 |
|
1 |
Remodeled |
200,000 |
Inactive |
| Click button on building number to access detailed information: | ||||||
|---|---|---|---|---|---|---|
| Bldg # | Vacant/Improved Land | Bldg Description | Year Built | SqFt | # Stories | |
|
1 |
Improved |
Ranch 1 Story |
1967 |
2,447 |
1 Stories |
|