|
|
|
| Larry Stein Oklahoma County Assessor (405) 713-1200 - Public Access System |
|
|
|
|
|
|
| Real Property Display - Screen Produced 4/1/2026 7:39:37 AM | ||||
|---|---|---|---|---|
| Account: R107562300 | Type: Residential | Location: |
2916 FINCHLEY LN |
|
| Building Name/Occupant: |
|
OKLAHOMA CITY |
||
| Owner Name 1: | WHITLEY BEVERLY F TRS |
Parcel PIN#: |
3941-10-756-2300 |
|
| Owner Name 2: | WHITLEY BEVERLY F LIV TRUST | 1/4 section #: |
3941 |
|
| Owner Name 3: | Parent Acct: |
|
||
| Billing Address: | 2916 FINCHLEY LN | Tax District: |
|
|
| City, State, Zip | OKLAHOMA CITY, OK 73120-4317 | School System: |
Oklahoma City #89 |
|
|
Country: (If noted) |
Land Size: |
0.2755 Acres |
||
|
Land Value: 75,000 |
|
|||
|
Sect 36-T13N-R4W Qtr NE |
LAKEHURST
Block
009
Lot
003
|
|||
| Full Legal Description: LAKEHURST 009 003 |
| Photo & Sketch (if available) | Comp Sales (ordered by relevancy) |
|
||||||||||||||||||
|
||||||||||||||||||||
| Value History (*The County Treasurer 405-713-1300 posts & collects actual tax amounts. Contact information HERE) | |||||||||||||
|---|---|---|---|---|---|---|---|---|---|---|---|---|---|
| Year | Market Value | Taxable Mkt Value | Gross Assessed | Exemption | Net Assessed | Millage | Est. Tax | Tax Savings | |||||
|
2026 |
420,000 |
333,791 |
36,716 |
1,000 |
35,716 |
122.90 |
$4,390 |
$1,288 |
|||||
|
2025 |
420,500 |
324,069 |
35,647 |
1,000 |
34,647 |
122.90 |
$4,258 |
$1,427 |
|||||
|
2024 |
406,500 |
314,631 |
34,609 |
1,000 |
33,609 |
123.89 |
$4,164 |
$1,376 |
|||||
|
2023 |
413,000 |
305,467 |
33,600 |
1,000 |
32,600 |
122.82 |
$4,004 |
$1,576 |
|||||
|
2022 |
333,500 |
296,570 |
32,622 |
1,000 |
31,622 |
117.63 |
$3,720 |
$595 |
|||||
| Property Account Status/Adjustments/Exemptions | ||
|---|---|---|
| Account # | Exemption Description | Amount |
|
R107562300 |
Homestead |
1,000 |
|
R107562300 |
3% Cap Homestead |
0 |
| Property Deed Transaction History (Recorded in the County Clerk's Office) | ||||||||||
|---|---|---|---|---|---|---|---|---|---|---|
| Date | Type | Book | Page | Price | Grantor | Grantee | ||||
|
4/11/2003 |
|
Deeds |
$0 |
WHITLEY BEVERLY F TRS WHITLEY BEVERLY LIVING TRUST |
WHITLEY BEVERLY F |
|||||
|
4/11/2003 |
|
Deeds |
$0 |
WHITLEY BEVERLY F |
WHITLEY BEVERLY F TRS |
|||||
|
1/6/1999 |
|
Historical |
$0 |
WHITLEY BEVERLY F |
WHITLEY BEVERLY F TRS |
|||||
|
12/29/1998 |
|
Historical |
$0 |
WHITLEY BEVERLY F TRS |
WHITLEY BEVERLY F |
|||||
|
8/1/1997 |
|
Historical |
$0 |
WHITLEY BEVERLY FLANNERY |
WHITLEY BEVERLY F TRS |
|||||
| Last Mailed Notice of Value (N.O.V.) Information/History | ||||||||
|---|---|---|---|---|---|---|---|---|
| Year | Date | Market Value | Taxable Market Value | Gross Assessed | Exemption | Net Assessed | ||
|
2026 |
02/23/2026 |
420,000 |
333,791 |
36,716 |
1,000 |
35,716 |
||
|
2025 |
02/14/2025 |
420,500 |
324,069 |
35,647 |
1,000 |
34,647 |
||
|
2024 |
02/13/2024 |
406,500 |
314,631 |
34,609 |
1,000 |
33,609 |
||
|
2023 |
02/14/2023 |
413,000 |
305,467 |
33,600 |
1,000 |
32,600 |
||
|
2022 |
03/15/2022 |
333,500 |
296,570 |
32,622 |
1,000 |
31,622 |
||
| Property Building Permit History | |||||||||||
|---|---|---|---|---|---|---|---|---|---|---|---|
| Issued | Permit # | Provided by | Bldg # | Description | Est Construction Cost | Status | |||||
| No Building Permit records returned. | |||||||||||
| Click button on building number to access detailed information: | ||||||
|---|---|---|---|---|---|---|
| Bldg # | Vacant/Improved Land | Bldg Description | Year Built | SqFt | # Stories | |
|
1 |
Improved |
Ranch 1 Story |
1962 |
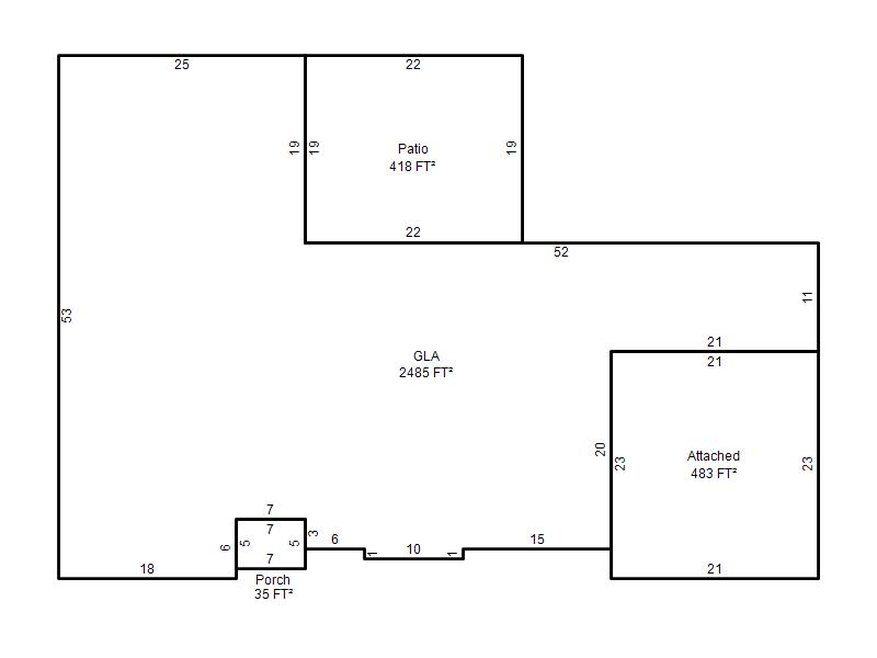
2,485 |
1 Stories |
|