|
|
|
| Larry Stein Oklahoma County Assessor (405) 713-1200 - Public Access System |
|
|
|
|
|
|
| Real Property Display - Screen Produced 4/1/2026 1:57:49 AM | ||||
|---|---|---|---|---|
| Account: R107562350 | Type: Residential | Location: |
3016 FINCHLEY LN |
|
| Building Name/Occupant: |
|
OKLAHOMA CITY |
||
| Owner Name 1: | STUART ROSS |
Parcel PIN#: |
3941-10-756-2350 |
|
| Owner Name 2: | STUART LAUREN | 1/4 section #: |
3941 |
|
| Owner Name 3: | Parent Acct: |
|
||
| Billing Address: | 3016 FINCHLEY LN | Tax District: |
|
|
| City, State, Zip | OKLAHOMA CITY, OK 73120 | School System: |
Oklahoma City #89 |
|
|
Country: (If noted) |
Land Size: |
0.2755 Acres |
||
|
Land Value: 75,000 |
|
|||
|
Sect 36-T13N-R4W Qtr NE |
LAKEHURST
Block
009
Lot
008
|
|||
| Full Legal Description: LAKEHURST 009 008 |
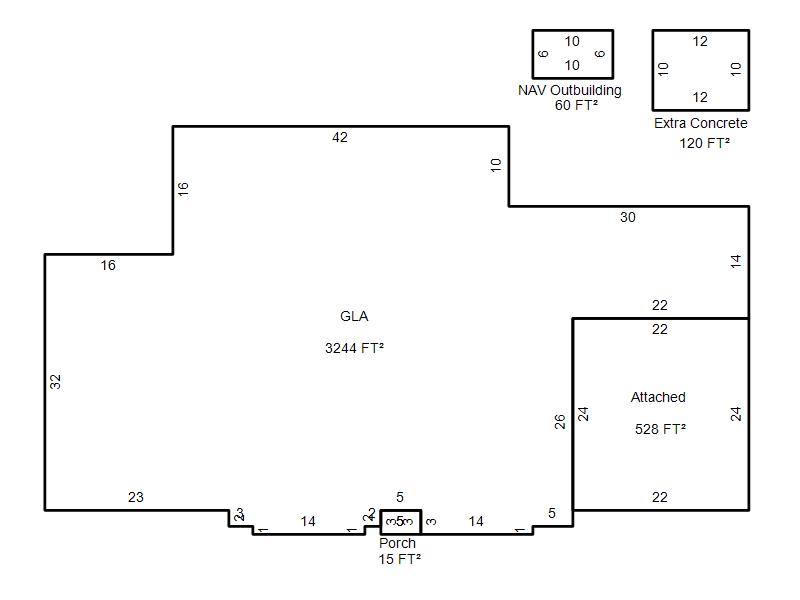
| Photo & Sketch (if available) | Comp Sales (ordered by relevancy) |
|
||||||||||||||||||
|
||||||||||||||||||||
| Value History (*The County Treasurer 405-713-1300 posts & collects actual tax amounts. Contact information HERE) | |||||||||||||
|---|---|---|---|---|---|---|---|---|---|---|---|---|---|
| Year | Market Value | Taxable Mkt Value | Gross Assessed | Exemption | Net Assessed | Millage | Est. Tax | Tax Savings | |||||
|
2026 |
651,000 |
643,176 |
70,749 |
0 |
70,749 |
122.90 |
$8,695 |
$106 |
|||||
|
2025 |
653,000 |
612,549 |
67,379 |
0 |
67,379 |
122.90 |
$8,281 |
$547 |
|||||
|
2024 |
632,500 |
583,380 |
64,171 |
0 |
64,171 |
123.89 |
$7,950 |
$669 |
|||||
|
2023 |
636,000 |
555,600 |
61,116 |
0 |
61,116 |
122.82 |
$7,506 |
$1,086 |
|||||
|
2022 |
502,000 |
502,000 |
55,220 |
0 |
55,220 |
117.63 |
$6,496 |
$0 |
|||||
| Property Account Status/Adjustments/Exemptions | ||
|---|---|---|
| Account # | Exemption Description | Amount |
|
R107562350 |
5% Capped Account |
0 |
| Property Deed Transaction History (Recorded in the County Clerk's Office) | |||||||
|---|---|---|---|---|---|---|---|
| Date | Type | Book | Page | Price | Grantor | Grantee | |
|
10/1/2020 |
|
Deeds |
$582,500 |
SMITH MARK WILLIAM |
STUART ROSS |
||
|
11/23/2015 |
|
Deeds |
$455,000 |
COOK JAMES B & SARA K |
SMITH MARK WILLIAM |
||
|
7/26/2006 |
|
Deeds |
$265,000 |
PIRRONG BARBARA |
COOK JAMES B & SARA K |
||
|
7/26/2006 |
|
Hmstd Off & |
$0 |
NICHOLS WM F & CHARLOTTE E |
COOK JAMES B & SARA K |
||
|
11/11/1911 |
|
Historical |
$0 |
|
NICHOLS WM F & CHARLOTTE E |
||
| Last Mailed Notice of Value (N.O.V.) Information/History | ||||||||
|---|---|---|---|---|---|---|---|---|
| Year | Date | Market Value | Taxable Market Value | Gross Assessed | Exemption | Net Assessed | ||
|
2026 |
03/30/2026 |
651,000 |
643,176 |
70,749 |
0 |
70,749 |
||
|
2025 |
02/14/2025 |
653,000 |
612,549 |
67,379 |
0 |
67,379 |
||
|
2024 |
02/13/2024 |
632,500 |
583,380 |
64,171 |
0 |
64,171 |
||
|
2023 |
03/02/2023 |
636,000 |
555,600 |
61,116 |
0 |
61,116 |
||
|
2021 |
03/19/2021 |
576,500 |
576,500 |
63,415 |
0 |
63,415 |
||
| Property Building Permit History | ||||||
|---|---|---|---|---|---|---|
| Issued | Permit # | Provided by | Bldg # | Description | Est Construction Cost | Status |
|
7/30/2025 |
BLDR-2025-02732 |
|
1 |
Remodeled |
120,000 |
Active |
|
8/3/2022 |
BLDR-2022--04690 |
|
1 |
Remodeled |
17,000 |
Inactive |
|
11/23/2015 |
10478668 |
OKLAHOMA CITY |
1 |
Remodeled |
7,000 |
Inactive |
| Click button on building number to access detailed information: | ||||||
|---|---|---|---|---|---|---|
| Bldg # | Vacant/Improved Land | Bldg Description | Year Built | SqFt | # Stories | |
|
1 |
Improved |
Ranch 1 Story |
1961 |
3,244 |
1 Stories |
|