|
|
|
| Larry Stein Oklahoma County Assessor (405) 713-1200 - Public Access System |
|
|
|
|
|
|
| Real Property Display - Screen Produced 4/4/2026 8:50:12 AM | ||||
|---|---|---|---|---|
| Account: R150291725 | Type: Commercial | Location: |
2000 S MIDWEST BLVD |
|
| Building Name/Occupant: |
SHEAR MAGIC SALON |
MIDWEST CITY |
||
| Owner Name 1: | CAMPBELL DOUGLAS |
Parcel PIN#: |
1444-15-029-1725 |
|
| Owner Name 2: | CAMPBELL MARTHA | 1/4 section #: |
1444 |
|
| Owner Name 3: | Parent Acct: |
|
||
| Billing Address: | 2000 S MIDWEST BLVD | Tax District: |
|
|
| City, State, Zip | MIDWEST CITY, OK 73110 | School System: |
Mid-Del #52 |
|
|
Country: (If noted) |
Land Size: |
19,714.0000 Square Feet |
||
|
Land Value: 207,293 |
|
|||
|
Sect 11-T11N-R2W Qtr NW |
GLENWOOD 6TH
Block
002
Lot
000
|
|||
| Full Legal Description: GLENWOOD 6TH 002 000 PT LOT 29 BEG NE/C LOT 29 TH S120FT TO N LINE LOT 3 BLK 2 GLENWOOD 6TH TH W134FT S93.46FT W76FT N213.38FT E210.10FT TO BEG EX E105FT |
| No comparable sales report available. | ||||||||||||||||||||||
|
||||||||||||||||||||||
| Value History (*The County Treasurer 405-713-1300 posts & collects actual tax amounts. Contact information HERE) | |||||||||||||
|---|---|---|---|---|---|---|---|---|---|---|---|---|---|
| Year | Market Value | Taxable Mkt Value | Gross Assessed | Exemption | Net Assessed | Millage | Est. Tax | Tax Savings | |||||
|
2026 |
296,966 |
76,873 |
8,455 |
0 |
8,455 |
119.58 |
$1,011 |
$2,895 |
|||||
|
2025 |
136,099 |
73,213 |
8,052 |
0 |
8,052 |
119.58 |
$963 |
$827 |
|||||
|
2024 |
136,099 |
69,727 |
7,669 |
0 |
7,669 |
122.51 |
$940 |
$894 |
|||||
|
2023 |
136,099 |
66,407 |
7,303 |
0 |
7,303 |
117.71 |
$860 |
$902 |
|||||
|
2022 |
136,099 |
63,245 |
6,956 |
0 |
6,956 |
116.64 |
$811 |
$935 |
|||||
| Property Account Status/Adjustments/Exemptions | ||
|---|---|---|
| Account # | Exemption Description | Amount |
|
R150291725 |
5% Capped Account |
0 |
| Property Deed Transaction History (Recorded in the County Clerk's Office) | |||||||
|---|---|---|---|---|---|---|---|
| Date | Type | Book | Page | Price | Grantor | Grantee | |
|
6/12/2020 |
|
Deeds |
$1,000 |
DEARING STEPHEN M |
CAMPBELL DOUGLAS |
||
|
10/9/2010 |
|
Deeds |
$0 |
DEARING KARLA DEARING TRUST |
DEARING STEPHEN M |
||
|
10/5/2004 |
|
Deeds |
$0 |
DEARING STEPHEN M & KARLA K |
DEARING STEPHEN M TRUDE KARLA DEARING TRUST |
||
|
5/1/1986 |
|
Historical |
$0 |
|
DEARING STEPHEN M & KARLA K |
||
| Last Mailed Notice of Value (N.O.V.) Information/History | ||||||||
|---|---|---|---|---|---|---|---|---|
| Year | Date | Market Value | Taxable Market Value | Gross Assessed | Exemption | Net Assessed | ||
|
2026 |
03/23/2026 |
296,966 |
76,873 |
8,455 |
0 |
8,455 |
||
|
2025 |
03/14/2025 |
136,099 |
73,213 |
8,052 |
0 |
8,052 |
||
|
2024 |
03/12/2024 |
136,099 |
69,727 |
7,669 |
0 |
7,669 |
||
|
2023 |
03/13/2023 |
136,099 |
66,407 |
7,303 |
0 |
7,303 |
||
|
2022 |
03/09/2022 |
136,099 |
63,245 |
6,956 |
0 |
6,956 |
||
| Property Building Permit History | |||||||||||
|---|---|---|---|---|---|---|---|---|---|---|---|
| Issued | Permit # | Provided by | Bldg # | Description | Est Construction Cost | Status | |||||
| No Building Permit records returned. | |||||||||||
| Click button on building number to access detailed information: | ||||||
|---|---|---|---|---|---|---|
| Bldg # | Vacant/Improved Land | Bldg Description | Year Built | SqFt | # Stories | |
|
1 |
Improved |
Retail Store |
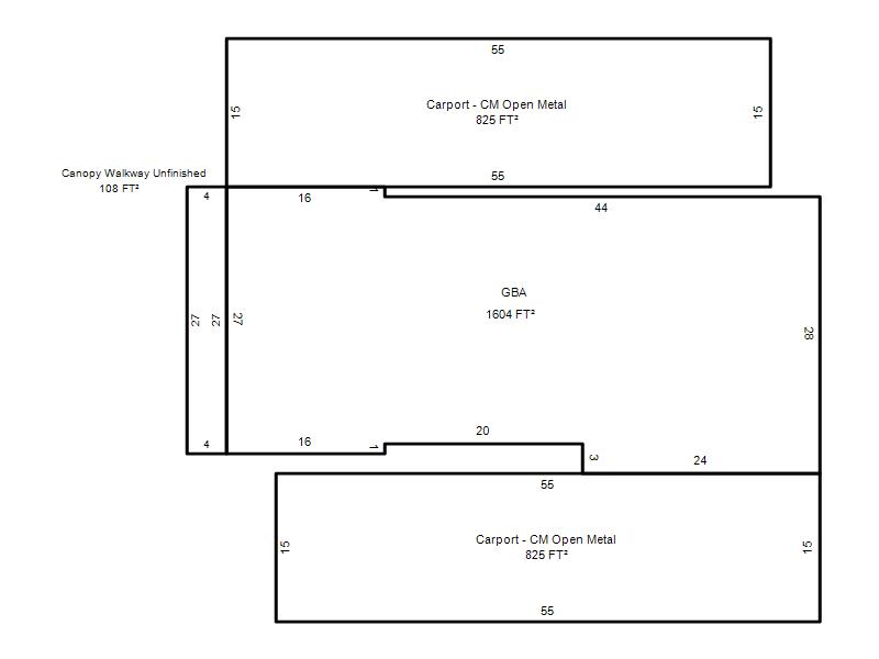
1959 |
1,604 |
1 Stories |
|