|
|
|
| Larry Stein Oklahoma County Assessor (405) 713-1200 - Public Access System |
|
|
|
|
|
|
| Real Property Display - Screen Produced 4/3/2026 5:42:58 AM | ||||
|---|---|---|---|---|
| Account: R107563310 | Type: Residential | Location: |
3017 ELMHURST AVE |
|
| Building Name/Occupant: |
|
OKLAHOMA CITY |
||
| Owner Name 1: | REMMERT CHRISTOPHER SEAN & EMILY |
Parcel PIN#: |
3942-10-756-3310 |
|
| Owner Name 2: | 1/4 section #: |
3942 |
||
| Owner Name 3: | Parent Acct: |
|
||
| Billing Address: | 3017 ELMHURST AVE | Tax District: |
|
|
| City, State, Zip | OKLAHOMA CITY, OK 73120 | School System: |
Oklahoma City #89 |
|
|
Country: (If noted) |
Land Size: |
0.2755 Acres |
||
|
Land Value: 96,000 |
|
|||
|
Sect 36-T13N-R4W Qtr SE |
LAKEHURST
Block
015
Lot
015
|
|||
| Full Legal Description: LAKEHURST 015 015 |
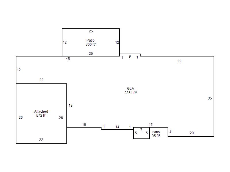
| Photo & Sketch (if available) | Comp Sales (ordered by relevancy) |
|
||||||||||||||||||
|
||||||||||||||||||||
| Value History (*The County Treasurer 405-713-1300 posts & collects actual tax amounts. Contact information HERE) | |||||||||||||
|---|---|---|---|---|---|---|---|---|---|---|---|---|---|
| Year | Market Value | Taxable Mkt Value | Gross Assessed | Exemption | Net Assessed | Millage | Est. Tax | Tax Savings | |||||
|
2026 |
563,500 |
444,498 |
48,894 |
1,000 |
47,894 |
122.90 |
$5,886 |
$1,732 |
|||||
|
2025 |
567,000 |
431,552 |
47,470 |
1,000 |
46,470 |
122.90 |
$5,711 |
$1,954 |
|||||
|
2024 |
543,000 |
418,983 |
46,087 |
1,000 |
45,087 |
123.89 |
$5,586 |
$1,814 |
|||||
|
2023 |
510,000 |
368,916 |
40,579 |
1,000 |
39,579 |
122.82 |
$4,861 |
$2,029 |
|||||
|
2022 |
421,000 |
358,171 |
39,397 |
1,000 |
38,397 |
117.63 |
$4,517 |
$931 |
|||||
| Property Account Status/Adjustments/Exemptions | ||
|---|---|---|
| Account # | Exemption Description | Amount |
|
R107563310 |
Homestead |
1,000 |
|
R107563310 |
3% Cap Homestead |
0 |
| Property Deed Transaction History (Recorded in the County Clerk's Office) | ||||||||||
|---|---|---|---|---|---|---|---|---|---|---|
| Date | Type | Book | Page | Price | Grantor | Grantee | ||||
|
12/10/2019 |
|
Deeds |
$0 |
REMMERT CHRISTOPHER SEAN |
REMMERT CHRISTOPHER SEAN & EMILY |
|||||
|
7/10/2013 |
|
Deeds |
$220,000 |
FUGITT THOMAS J |
REMMERT CHRISTOPHER SEAN |
|||||
|
11/7/2003 |
|
Deeds |
$0 |
AFFIDAVIT OF SUCCESSOR TRUSTEE |
FUGITT THOMAS J |
|||||
|
11/7/2003 |
|
Deeds |
$0 |
FUGITT MARY JANE LIV TRUST |
FUGITT THOMAS J |
|||||
|
11/7/2003 |
|
Deeds |
$0 |
MARY J FUGITT LIVING TRUST |
FUGITT THOMASJ |
|||||
| Last Mailed Notice of Value (N.O.V.) Information/History | ||||||||
|---|---|---|---|---|---|---|---|---|
| Year | Date | Market Value | Taxable Market Value | Gross Assessed | Exemption | Net Assessed | ||
|
2026 |
02/23/2026 |
563,500 |
444,498 |
48,894 |
1,000 |
47,894 |
||
|
2025 |
02/14/2025 |
567,000 |
431,552 |
47,470 |
1,000 |
46,470 |
||
|
2024 |
03/01/2024 |
543,000 |
418,983 |
46,087 |
1,000 |
45,087 |
||
|
2023 |
02/14/2023 |
510,000 |
368,916 |
40,579 |
1,000 |
39,579 |
||
|
2022 |
03/15/2022 |
421,000 |
358,171 |
39,397 |
1,000 |
38,397 |
||
| Property Building Permit History | ||||||
|---|---|---|---|---|---|---|
| Issued | Permit # | Provided by | Bldg # | Description | Est Construction Cost | Status |
|
2/1/2023 |
POOL-2022-00592 |
|
1 |
Swimming Pool |
127,706 |
Inactive |
|
9/16/2020 |
BLDR-2020-04261 |
|
1 |
Remodeled |
100,000 |
Inactive |
| Click button on building number to access detailed information: | ||||||
|---|---|---|---|---|---|---|
| Bldg # | Vacant/Improved Land | Bldg Description | Year Built | SqFt | # Stories | |
|
1 |
Improved |
Ranch 1 Story |
1963 |
2,351 |
1 Stories |
|