|
|
|
| Larry Stein Oklahoma County Assessor (405) 713-1200 - Public Access System |
|
|
|
|
|
|
| Real Property Display - Screen Produced 3/22/2026 7:24:45 AM | ||||
|---|---|---|---|---|
| Account: R120701460 | Type: Residential | Location: |
20005 N HARRAH RD |
|
| Building Name/Occupant: |
|
LUTHER |
||
| Owner Name 1: | GERRED EDWARD L JR |
Parcel PIN#: |
4089-12-070-1460 |
|
| Owner Name 2: | 1/4 section #: |
4089 |
||
| Owner Name 3: | Parent Acct: |
|
||
| Billing Address: | 2708 DOGWOOD DR | Tax District: |
|
|
| City, State, Zip | EDMOND, OK 73013-7914 | School System: |
Luther #3 |
|
|
Country: (If noted) |
Land Size: |
3.2600 Acres |
||
|
Land Value: 58,680 |
|
|||
|
Sect 23-T14N-R1E Qtr NE |
ROLLING MEADOWS WEST TO LUTHER
Block
000
Lot
047
|
|||
| Full Legal Description: ROLLING MEADOWS WEST TO LUTHER 000 047 |
| Photo & Sketch (if available) | Comp Sales (ordered by relevancy) |
|
||||||||||||||||||
|
||||||||||||||||||||
| Value History (*The County Treasurer 405-713-1300 posts & collects actual tax amounts. Contact information HERE) | |||||||||||||
|---|---|---|---|---|---|---|---|---|---|---|---|---|---|
| Year | Market Value | Taxable Mkt Value | Gross Assessed | Exemption | Net Assessed | Millage | Est. Tax | Tax Savings | |||||
|
2025 |
42,000 |
42,000 |
4,620 |
0 |
4,620 |
94.80 |
$438 |
$0 |
|||||
|
2024 |
42,000 |
42,000 |
4,620 |
0 |
4,620 |
95.02 |
$439 |
$0 |
|||||
|
2023 |
8,000 |
8,000 |
880 |
0 |
880 |
90.96 |
$80 |
$0 |
|||||
|
2022 |
8,000 |
8,000 |
880 |
0 |
880 |
91.07 |
$80 |
$0 |
|||||
|
2021 |
8,000 |
8,000 |
880 |
0 |
880 |
92.41 |
$81 |
$0 |
|||||
| Property Account Status/Adjustments/Exemptions | ||||||
|---|---|---|---|---|---|---|
| Account # | Exemption Description | Amount | ||||
| No adjustment/exemption records returned. | ||||||
| Property Deed Transaction History (Recorded in the County Clerk's Office) | ||||||||||
|---|---|---|---|---|---|---|---|---|---|---|
| Date | Type | Book | Page | Price | Grantor | Grantee | ||||
|
6/30/2025 |
|
Deeds |
$85,000 |
STEFANY FREDERICK NELSON |
GERRED EDWARD L JR |
|||||
|
6/13/2023 |
|
Deeds |
$42,000 |
CROUSE DANNA |
STEFANY FREDERICK NELSON |
|||||
|
3/18/2015 |
|
Hmstd Off & |
$0 |
CROUSE DANNA SIMPSON JASON |
CROUSE DANNA |
|||||
|
3/2/2012 |
|
Deeds |
$8,000 |
PEARSON RODNEY J |
CROUSE DANNA SIMPSON JASON |
|||||
|
6/13/2009 |
|
Deeds |
$6,000 |
NEARMAN MARCUS R & HEATHER E |
PEARSON RODNEY J |
|||||
| Last Mailed Notice of Value (N.O.V.) Information/History | ||||||
|---|---|---|---|---|---|---|
| Year | Date | Market Value | Taxable Market Value | Gross Assessed | Exemption | Net Assessed |
|
2024 |
01/22/2024 |
42,000 |
42,000 |
4,620 |
0 |
4,620 |
|
2011 |
04/01/2011 |
10,823 |
9,711 |
1,068 |
0 |
1,068 |
| Property Building Permit History | ||||||
|---|---|---|---|---|---|---|
| Issued | Permit # | Provided by | Bldg # | Description | Est Construction Cost | Status |
|
7/22/2025 |
|
|
|
Main Dwellin |
|
Inactive |
| Click button on building number to access detailed information: | ||||||
|---|---|---|---|---|---|---|
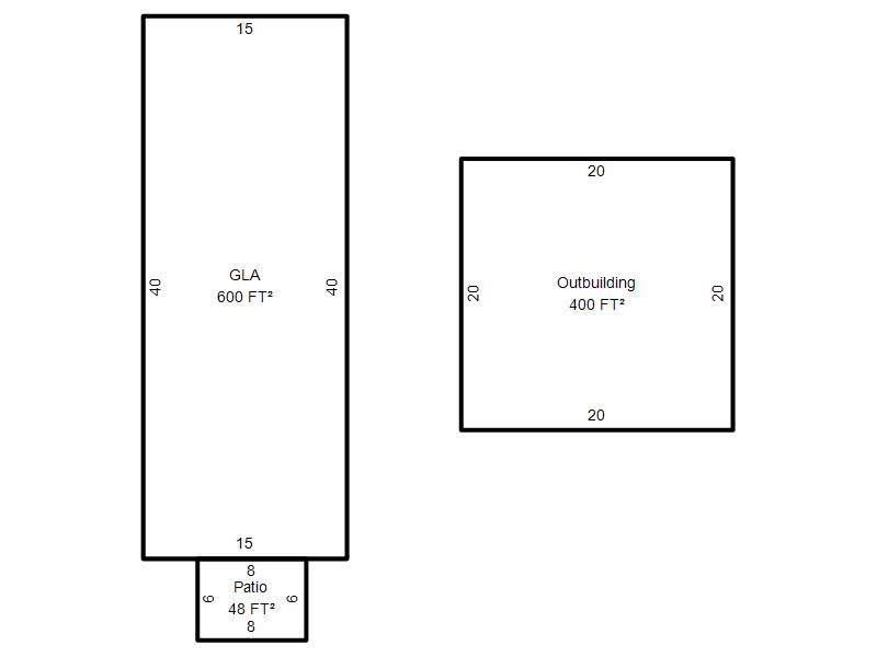
| Bldg # | Vacant/Improved Land | Bldg Description | Year Built | SqFt | # Stories | |
|
1 |
Improved |
Modular |
2024 |
600 |
1 Stories |
|