|
|
|
| Larry Stein Oklahoma County Assessor (405) 713-1200 - Public Access System |
|
|
|
|
|
|
| Real Property Display - Screen Produced 3/20/2026 5:06:48 AM | ||||
|---|---|---|---|---|
| Account: R185311800 | Type: Residential | Location: |
507 S CEDAR ST |
|
| Building Name/Occupant: |
|
LUTHER |
||
| Owner Name 1: | SALES WILLIAM A & ASHLI |
Parcel PIN#: |
4107-18-531-1800 |
|
| Owner Name 2: | 1/4 section #: |
4107 |
||
| Owner Name 3: | Parent Acct: |
|
||
| Billing Address: | 507 S CEDAR ST | Tax District: |
|
|
| City, State, Zip | LUTHER, OK 73054 | School System: |
Luther #3 |
|
|
Country: (If noted) |
UNITED STATES |
Land Size: |
0.5078 Acres |
|
|
Land Value: 33,876 |
|
|||
|
Sect 27-T14N-R1E Qtr SW |
CHAMBERLAINS ADDITION
Block
006
Lot
000
|
|||
| Full Legal Description: CHAMBERLAINS ADDITION 006 000 LOTS 1 THRU 6 & N8FT LOT 7 |
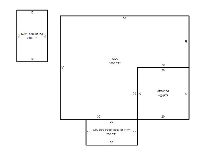
| Photo & Sketch (if available) | Comp Sales (ordered by relevancy) |
|
||||||||||||||||||
|
||||||||||||||||||||
| Value History (*The County Treasurer 405-713-1300 posts & collects actual tax amounts. Contact information HERE) | |||||||||||||
|---|---|---|---|---|---|---|---|---|---|---|---|---|---|
| Year | Market Value | Taxable Mkt Value | Gross Assessed | Exemption | Net Assessed | Millage | Est. Tax | Tax Savings | |||||
|
2025 |
235,000 |
143,082 |
15,738 |
1,000 |
14,738 |
94.80 |
$1,397 |
$1,053 |
|||||
|
2024 |
234,000 |
138,915 |
15,280 |
0 |
15,280 |
95.02 |
$1,452 |
$994 |
|||||
|
2023 |
211,000 |
132,300 |
14,553 |
0 |
14,553 |
90.96 |
$1,324 |
$787 |
|||||
|
2022 |
181,500 |
126,000 |
13,860 |
0 |
13,860 |
91.07 |
$1,262 |
$556 |
|||||
|
2021 |
120,000 |
120,000 |
13,200 |
0 |
13,200 |
92.41 |
$1,220 |
$0 |
|||||
| Property Account Status/Adjustments/Exemptions | ||
|---|---|---|
| Account # | Exemption Description | Amount |
|
R185311800 |
Homestead |
1,000 |
|
R185311800 |
3% Cap Homestead |
0 |
| Property Deed Transaction History (Recorded in the County Clerk's Office) | |||||||
|---|---|---|---|---|---|---|---|
| Date | Type | Book | Page | Price | Grantor | Grantee | |
|
12/13/2019 |
|
Deeds |
$120,000 |
RING JEREMY BIRL |
SALES WILLIAM A & ASHLI |
||
|
4/27/2010 |
|
Deeds |
$20,000 |
FERRIS BOBBY R & KAY F |
RING JEREMY BIRL |
||
|
11/1/1972 |
|
Historical |
$0 |
|
FERRIS BOBBY R & KAY F |
||
| Last Mailed Notice of Value (N.O.V.) Information/History | ||||||||
|---|---|---|---|---|---|---|---|---|
| Year | Date | Market Value | Taxable Market Value | Gross Assessed | Exemption | Net Assessed | ||
|
2026 |
02/06/2026 |
239,000 |
147,374 |
16,211 |
1,000 |
15,211 |
||
|
2025 |
01/31/2025 |
235,000 |
145,860 |
16,044 |
0 |
16,044 |
||
|
2024 |
01/22/2024 |
234,000 |
138,915 |
15,280 |
0 |
15,280 |
||
|
2023 |
01/23/2023 |
211,000 |
132,300 |
14,553 |
0 |
14,553 |
||
|
2022 |
02/22/2022 |
181,500 |
126,000 |
13,860 |
0 |
13,860 |
||
| Property Building Permit History | ||||||
|---|---|---|---|---|---|---|
| Issued | Permit # | Provided by | Bldg # | Description | Est Construction Cost | Status |
|
7/28/2005 |
10309799 |
LUTHER |
1 |
Demolish |
0 |
Inactive |
| Click button on building number to access detailed information: | ||||||
|---|---|---|---|---|---|---|
| Bldg # | Vacant/Improved Land | Bldg Description | Year Built | SqFt | # Stories | |
|
1 |
Improved |
Ranch 1 Story |
2019 |
1,600 |
1 Stories |
|