|
|
|
| Larry Stein Oklahoma County Assessor (405) 713-1200 - Public Access System |
|
|
|
|
|
|
| Real Property Display - Screen Produced 3/14/2026 8:01:41 AM | ||||
|---|---|---|---|---|
| Account: R191521760 | Type: Residential | Location: |
16770 TOPEKA LN |
|
| Building Name/Occupant: |
|
CHOCTAW |
||
| Owner Name 1: | PRATER DARREN J |
Parcel PIN#: |
1069-19-152-1760 |
|
| Owner Name 2: | PRATER SAUNDRA J | 1/4 section #: |
1069 |
|
| Owner Name 3: | Parent Acct: |
|
||
| Billing Address: | 16770 TOPEKA LN | Tax District: |
|
|
| City, State, Zip | CHOCTAW, OK 73020-5919 | School System: |
Choctaw #4 |
|
|
Country: (If noted) |
Land Size: |
1.0300 Acres |
||
|
Land Value: 38,110 |
|
|||
|
Sect 18-T11N-R1E Qtr NE |
RAILHEAD ESTATES
Block
005
Lot
008
|
|||
| Full Legal Description: RAILHEAD ESTATES BLK 005 LOT 008 |
| Photo & Sketch (if available) | Comp Sales (ordered by relevancy) |
|
||||||||||||||||||
|
||||||||||||||||||||
| Value History (*The County Treasurer 405-713-1300 posts & collects actual tax amounts. Contact information HERE) | |||||||||||||
|---|---|---|---|---|---|---|---|---|---|---|---|---|---|
| Year | Market Value | Taxable Mkt Value | Gross Assessed | Exemption | Net Assessed | Millage | Est. Tax | Tax Savings | |||||
|
2025 |
250,500 |
169,387 |
18,631 |
1,000 |
17,631 |
117.21 |
$2,067 |
$1,163 |
|||||
|
2024 |
235,500 |
164,454 |
18,089 |
1,000 |
17,089 |
116.35 |
$1,988 |
$1,026 |
|||||
|
2023 |
227,000 |
159,665 |
17,562 |
1,000 |
16,562 |
118.06 |
$1,955 |
$993 |
|||||
|
2022 |
187,000 |
155,015 |
17,051 |
1,000 |
16,051 |
116.14 |
$1,864 |
$525 |
|||||
|
2021 |
150,500 |
150,500 |
16,555 |
1,000 |
15,555 |
116.17 |
$1,807 |
$116 |
|||||
| Property Account Status/Adjustments/Exemptions | ||
|---|---|---|
| Account # | Exemption Description | Amount |
|
R191521760 |
Homestead |
1,000 |
|
R191521760 |
3% Cap Homestead |
0 |
| Property Deed Transaction History (Recorded in the County Clerk's Office) | ||||||||||
|---|---|---|---|---|---|---|---|---|---|---|
| Date | Type | Book | Page | Price | Grantor | Grantee | ||||
|
4/25/2000 |
|
Deeds |
$98,000 |
BANKERS TRUST COMPANY OF CA NA TRS AMERICAN HOUSING TRUST XI |
PRATER DARREN J |
|||||
|
8/3/1999 |
|
Other |
$0 |
PARNELL WILLIAM D & SUSAN M |
BANKERS TRUST COMPANY OF CA NA TRS |
|||||
|
9/26/1991 |
|
Historical |
$0 |
SECRETARY OF VETERANS AFFAIRS |
PARNELL WILLIAM D & SUSAN M |
|||||
|
6/13/1991 |
|
Historical |
$0 |
RANDEL MARK HARVEY & LORNA L |
SECRETARY OF VETERANS AFFAIRS |
|||||
|
5/25/1989 |
|
Historical |
$0 |
LIPTAK EMIL S & DEBORAH A |
RANDEL MARK HARVEY & LORNA L |
|||||
| Last Mailed Notice of Value (N.O.V.) Information/History | ||||||||
|---|---|---|---|---|---|---|---|---|
| Year | Date | Market Value | Taxable Market Value | Gross Assessed | Exemption | Net Assessed | ||
|
2026 |
02/06/2026 |
236,500 |
174,468 |
19,190 |
1,000 |
18,190 |
||
|
2025 |
01/31/2025 |
250,500 |
169,387 |
18,631 |
1,000 |
17,631 |
||
|
2024 |
01/22/2024 |
235,500 |
164,454 |
18,089 |
1,000 |
17,089 |
||
|
2023 |
01/23/2023 |
227,000 |
159,665 |
17,562 |
1,000 |
16,562 |
||
|
2022 |
02/22/2022 |
187,000 |
155,015 |
17,051 |
1,000 |
16,051 |
||
| Property Building Permit History | |||||||||||
|---|---|---|---|---|---|---|---|---|---|---|---|
| Issued | Permit # | Provided by | Bldg # | Description | Est Construction Cost | Status | |||||
| No Building Permit records returned. | |||||||||||
| Click button on building number to access detailed information: | ||||||
|---|---|---|---|---|---|---|
| Bldg # | Vacant/Improved Land | Bldg Description | Year Built | SqFt | # Stories | |
|
1 |
Improved |
Ranch 1 Story |
1981 |
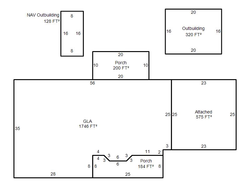
1,746 |
1 Stories |
|