Larry Stein Oklahoma County Assessor (405) 713-1200 - Public Access System
Home Contact Us Guest Book Map Search New Search
Real Property Display - Screen Produced   4/27/2026 3:31:20 PM 
Account: R267025035  Type: Residential

  

Location:

1300 ROLLING HILLS DR

Building Name/Occupant:

 

UNINCORPORATED

Owner Name 1:  HARRISON PAULA TRS

Parcel PIN#:

1007-26-702-5035

Owner Name 2:  HARRISON PAULA LIVING TRUST 1/4 section #:

1007

Owner Name 3:    Parent Acct:

 

Billing Address:  1300 ROLLING HILLS DR Tax District:

City, State, Zip  HARRAH, OK  73045-6491 School System:

Harrah #7

Country: (If noted)

  

Land Size:

5.0000  Acres

Personal Property

Land Value: 48,775 

Treasurer:

Sect 2-T11N-R1E Qtr SW

 POTTAWATOMIE TOWNSHIP   Block 000  Lot 000   Subdivision Sales
 Full Legal Description:  POTTAWATOMIE TOWNSHIP PT SW4 & SE4 SEC 2 11N 1E BEG 715.10FT W & 500FT N & 280FT NELY OF SE/C SW4 TH E593FT NELY 176.01FT NWLY 500FT SWLY 205FT TO A CURVE TH SWLY ALONG CURVE 246.27FT TH SWLY 214.39FT TO BEG CONT 5ACRS MORE OR LESS SUBJ TO ESMTS OF RECORD AKA TR 16 ROLLING HILLS UNREC

NOTE:  The following sales may or may not be used to determine Fair Market Value

Photo & Sketch (if available) Sales  Sales Report

 18205 WHISPER CREEK DR UNINCORPORATED, OK

07/08/2025

 $325,000 

 16334 E RENO AVE CHOCTAW, OK

10/31/2025

 $400,000 

 21822 FAYE LN UNINCORPORATED, OK

02/01/2023

 $288,000 

 2507 FERGUSON DR UNINCORPORATED, OK

07/18/2025

 $352,500 

 19806 AARON DR UNINCORPORATED, OK

02/28/2025

 $240,000 

 18205 WHISPER CREEK DR UNINCORPORATED, OK

11/16/2023

 $312,000 

Value History  (*The County Treasurer 405-713-1300 posts & collects actual tax amounts.  Contact information  HERE)
Year Market Value Taxable Mkt Value Gross Assessed Exemption Net Assessed Millage Est. Tax Tax Savings

2026

384,500 

265,884 

29,246 

1,000 

28,246 

107.54 

$3,038 

$1,511 

2025

409,500 

258,140 

28,395 

1,000 

27,395 

107.54 

$2,946 

$1,898 

2024

410,500 

250,622 

27,567 

1,000 

26,567 

110.62 

$2,939 

$2,056 

[1/10]
Property Account Status/Adjustments/Exemptions
Account # Exemption Description Amount

R267025035

3% Cap Homestead

R267025035

Homestead

1,000 

Property Deed Transaction History   (Recorded in the County Clerk's Office)
Date Type Book Page Price Grantor Grantee

3/10/2015

Deeds

12781

549

 $0 

JARVIS KENDRA D & NEAL

HARRISON PAULA

3/10/2015

Deeds

12781

551

 $0 

HARRISON PAULA

HARRISON PAULA TRS

2/2/2012

Deeds

11843

1571

 $0 

AFFIDAVIT OF TERMINATION OF JOINT TENANCY

HARRISON PAULA D

[1/4]
Last Mailed Notice of Value (N.O.V.) Information/History
Year Date Market Value Taxable Market Value Gross Assessed Exemption Net Assessed

2026

02/06/2026

384,500 

265,884 

29,246 

1,000 

28,246 

2025

01/31/2025

409,500 

258,140 

28,395 

1,000 

27,395 

2024

01/22/2024

410,500 

250,622 

27,567 

1,000 

26,567 

[1/6]
Property Building Permit History
Issued Permit # Provided by Bldg # Description Est Construction Cost Status

8/22/1995

10278453

OKLAHOMA CITY

1

Main Dwellin

110,000 

Inactive

Click button below to access detailed information and additional property photos:
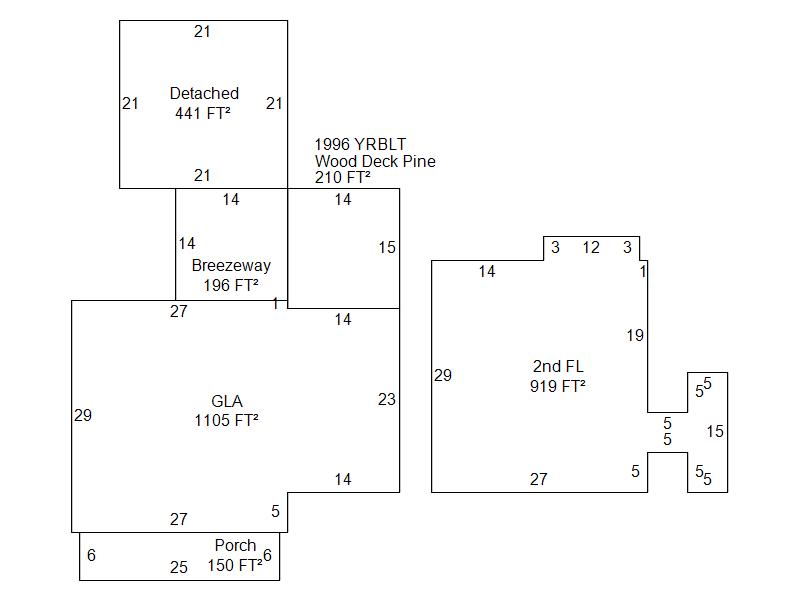
  Bldg # Vacant/Improved Land Bldg Description Year Built SqFt # Stories

Click

1

Improved

2 Story

1996

2,024 

2 Stories