|
|
|
| Larry Stein Oklahoma County Assessor (405) 713-1200 - Public Access System |
|
|
|
|
|
|
| Real Property Display - Screen Produced 3/16/2026 3:36:07 AM | ||||
|---|---|---|---|---|
| Account: R191521860 | Type: Residential | Location: |
3645 RAILHEAD CIR |
|
| Building Name/Occupant: |
|
CHOCTAW |
||
| Owner Name 1: | BAKER KATHLEEN M |
Parcel PIN#: |
1069-19-152-1860 |
|
| Owner Name 2: | 1/4 section #: |
1069 |
||
| Owner Name 3: | Parent Acct: |
|
||
| Billing Address: | 3645 RAILHEAD CIR | Tax District: |
|
|
| City, State, Zip | CHOCTAW, OK 73020-5910 | School System: |
Choctaw #4 |
|
|
Country: (If noted) |
Land Size: |
1.0000 Acres |
||
|
Land Value: 37,000 |
|
|||
|
Sect 18-T11N-R1E Qtr NE |
RAILHEAD ESTATES
Block
006
Lot
005
|
|||
| Full Legal Description: RAILHEAD ESTATES BLK 006 LOT 005 |
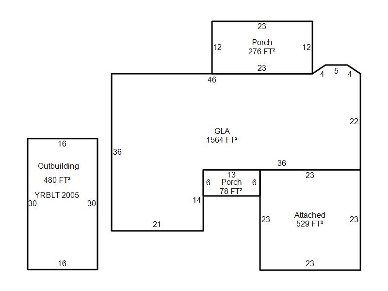
| Photo & Sketch (if available) | Comp Sales (ordered by relevancy) |
|
||||||||||||||||||
|
||||||||||||||||||||
| Value History (*The County Treasurer 405-713-1300 posts & collects actual tax amounts. Contact information HERE) | |||||||||||||
|---|---|---|---|---|---|---|---|---|---|---|---|---|---|
| Year | Market Value | Taxable Mkt Value | Gross Assessed | Exemption | Net Assessed | Millage | Est. Tax | Tax Savings | |||||
|
2025 |
255,000 |
189,618 |
20,857 |
0 |
20,857 |
117.21 |
$2,445 |
$843 |
|||||
|
2024 |
240,000 |
180,589 |
19,863 |
0 |
19,863 |
116.35 |
$2,311 |
$760 |
|||||
|
2023 |
225,000 |
171,990 |
18,918 |
0 |
18,918 |
118.06 |
$2,234 |
$688 |
|||||
|
2022 |
189,500 |
163,800 |
18,018 |
0 |
18,018 |
116.14 |
$2,093 |
$328 |
|||||
|
2021 |
156,000 |
156,000 |
17,160 |
0 |
17,160 |
116.17 |
$1,993 |
$0 |
|||||
| Property Account Status/Adjustments/Exemptions | ||
|---|---|---|
| Account # | Exemption Description | Amount |
|
R191521860 |
Freeze Senior Valuation |
0 |
|
R191521860 |
Homestead |
1,000 |
|
R191521860 |
3% Cap Homestead |
0 |
| Property Deed Transaction History (Recorded in the County Clerk's Office) | ||||||||||
|---|---|---|---|---|---|---|---|---|---|---|
| Date | Type | Book | Page | Price | Grantor | Grantee | ||||
|
7/6/2015 |
|
Hmstd Off & |
$0 |
BAKER DOUGLAS S & KATHLEEN M |
BAKER KATHLEEN M |
|||||
|
12/10/2007 |
|
Deeds |
$0 |
WOMBL JEAN L |
WOMBLE BENNY J |
|||||
|
12/10/2007 |
|
Deeds |
$150,000 |
WOMBLE BENNY J |
BAKER DOUGLAS S & KATHLEEN M |
|||||
|
4/3/2006 |
|
Deeds |
$0 |
WOMBLE BENNY J & JEAN L |
WOMBLE BENNY J |
|||||
|
11/15/1999 |
|
Deeds |
$107,000 |
SKIDGEL STEVEN D & DEBRA ANN |
WOMBLE BENNY J & JEAN L |
|||||
| Last Mailed Notice of Value (N.O.V.) Information/History | ||||||||
|---|---|---|---|---|---|---|---|---|
| Year | Date | Market Value | Taxable Market Value | Gross Assessed | Exemption | Net Assessed | ||
|
2026 |
02/06/2026 |
233,500 |
195,306 |
21,482 |
1,000 |
20,482 |
||
|
2025 |
01/31/2025 |
255,000 |
189,618 |
20,857 |
0 |
20,857 |
||
|
2024 |
01/22/2024 |
240,000 |
180,589 |
19,863 |
0 |
19,863 |
||
|
2023 |
01/23/2023 |
225,000 |
171,990 |
18,918 |
0 |
18,918 |
||
|
2022 |
02/22/2022 |
189,500 |
163,800 |
18,018 |
0 |
18,018 |
||
| Property Building Permit History | ||||||
|---|---|---|---|---|---|---|
| Issued | Permit # | Provided by | Bldg # | Description | Est Construction Cost | Status |
|
4/21/2005 |
10306289 |
CHOCTAW |
1 |
Storage Buil |
10,000 |
Inactive |
| Click button on building number to access detailed information: | ||||||
|---|---|---|---|---|---|---|
| Bldg # | Vacant/Improved Land | Bldg Description | Year Built | SqFt | # Stories | |
|
1 |
Improved |
Ranch 1 Story |
1983 |
1,564 |
1 Stories |
|