|
|
|
| Larry Stein Oklahoma County Assessor (405) 713-1200 - Public Access System |
|
|
|
|
|
|
| Real Property Display - Screen Produced 4/2/2026 8:28:23 AM | ||||
|---|---|---|---|---|
| Account: R204261270 | Type: Residential | Location: |
3400 GARDEN VISTA |
|
| Building Name/Occupant: |
|
EDMOND |
||
| Owner Name 1: | AIRINGTON JAMES CLAYTON & DESIREE M |
Parcel PIN#: |
4467-20-426-1270 |
|
| Owner Name 2: | 1/4 section #: |
4467 |
||
| Owner Name 3: | Parent Acct: |
4466-16-863-1445 |
||
| Billing Address: | 3400 GARDEN VIS | Tax District: |
|
|
| City, State, Zip | EDMOND, OK 73034-8378 | School System: |
Edmond #12 |
|
|
Country: (If noted) |
Land Size: |
0.2556 Acres |
||
|
Land Value: 69,594 |
|
|||
|
Sect 17-T14N-R2W Qtr SW |
GARDENS OF FAIRFAX II
Block
004
Lot
013
|
|||
| Full Legal Description: GARDENS OF FAIRFAX II 004 013 |
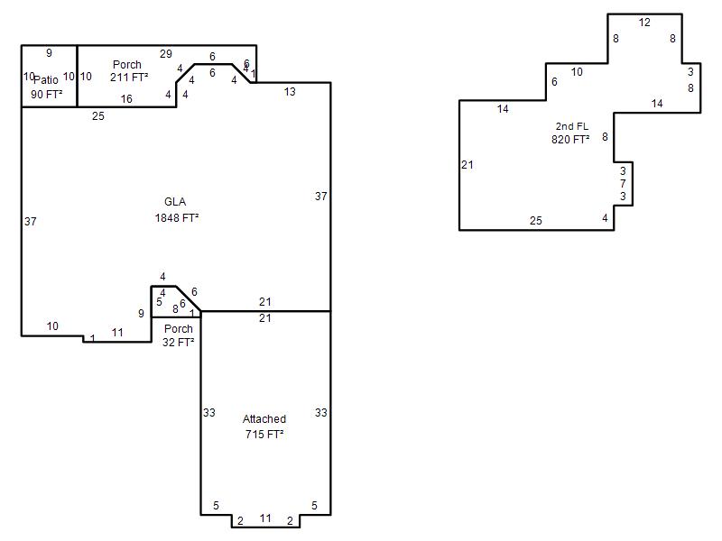
| Photo & Sketch (if available) | Comp Sales (ordered by relevancy) |
|
||||||||||||||||||
|
||||||||||||||||||||
| Value History (*The County Treasurer 405-713-1300 posts & collects actual tax amounts. Contact information HERE) | |||||||||||||
|---|---|---|---|---|---|---|---|---|---|---|---|---|---|
| Year | Market Value | Taxable Mkt Value | Gross Assessed | Exemption | Net Assessed | Millage | Est. Tax | Tax Savings | |||||
|
2026 |
515,000 |
495,815 |
54,539 |
1,000 |
53,539 |
105.16 |
$5,630 |
$327 |
|||||
|
2025 |
387,500 |
360,500 |
39,655 |
1,000 |
38,655 |
105.16 |
$4,065 |
$417 |
|||||
|
2024 |
350,000 |
350,000 |
38,500 |
0 |
38,500 |
105.03 |
$4,044 |
$0 |
|||||
|
2023 |
366,500 |
324,135 |
35,654 |
0 |
35,654 |
104.24 |
$3,717 |
$486 |
|||||
|
2022 |
324,000 |
308,700 |
33,957 |
0 |
33,957 |
104.64 |
$3,553 |
$176 |
|||||
| Property Account Status/Adjustments/Exemptions | ||
|---|---|---|
| Account # | Exemption Description | Amount |
|
R204261270 |
3% Cap Homestead |
0 |
|
R204261270 |
Homestead |
1,000 |
| Property Deed Transaction History (Recorded in the County Clerk's Office) | |||||||
|---|---|---|---|---|---|---|---|
| Date | Type | Book | Page | Price | Grantor | Grantee | |
|
9/29/2023 |
|
Deeds |
$350,000 |
LEWIS JASON & LACY |
AIRINGTON JAMES CLAYTON & DESIREE M |
||
|
5/16/2017 |
|
Deeds |
$0 |
LEWIS JASON |
LEWIS JASON & LACY |
||
|
4/14/2014 |
|
Deeds |
$275,000 |
VENTRIS KENT M |
LEWIS JASON |
||
|
10/20/2006 |
|
Deeds |
$266,000 |
EVERETT CUSTOM HOMES LLC |
VENTRIS KENT M |
||
|
2/10/2006 |
|
Deeds |
$55,000 |
FAIRFAX JOINT VENTURES LLC |
EVERETT CUSTOM HOMES LLC |
||
| Last Mailed Notice of Value (N.O.V.) Information/History | ||||||||
|---|---|---|---|---|---|---|---|---|
| Year | Date | Market Value | Taxable Market Value | Gross Assessed | Exemption | Net Assessed | ||
|
2026 |
03/30/2026 |
515,000 |
495,815 |
54,539 |
1,000 |
53,539 |
||
|
2025 |
03/28/2025 |
387,500 |
360,500 |
39,655 |
1,000 |
38,655 |
||
|
2024 |
01/22/2024 |
379,500 |
379,500 |
41,745 |
0 |
41,745 |
||
|
2023 |
01/23/2023 |
366,500 |
324,135 |
35,654 |
0 |
35,654 |
||
|
2022 |
02/22/2022 |
324,000 |
308,700 |
33,957 |
0 |
33,957 |
||
| Property Building Permit History | ||||||
|---|---|---|---|---|---|---|
| Issued | Permit # | Provided by | Bldg # | Description | Est Construction Cost | Status |
|
4/25/2024 |
B24-00002 |
|
1 |
Remodeled |
100,000 |
Inactive |
|
3/30/2006 |
10322841 |
EDMOND |
1 |
Main Dwellin |
195,997 |
Inactive |
| Click button on building number to access detailed information: | ||||||
|---|---|---|---|---|---|---|
| Bldg # | Vacant/Improved Land | Bldg Description | Year Built | SqFt | # Stories | |
|
1 |
Improved |
1½ Story Fin |
2006 |
2,668 |
1.5 Stories |
|